安芸郡府中町八幡3丁目
呉線 天神川駅 徒歩25分
4LDK
建物面積:97.7㎡
土地面積:82.05㎡
新築
3,380万円



| 物件種別 | 中古戸建 |
| 所在地 | GoogleMaps |
| 交通 | 山陽本線 広島駅 バス30分 東地区センター 停歩3分 |
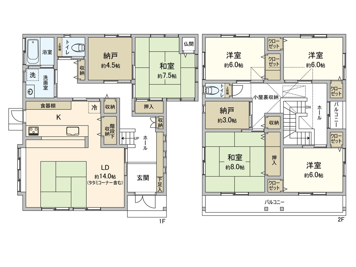
| 間取り | 5SLDK ※S・サービススペースは納戸です |
| 建物面積 | 161.05㎡(約48.71坪) |
| 土地面積 | 188.09㎡(約56.89坪) |
| 築年月 | 2003年07月築 |
予約制内覧会を開催します!
| 開催日 | 11月8日(土)11:00 ~ 17:00 11月9日(日)11:00 ~ 17:00 |
|---|
返済計画を入力すると毎月のお支払い目安を表示できます
▼物件の概要 ・山根木材の設計施工の注文住宅 ・平成15年7月建築(築19年) ・土地面積:約56.89坪 ・間取り:5SLDK ▼おすすめポイント ・広島駅・八丁堀方面へのバス便が充実 ・小学校・中学校が至近にある交通量の少ない閑静な住宅街 子育て世代におすすめの立地 ・南東側に接道で日当たり良好 間口12m以上と開放感に優れた画地条件
| 所在地 | GoogleMaps |
| 価格 | 3,380万円 |
| 交通 | 山陽本線 広島駅 バス30分 東地区センター 停歩3分 |
| その他費用 | - |
| 間取り | 5SLDK ※S・サービススペースは納戸です |
| 建物面積 | 161.05㎡(約48.71坪) |
| 土地面積 | 188.09㎡(約56.89坪) |
| 築年月 | 2003年07月築 |
| 建物構造 | 木造2階建 |
| 現況 | 空家 |
| 駐車場 | 有 |
| 土地権利 | 所有権 |
| 地目 | 宅地 |
| 接道状況 | 南東側: 約 6m (公道) |
| 建ぺい率 | 50% |
| 容積率 | 100% |
| 用途地域 | 第一種低層住居専用地域 |
| 都市計画 | 市街化区域 |
| 備考 | - |
| 引渡時期 | 即時 |
| 取引態様 | 仲介 |
| 更新日 | 2025年10月30日 |
| 次回更新予定 | 2025年11月13日 |
| 物件番号 | FVHASA05 |
GoogleMaps
| スーパー | スパーク浜田店 約1100m(徒歩14分) |
| 公園 | 池尻児童遊園地 約240m(徒歩3分) |
| 公園 | 山越公園 約560m(徒歩7分) |
| 病院 | 瀬戸ハイム内科 約170m(徒歩3分) |
| 小学校 | 府中東小学校 約120m(徒歩2分) |
| 中学校 | 府中中学校 約330m(徒歩5分) |
| その他利便施設1 | ローソン 府中町山田一丁目店 約750m(徒歩10分) |
| その他利便施設2 | 安芸瀬戸ハイム簡易郵便局 約210m(徒歩3分) |
三井不動産リアルティ中国株式会社
国土交通大臣(7)第5169号
0120-545-321
リノベーション工事の可能範囲については、本物件の管理組合規約等により一定の制限が加わる場合がございます。詳細については、工事内容の確定後に判明する部分もありますので、この点については事前にお含みおきください。
リノベーションに関するお問い合わせ0120-545-321
物件の売却をご検討の方は、 はやめの査定依頼がおすすめです!
買い替えをご検討の方はこちら0120-545-321
