愛知郡東郷町春木台5丁目
名古屋市鶴舞線 赤池駅 バス22分 清水ヶ根口 停歩8分
4LDK
建物面積:92.74㎡
土地面積:136.52㎡
2000年07月築
3,080万円



| 物件種別 | 中古戸建 |
| 所在地 | GoogleMaps |
| 交通 | |
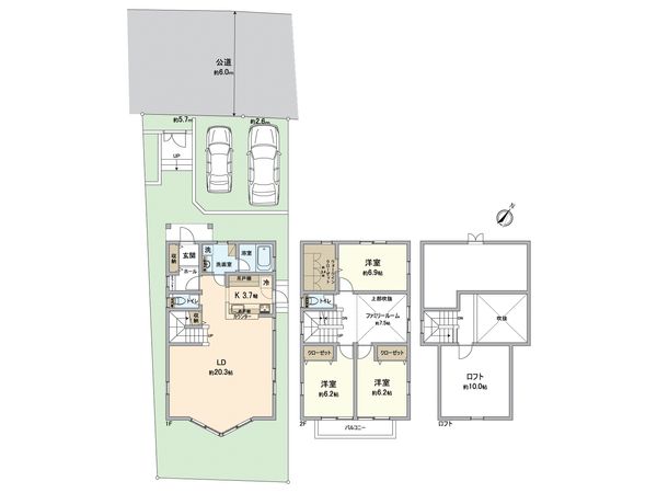
| 間取り | 3LDK |
| 建物面積 | 144.79㎡(約43.79坪) |
| 土地面積 | 165.34㎡(約50.01坪) |
| 築年月 | 1999年12月築 |
■おすすめポイント ━━━━━━━━━━━━━━━・・・・・ ○ 間取り 3LDK ○ LD 約20.3帖 ○ 全館空調採用 ○ 駐車場2台分有り(車種によります) ○ 全居室に収納有り ○ ウォークインクローゼット(約3.4帖)有り ○ 上部吹抜のあるファミリールーム(約7.5帖)有り ○ ロフト(約10.0帖)有り ○ 全居室が6.0帖以上有り ○ 対面式のカウンターキッチン ○ リビング階段有り ○ 閑静な住宅街
| 所在地 | GoogleMaps |
| 価格 | 3,080万円 |
| 交通 | |
| その他費用 | - |
| 間取り | 3LDK |
| 建物面積 | 144.79㎡(約43.79坪) |
| 土地面積 | 165.34㎡(約50.01坪) |
| 築年月 | 1999年12月築 |
| 建物構造 | 木造3階建 |
| 現況 | 居住中 |
| 駐車場 | 有 |
| 土地権利 | 所有権 |
| 地目 | 宅地 |
| 接道状況 | 北西側: 約 6m (公道) |
| 建ぺい率 | 50% |
| 容積率 | 100% |
| 用途地域 | 第一種低層住居専用地域 |
| 都市計画 | 市街化区域 |
| 備考 | - |
| 引渡時期 | 相談 |
| 取引態様 | 仲介 |
| 更新日 | 2026年04月16日 |
| 次回更新予定 | 2026年04月30日 |
| 物件番号 | FWDBAA02 |
最新のAI技術を活用した相談サービスです。
お客様一人ひとりのニーズに合わせて最適な情報をご提供します。
リハウスAIチャットの詳しい説明はこちら
GoogleMaps
| スーパー | 白土フランテ館 約1100m(徒歩14分) |
| スーパー | コノミヤ神の倉店 約1700m(徒歩22分) |
| 公園 | 半ノ木公園 約210m(徒歩3分) |
| 公園 | 白土中央公園 約1000m(徒歩13分) |
| 病院 | まつもとクリニック 約450m(徒歩6分) |
| 小学校 | 兵庫小学校 約600m(徒歩8分) |
| 中学校 | 春木中学校 約1500m(徒歩19分) |
| その他利便施設1 | スギドラッグ東郷西店 約210m(徒歩3分) |
| その他利便施設2 | ミニストップ音貝店 約210m(徒歩3分) |
| その他利便施設3 | ファミリーマート東郷三ツ池三丁目店 約350m(徒歩5分) |
| その他利便施設4 | 岡崎信用金庫 東郷支店 約210m(徒歩3分) |
| その他利便施設5 | 名古屋神の倉郵便局 約1000m(徒歩13分) |
0120-98-8331
0120-98-8331
物件の売却をご検討の方は、 はやめの査定依頼がおすすめです!
買い替えをご検討の方はこちら0120-98-8331

