川崎市川崎区台町
京急大師線 東門前駅 徒歩12分
3SLDK
建物面積:93.56㎡
土地面積:62.36㎡
2006年06月築
3,880万円



| 物件種別 | 中古戸建 |
| 所在地 | GoogleMaps |
| 交通 | 京急大師線 川崎大師駅 徒歩10分 |
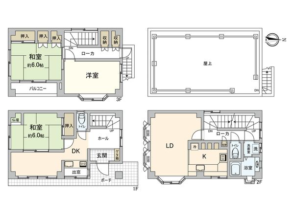
| 間取り | 3LDK |
| 建物面積 | 98.18㎡(約29.69坪) |
| 土地面積 | 48.82㎡(約14.76坪) |
| 築年月 | 1983年11月築 |
-物件のおすすめポイント- ▼立地 ・京急大師線「川崎大師」駅 徒歩10分 ・緑豊かな大師公園まで徒歩約1分。 ▼建物の特徴 ・南・東側道路面する開放的な立地 ・屋上から周辺を一望します ▼お部屋の特徴 ・2面採光の明るく開放的なリビングダイニング ・調理のにおいがお部屋に籠りにくい独立キッチン ・1Fには簡単な調理が可能なミニキッチン ■ ご希望の住まい探しをお手伝いします ━━━━━・・・ 物件の詳細・ご相談はお気軽にお問い合わせください。
| 所在地 | GoogleMaps |
| 価格 | 3,880万円 |
| 交通 | 京急大師線 川崎大師駅 徒歩10分 |
| その他費用 | - |
| 間取り | 3LDK |
| 建物面積 | 98.18㎡(約29.69坪) |
| 土地面積 | 48.82㎡(約14.76坪) |
| 築年月 | 1983年11月築 |
| 建物構造 | 鉄骨造3階建 |
| 現況 | 空家 |
| 駐車場 | - |
| 土地権利 | 所有権 |
| 地目 | 宅地 |
| 接道状況 | 東側: 約 11m (公道)、南側: 約 8.2m (公道) |
| 建ぺい率 | 60% |
| 容積率 | 200% |
| 用途地域 | 第二種住居地域 |
| 都市計画 | 市街化区域 |
| 備考 | - |
| 引渡時期 | 相談 |
| 取引態様 | 仲介 |
| 更新日 | 2026年04月10日 |
| 次回更新予定 | 2026年04月24日 |
| 物件番号 | FWFBDA03 |
最新のAI技術を活用した相談サービスです。
お客様一人ひとりのニーズに合わせて最適な情報をご提供します。
リハウスAIチャットの詳しい説明はこちら
GoogleMaps
| スーパー | オーケー川崎大師店 約560m(徒歩7分) |
| スーパー | まいばすっけと川崎大師駅前店 約600m(徒歩8分) |
| スーパー | マルエツ出来野店 約810m(徒歩11分) |
| 公園 | 大師公園 約10m(徒歩1分) |
| 小学校 | 川崎市立大師小学校 約420m(徒歩6分) |
| その他利便施設1 | マツモトキヨシ川崎大師駅前店 約690m(徒歩9分) |
| その他利便施設2 | ミニストップ川崎大師前店 約460m(徒歩6分) |
| その他利便施設3 | 川崎大師平間寺 約290m(徒歩4分) |
0120-925-831
0120-925-831
物件の売却をご検討の方は、 はやめの査定依頼がおすすめです!
買い替えをご検討の方はこちら0120-925-831

