城東区古市3丁目 戸建
16,200万円



| 物件種別 | 店舗付住宅 |
| 所在地 | GoogleMaps |
| 交通 | |
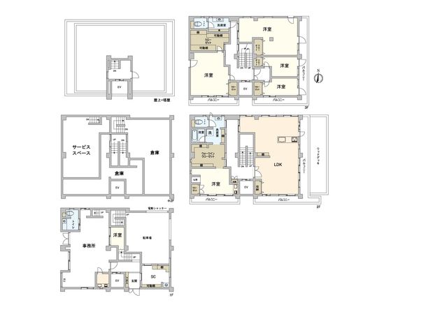
| 間取り | 5SLDK ※S・サービススペースは納戸です |
| 建物面積 | 399.34㎡(約120.8坪) |
| 土地面積 | 190.67㎡(約57.67坪) |
| 築年月 | 2003年04月築 |
この物件情報を共有する
おすすめポイント
特徴
- 前面道路幅員6m以上
▼立地 ・大阪メトロ今里筋線「新森古市」駅 徒歩3分(約200m) ・京阪本線「森小路」駅 徒歩11分(約850m) ・大阪メトロ谷町線「関目高殿」駅 徒歩12分(約900m) ▼物件の特徴 ・鉄骨造4階建ての戸建住居 ・土地面積 190.67平米(約57.67坪) ・前面道路(西)幅員約11.0m ・車庫付5SLDK+倉庫+事務所 ・建物面積 399.34平米 ・駐車スペース4台分有(車種制限有) ・室内リフォーム履歴有 ▼設備 ・ウォークインクローゼット・シューズインクローゼット ・駐車スペース(車種制限有)・屋上・エレベータ― ・2段機械式駐車場・ウッドデッキ ▼周辺環境 ・大阪市立すみれ小学校 徒歩10分(約800m) ・ファミリーマート新森2丁目店 徒歩2分(約90m) ・古市北公園 徒歩1分(約30m) ■ ご希望の住まい探しをお手伝いします ━━━━━・・・ 物件の詳細・ご相談はお気軽にお問い合わせください。
物件情報
| 所在地 | GoogleMaps |
| 価格 | 16,200万円 |
| 交通 | |
| その他費用 | - |
| 間取り | 5SLDK ※S・サービススペースは納戸です |
| 建物面積 | 399.34㎡(約120.8坪) |
| 土地面積 | 190.67㎡(約57.67坪) |
| 築年月 | 2003年04月築 |
| 建物構造 | 鉄骨造4階建 |
| 現況 | 居住中 |
| 駐車場 | 有 |
| 土地権利 | 所有権 |
| 地目 | 宅地 |
| 接道状況 | 西側: 約 11m (公道)、北側: 約 4m (公道) |
| 建ぺい率 | 80%・80% |
| 容積率 | 300%・200%(各用途地域の面積により、加重平均されます。) |
| 用途地域 | 準住居地域/第一種住居地域 |
| 都市計画 | 市街化区域 |
| 備考 | ※間取り:5SLDK+倉庫+事務所 |
| 引渡時期 | 相談 |
| 取引態様 | 仲介 |
| 更新日 | 2026年05月16日 |
| 次回更新予定 | 2026年05月30日 |
| 物件番号 | FWQBBA07 |
周辺情報
GoogleMaps
| スーパー | 食品館アプロ新森店 約350m(徒歩5分) |
| スーパー | スーパーマルヤス城東店 約500m(徒歩7分) |
| 公園 | 古市北公園 約30m(徒歩1分) |
| 小学校 | 大阪市立すみれ小学校 約800m(徒歩10分) |
| 中学校 | 大阪市立菫中学校 約1000m(徒歩13分) |
| その他利便施設1 | 新森古市駅(Osaka Metro 今里筋線) 約200m(徒歩3分) |
| その他利便施設2 | 森小路駅(京阪本線) 約850m(徒歩11分) |
| その他利便施設3 | ファミリーマート新森二丁目店 約90m(徒歩2分) |
| その他利便施設4 | スギ薬局城東古市店 約300m(徒歩4分) |
| その他利便施設5 | 城東古市三郵便局 約300m(徒歩4分) |
取扱店舗
- 営業時間
- 10:00~18:00
- 定休日
- 毎週火曜日・水曜日
- 住所
- 大阪府大阪市都島区東野田町1丁目6-16 ワタヤ・コスモスビル6F
三井不動産リアルティ株式会社
国土交通大臣(15)第777号
三井のリハウス 京橋センター
- 営業時間10:00~18:00
- 定休日毎週火曜日・水曜日
0120-31-1504
大阪市城東区の物件情報
この物件のリノベーションに関する問い合わせはこちらから。
リノベーション工事の可能範囲については、本物件の管理組合規約等により一定の制限が加わる場合がございます。詳細については、工事内容の確定後に判明する部分もありますので、この点については事前にお含みおきください。
リノベーションに関するお問い合わせこの物件を見学してみませんか?
この物件についてお問い合わせ
物件・住環境の詳しい情報、購入・ローン相談など、ささいなことでもお気軽にお問い合わせください。三井のリハウス 京橋センター
- 営業時間10:00~18:00
- 定休日毎週火曜日・水曜日
0120-31-1504

物件の売却をご検討の方は、 はやめの査定依頼がおすすめです!
買い替えをご検討の方はこちら見学予約
お問い合わせ
0120-31-1504
- 営業時間 10:00~18:00
- 定休日 毎週火曜日・水曜日

