豊中市東豊中町3丁目
大阪モノレール本線 少路駅 徒歩19分
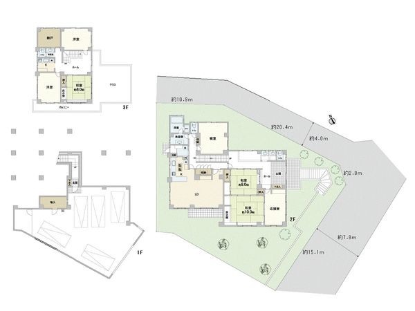
6SLDK
建物面積:342.64㎡
土地面積:562.05㎡
1980年06月築
22,800万円



| 物件種別 | 中古戸建 |
| 所在地 | GoogleMaps |
| 交通 | 大阪モノレール本線 少路駅 徒歩11分 |
| 間取り | 7SLDK ※S・サービススペースは納戸です |
| 建物面積 | 499.03㎡(約150.95坪) |
| 土地面積 | 539.52㎡(約163.2坪) |
| 築年月 | 1988年01月築 |
返済計画を入力すると毎月のお支払い目安を表示できます
-物件のおすすめポイント- ▼特徴 ・敷地面積 539.52平米(約163.2坪) ・高台に位置するため、テラス部分からの眺望良好です ・閑静で緑豊かな住環境 ・第一種低層住居専用地域 風致地区に位置します ・ビルトインガレージ付き ※風致地区:都市の風致(樹林地、水辺地などで構成された良好な自然的景観)を維持するため、都市計画法により定められる地区 ▼周辺環境 ・大阪モノレール「少路」駅 約830m ・東豊台小学校 約1,150m ・第十一中学校 約880m ・セブンイレブン豊中緑ヶ丘2丁目店 約350m ■ ご希望の住まい探しをお手伝いします ━━━━━・・・ 物件の詳細・ご相談はお気軽にお問い合わせください。
| 所在地 | GoogleMaps |
| 価格 | 22,800万円 |
| 交通 | 大阪モノレール本線 少路駅 徒歩11分 |
| その他費用 | - |
| 間取り | 7SLDK ※S・サービススペースは納戸です |
| 建物面積 | 499.03㎡(約150.95坪) |
| 土地面積 | 539.52㎡(約163.2坪) |
| 築年月 | 1988年01月築 |
| 建物構造 | 鉄筋コンクリート造3階建 |
| 現況 | 居住中 |
| 駐車場 | 有 |
| 土地権利 | 所有権 |
| 地目 | 宅地 |
| 接道状況 | 南東側: 約 7.8m (公道)、北東側: 約 4m (公道) |
| 建ぺい率 | 40% |
| 容積率 | 80% |
| 用途地域 | 第一種低層住居専用地域 |
| 都市計画 | 市街化区域 |
| 備考 | 【法令による制限】宅地造成及び特定盛土等規制法、景観法 |
| 引渡時期 | 相談 |
| 取引態様 | 仲介 |
| 更新日 | 2026年01月19日 |
| 次回更新予定 | 2026年02月02日 |
| 物件番号 | FXBATA99 |
最新のAI技術を活用した相談サービスです。
お客様一人ひとりのニーズに合わせて最適な情報をご提供します。
リハウスAIチャットの詳しい説明はこちら
GoogleMaps
| 小学校 | 豊中市立東豊台小学校 約1150m(徒歩15分) |
| 中学校 | 豊中市立第十一中学校 約880m(徒歩11分) |
| その他利便施設1 | 少路駅(大阪モノレール線) 約830m(徒歩11分) |
| その他利便施設2 | セブンイレブン豊中緑丘2丁目店 約350m(徒歩5分) |
三井不動産リアルティ株式会社
国土交通大臣(15)第777号
0120-31-5431
リノベーション工事の可能範囲については、本物件の管理組合規約等により一定の制限が加わる場合がございます。詳細については、工事内容の確定後に判明する部分もありますので、この点については事前にお含みおきください。
リノベーションに関するお問い合わせ0120-31-5431
物件の売却をご検討の方は、 はやめの査定依頼がおすすめです!
買い替えをご検討の方はこちら0120-31-5431

