吹田市千里山東1丁目
阪急千里線 関大前駅 徒歩4分
5LDK
建物面積:168.18㎡
土地面積:225.77㎡
1997年04月築
9,180万円



| 物件種別 | 中古戸建 |
| 所在地 | GoogleMaps |
| 交通 | |
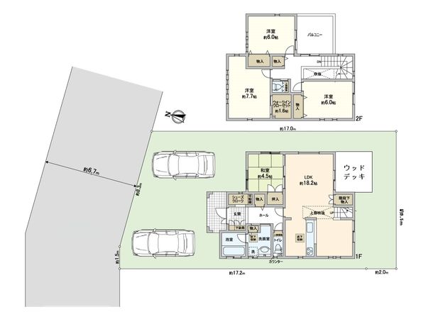
| 間取り | 4LDK |
| 建物面積 | 108.89㎡(約32.93坪) |
| 土地面積 | 176.46㎡(約53.37坪) |
| 築年月 | 2021年04月築 |
返済計画を入力すると毎月のお支払い目安を表示できます
-全115区画、大規模×2WAYアクセス×邸別設計の街 「アフュージアシティ千里古江台」- ▼特徴 ・敷地面積 176.46平米(約53.37坪) ・令和3年4月建築 ・フジ住宅(株)旧分譲 住環境の快適性と健康性を高める「炭の家」 ・愛車を2台並列で駐車可能です ・お庭にはウッドデッキがございます ・2階洋室はインプラス(内窓)を計10か所設置 断熱・結露軽減・防音に効果的です ・開発分譲地ならではの整った街並み ・制震ダンパー採用<耐震等級3> ▼周辺環境 ・古江台6丁目遊園 約10m ・古江台小学校 約830m ・古江台中学校 約420m ■ ご希望の住まい探しをお手伝いします ━━━━━・・・ 物件の詳細・ご相談はお気軽にお問い合わせください。
| 所在地 | GoogleMaps |
| 価格 | 9,180万円 |
| 交通 | |
| その他費用 | - |
| 間取り | 4LDK |
| 建物面積 | 108.89㎡(約32.93坪) |
| 土地面積 | 176.46㎡(約53.37坪) |
| 築年月 | 2021年04月築 |
| 建物構造 | 木造2階建 |
| 現況 | 居住中 |
| 駐車場 | 有 |
| 土地権利 | 所有権 |
| 地目 | 宅地 |
| 接道状況 | 北側: 約 6.7m (公道) |
| 建ぺい率 | 60% |
| 容積率 | 200% |
| 用途地域 | 第一種中高層住居専用地域 |
| 都市計画 | 市街化区域 |
| 備考 | 【法令による制限】景観法、宅地造成及び特定盛土等規制法 |
| 引渡時期 | 2026年03月下旬以降 |
| 取引態様 | 仲介 |
| 更新日 | 2026年02月04日 |
| 次回更新予定 | 2026年02月18日 |
| 物件番号 | FXBAUA09 |
最新のAI技術を活用した相談サービスです。
お客様一人ひとりのニーズに合わせて最適な情報をご提供します。
リハウスAIチャットの詳しい説明はこちら
GoogleMaps
| 小学校 | 古江台小学校 約830m(徒歩11分) |
| 中学校 | 古江台中学校 約420m(徒歩6分) |
| その他利便施設1 | 大阪モノレール「山田」駅 約640m(徒歩8分) |
| その他利便施設2 | 阪急千里線「山田」駅 約720m(徒歩9分) |
三井不動産リアルティ株式会社
国土交通大臣(15)第777号
0120-31-5431
0120-31-5431
物件の売却をご検討の方は、 はやめの査定依頼がおすすめです!
買い替えをご検討の方はこちら0120-31-5431

