川西市鼓が滝3丁目
能勢電鉄 鼓滝駅 徒歩10分
4LDK
建物面積:98.12㎡
土地面積:164.96㎡
1994年02月築
1,900万円



| 物件種別 | 中古戸建 |
| 所在地 | GoogleMaps |
| 交通 | 能勢電鉄 畦野駅 バス7分 第八公園前 停歩4分 |
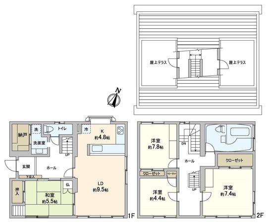
| 間取り | 4LDK |
| 建物面積 | 124.53㎡(約37.67坪) |
| 土地面積 | 165.19㎡(約49.96坪) |
| 築年月 | 1990年10月築 |
・閑静な住宅地 ・4LDKの間取り ・駐車2台可能(車種による)
| 所在地 | GoogleMaps |
| 価格 | 1,900万円 |
| 交通 | 能勢電鉄 畦野駅 バス7分 第八公園前 停歩4分 |
| その他費用 | - |
| 間取り | 4LDK |
| 建物面積 | 124.53㎡(約37.67坪) |
| 土地面積 | 165.19㎡(約49.96坪) |
| 築年月 | 1990年10月築 |
| 建物構造 | 軽量鉄骨造2階建 |
| 現況 | 空家 |
| 駐車場 | 有 |
| 土地権利 | 所有権 |
| 地目 | 宅地 |
| 接道状況 | 南西側: 約 5.8m (公道) |
| 建ぺい率 | 50% |
| 容積率 | 80% |
| 用途地域 | 第一種低層住居専用地域 |
| 都市計画 | 市街化区域 |
| 備考 | ※宅地造成及び特定盛土等規制法:許可の対象となる工事を行う場合、着手する前に必ず川西市長の許可を受けなければなりません。 |
| 引渡時期 | 相談 |
| 取引態様 | 仲介 |
| 更新日 | 2026年04月19日 |
| 次回更新予定 | 2026年05月03日 |
| 物件番号 | FXFAQA11 |
最新のAI技術を活用した相談サービスです。
お客様一人ひとりのニーズに合わせて最適な情報をご提供します。
リハウスAIチャットの詳しい説明はこちら
0120-44-3131
0120-44-3131
物件の売却をご検討の方は、 はやめの査定依頼がおすすめです!
買い替えをご検討の方はこちら0120-44-3131

