芦屋市奥池南町
阪急神戸線 芦屋川駅 バス20分 芦屋ハイランド 停歩4分
3LDK
建物面積:103.11㎡
土地面積:415.15㎡
2020年08月築
10,980万円



| 物件種別 | 中古戸建 |
| 所在地 | GoogleMaps |
| 交通 | 阪急神戸線 芦屋川駅 バス21分 芦屋ハイランド 停歩9分 |
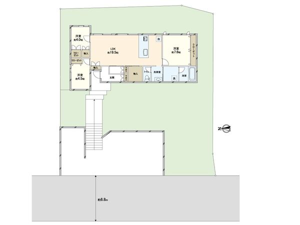
| 間取り | 3LDK |
| 建物面積 | 84.25㎡(約25.48坪) |
| 土地面積 | 893.28㎡(約270.21坪) |
| 築年月 | 2025年03月築 |
■ おすすめポイント ━━━━━━━━・・・・・ ○ 2025年3月建築の戸建 ○ 建物面積84.25平米の3LDK ○ 平屋建て・車庫スペース3台分(※車種制限有)
| 所在地 | GoogleMaps |
| 価格 | 10,980万円 |
| 交通 | 阪急神戸線 芦屋川駅 バス21分 芦屋ハイランド 停歩9分 |
| その他費用 | - |
| 間取り | 3LDK |
| 建物面積 | 84.25㎡(約25.48坪) |
| 土地面積 | 893.28㎡(約270.21坪) |
| 築年月 | 2025年03月築 |
| 建物構造 | 木造1階建 |
| 現況 | 空家 |
| 駐車場 | 有 |
| 土地権利 | 所有権 |
| 地目 | 宅地 |
| 接道状況 | 北西側: 約 6.8m (公道) |
| 建ぺい率 | 30% |
| 容積率 | 50% |
| 用途地域 | なし |
| 都市計画 | 市街化調整区域 |
| 備考 | - |
| 引渡時期 | 相談 |
| 取引態様 | 仲介 |
| 更新日 | 2026年04月12日 |
| 次回更新予定 | 2026年04月26日 |
| 物件番号 | FXZBTA03 |
最新のAI技術を活用した相談サービスです。
お客様一人ひとりのニーズに合わせて最適な情報をご提供します。
リハウスAIチャットの詳しい説明はこちら
0120-84-3212
0120-84-3212
物件の売却をご検討の方は、 はやめの査定依頼がおすすめです!
買い替えをご検討の方はこちら0120-84-3212

