北区唐櫃台1丁目 戸建
4SDK/126.69㎡(約38.32坪)
1,950万円



物件情報
おすすめポイント
周辺情報
取扱店舗
| 物件種別 | 中古戸建 |
| 所在地 | GoogleMaps |
| 交通 | 神戸電鉄有馬線 唐櫃台駅 徒歩6分 |
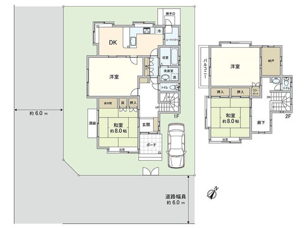
| 間取り | 4SDK ※S・サービススペースは納戸です |
| 建物面積 | 126.69㎡(約38.32坪) |
| 土地面積 | 208.51㎡(約63.07坪) |
| 築年月 | 1984年01月築 |
この物件情報を共有する
おすすめポイント
特徴
- 前面道路幅員6m以上
■おすすめポイント ━━━━━━━・・・・・ ○神戸電鉄有馬線「唐櫃台」駅徒歩6分 ○土地208.51平米 ○建物126.69平米 ○第一種低層住居専用地域 ○緑豊かで閑静な住宅街 ○南西・南東の2方角地につき陽当たり良好 ○通風・眺望良好 ○お庭あります ○駐車スペース1台(サイズ制限有) ○洗面、トイレ各2ヶ所有 ○使い勝手のよいL字型キッチン ○開口部が多く、明るい室内 ■リフォーム履歴有(令和3年) ━━━━━━━・・・・・ ・キッチン交換 ・洗面台交換(2階) ・トイレ交換(2階) ・襖交換(1階) ・障子張替(1階) ・外壁補修、塗装(塀含む) ・屋根瓦補修 ・シロアリ防除施工
お客様の安心取引を支える 360°サポート
360°サポートとは物件情報
| 所在地 | GoogleMaps |
| 価格 | 1,950万円 |
| 交通 | 神戸電鉄有馬線 唐櫃台駅 徒歩6分 |
| その他費用 | - |
| 間取り | 4SDK ※S・サービススペースは納戸です |
| 建物面積 | 126.69㎡(約38.32坪) |
| 土地面積 | 208.51㎡(約63.07坪) |
| 築年月 | 1984年01月築 |
| 建物構造 | 木造2階建 |
| 現況 | 空家 |
| 駐車場 | 有 |
| 土地権利 | 所有権 |
| 地目 | 宅地 |
| 接道状況 | 南東側: 約 6m (公道)、南西側: 約 6m (公道) |
| 建ぺい率 | 50% |
| 容積率 | 100% |
| 用途地域 | 第一種低層住居専用地域 |
| 都市計画 | 市街化区域 |
| 備考 | - |
| 引渡時期 | 相談 |
| 取引態様 | 仲介 |
| 更新日 | 2026年04月18日 |
| 次回更新予定 | 2026年05月02日 |
| 物件番号 | FY1AUA12 |
この物件のことを
AIに聞いてみませんか?
最新のAI技術を活用した相談サービスです。
お客様一人ひとりのニーズに合わせて最適な情報をご提供します。
リハウスAIチャットの詳しい説明はこちら

周辺情報
GoogleMaps
| スーパー | コープからと 約450m(徒歩6分) |
| 公園 | 谷通り公園 約30m(徒歩1分) |
| 病院 | 相澤医院 約350m(徒歩5分) |
| 小学校 | 神戸市立唐櫃小学校 約170m(徒歩3分) |
| 中学校 | 神戸市立唐櫃中学校 約750m(徒歩10分) |
| その他利便施設1 | 神戸唐櫃郵便局 約400m(徒歩5分) |
取扱店舗
三井のリハウス 神戸三宮センター
- 営業時間
- 10:00~18:00
- 定休日
- 毎週火曜日・水曜日
- 住所
- 兵庫県神戸市中央区小野柄通7-1-18 三宮ビル北館5F
三井不動産リアルティ株式会社
国土交通大臣(15)第777号
三井のリハウス 神戸三宮センター
- 営業時間10:00~18:00
- 定休日毎週火曜日・水曜日
0120-9332-31
神戸市北区の物件情報
この物件を見学してみませんか?
この物件についてお問い合わせ
物件・住環境の詳しい情報、購入・ローン相談など、ささいなことでもお気軽にお問い合わせください。三井のリハウス 神戸三宮センター
- 営業時間10:00~18:00
- 定休日毎週火曜日・水曜日
0120-9332-31

物件の売却をご検討の方は、 はやめの査定依頼がおすすめです!
買い替えをご検討の方はこちら見学予約
お問い合わせ
0120-9332-31
- 営業時間 10:00~18:00
- 定休日 毎週火曜日・水曜日

