神戸市西区宮下1丁目
山陽本線 明石駅 バス26分 宮下2丁目 停歩2分
2LDK
建物面積:139.73㎡
土地面積:215.9㎡
1999年09月築
2,530万円



| 物件種別 | 中古戸建 |
| 所在地 | GoogleMaps |
| 交通 | 山陽本線 西明石駅 バス15分 出合中野公園 停歩1分 |
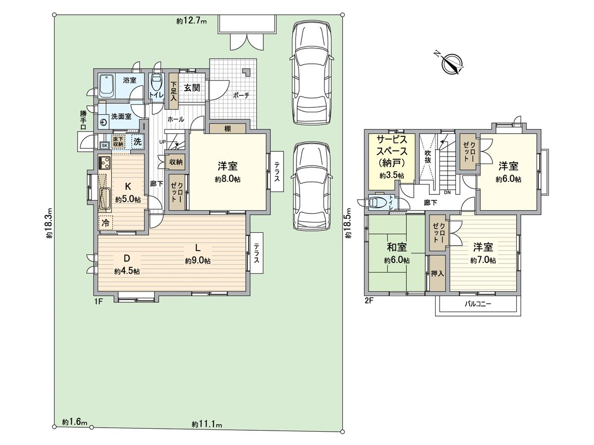
| 間取り | 4SLDK ※S・サービススペースは納戸です |
| 建物面積 | 118.41㎡(約35.81坪) |
| 土地面積 | 235.8㎡(約71.32坪) |
| 築年月 | 1988年04月築 |
○三井ホーム(株)旧施工の注文住宅 〇第一種低層住居専用地域内の閑静な住宅地 ○南西側は通路・水路になっており、陽あたり・通風良好です 〇敷地面積/235.80平米 南西側にお庭スペースあり 〇修繕履歴あり ・平成25年10月 1階トイレ 入れ替え ・平成22年1月 外壁および屋根、塗装・補修 ・平成19年9月 ・キッチン 入れ替え ・洗面化粧台 入れ替え ・1階 和室8帖→洋室8帖に改装 ・リビングダイニング、廊下、廊下 クロス張替え 室内の保守状況は良好です
| 所在地 | GoogleMaps |
| 価格 | 2,530万円 |
| 交通 | 山陽本線 西明石駅 バス15分 出合中野公園 停歩1分 |
| その他費用 | - |
| 間取り | 4SLDK ※S・サービススペースは納戸です |
| 建物面積 | 118.41㎡(約35.81坪) |
| 土地面積 | 235.8㎡(約71.32坪) |
| 築年月 | 1988年04月築 |
| 建物構造 | 木造2階建 |
| 現況 | 空家 |
| 駐車場 | 有 |
| 土地権利 | 所有権 |
| 地目 | 宅地 |
| 接道状況 | 北東側: 約 10m (公道) |
| 建ぺい率 | 50% |
| 容積率 | 100% |
| 用途地域 | 第一種低層住居専用地域 |
| 都市計画 | 市街化区域 |
| 備考 | - |
| 引渡時期 | 相談 |
| 取引態様 | 仲介 |
| 更新日 | 2026年04月17日 |
| 次回更新予定 | 2026年05月01日 |
| 物件番号 | FYEAGA9C |
最新のAI技術を活用した相談サービスです。
お客様一人ひとりのニーズに合わせて最適な情報をご提供します。
リハウスAIチャットの詳しい説明はこちら
GoogleMaps
| 公園 | 公園 約20m(徒歩1分) |
| その他利便施設1 | バス停 約20m(徒歩1分) |
三井不動産リアルティ株式会社
国土交通大臣(15)第777号
0120-9770-31
0120-9770-31
物件の売却をご検討の方は、 はやめの査定依頼がおすすめです!
買い替えをご検討の方はこちら0120-9770-31

