京都市左京区下鴨西本町
地下鉄烏丸線 北大路駅 徒歩14分
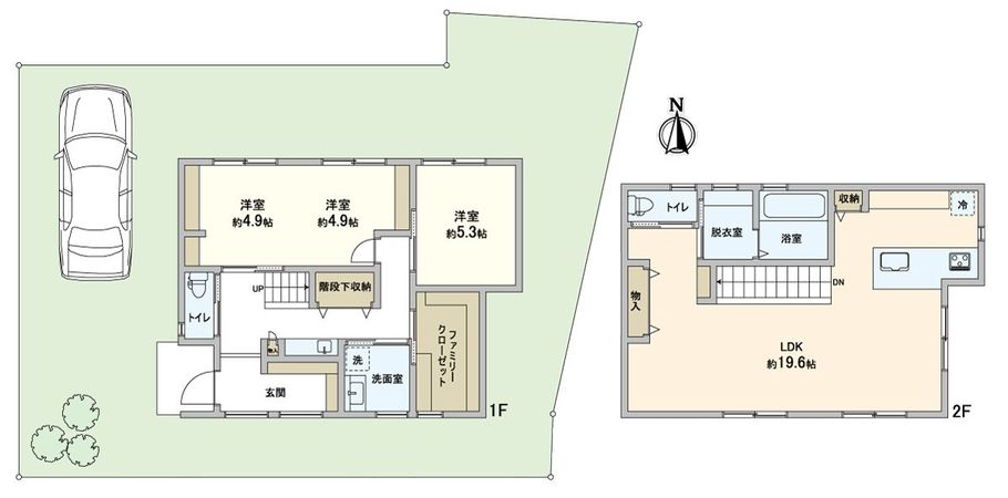
3LDK
建物面積:127.17㎡
土地面積:51.73㎡
1999年03月築
5,580万円



| 物件種別 | 中古戸建 |
| 所在地 | GoogleMaps |
| 交通 | 地下鉄烏丸線 国際会館駅 バス5分 西幡枝 停歩3分 |
| 間取り | 2LDK |
| 建物面積 | 94.81㎡(約28.68坪) |
| 土地面積 | 159.68㎡(約48.3坪) ※別途私道約13㎡有 |
| 築年月 | 2024年10月築 |
■ おすすめポイント ━━━━━━━━━━━━━━━・・・・・ ○令和6年10月建築の木造2階建て ○土地面積159.68平米(約48.3坪) ○LDK19.6帖 ○前面道路幅員約6.0m ○第一種低層住居専用地域 ○駐車スペース有(車種による制限有)
| 所在地 | GoogleMaps |
| 価格 | 5,580万円 |
| 交通 | 地下鉄烏丸線 国際会館駅 バス5分 西幡枝 停歩3分 |
| その他費用 | - |
| 間取り | 2LDK |
| 建物面積 | 94.81㎡(約28.68坪) |
| 土地面積 | 159.68㎡(約48.3坪) ※別途私道約13㎡有 |
| 築年月 | 2024年10月築 |
| 建物構造 | 木造2階建 |
| 現況 | 空家 |
| 駐車場 | 有 |
| 土地権利 | 所有権 |
| 地目 | 宅地 |
| 接道状況 | 北側: 約 6m (私道) |
| 建ぺい率 | 40% |
| 容積率 | 60% |
| 用途地域 | 第一種低層住居専用地域 |
| 都市計画 | 市街化区域 |
| 備考 | - |
| 引渡時期 | 相談 |
| 取引態様 | 仲介 |
| 更新日 | 2026年05月07日 |
| 次回更新予定 | 2026年05月21日 |
| 物件番号 | FYHATA39 |
最新のAI技術を活用した相談サービスです。
お客様一人ひとりのニーズに合わせて最適な情報をご提供します。
リハウスAIチャットの詳しい説明はこちら
GoogleMaps
| スーパー | ライフ宝ヶ池店 約940m(徒歩12分) |
| 小学校 | 京都市立岩倉南小学校 約1500m(徒歩19分) |
| 中学校 | 洛北中学校 約2000m(徒歩25分) |
| その他利便施設1 | セブンイレブン京都岩倉幡枝店 約550m(徒歩7分) |
| その他利便施設2 | 京都岩倉幡枝郵便局 約550m(徒歩7分) |
三井不動産リアルティ株式会社
国土交通大臣(15)第777号
0120-93-3431
0120-93-3431
物件の売却をご検討の方は、 はやめの査定依頼がおすすめです!
買い替えをご検討の方はこちら0120-93-3431

