北区大宮田尻町
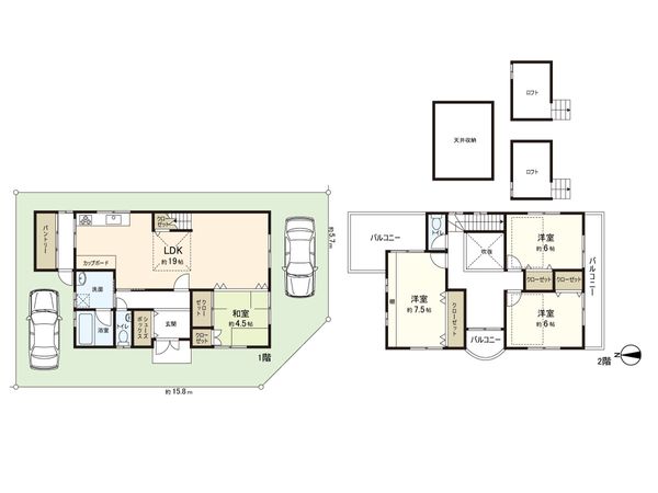
4LDK/93.96㎡(約28.42坪)
4,199万円



物件情報
おすすめポイント
周辺情報
取扱店舗
| 物件種別 | 中古戸建 |
| 所在地 | GoogleMaps |
| 交通 | 地下鉄烏丸線 北大路駅 バス14分 大宮田尻町 停歩3分 |
| 間取り | 4LDK |
| 建物面積 | 93.96㎡(約28.42坪) |
| 土地面積 | 120.5㎡(約36.45坪) |
| 築年月 | 2004年06月築 |
この物件情報を共有する
おすすめポイント
特徴
- 前面道路幅員6m以上
■ おすすめポイント ━━━━━━━━━━━━━━━・・・・・ ★令和6年5月リフォーム済 ・浴室・洗面台・トイレ・給湯器新調 ・畳・インターホン新調 ・玄関ドア・鍵取替え ・クロス・襖・障子張替え ・外壁塗装・防水(一部) ○ 南西角地 ○ 土地面積 120.50平米(約36.45坪) ○ 大宮小学校 徒歩2分(約110m) ○ 閑静な住宅街 ○ リビング上部吹き抜け
リノベーション&リフォーム情報
バスルーム交換 | トイレ交換 |
洗面化粧台交換 | 給湯器交換 |
水回り(浴室、トイレ、洗面所、給湯器)(2024年5月)
内装(畳・インターホン・クロス・襖・障子)(2024年5月)
外装(外壁、玄関ドア・鍵取替え)(2024年5月)
物件情報
| 所在地 | GoogleMaps |
| 価格 | 4,199万円 |
| 交通 | 地下鉄烏丸線 北大路駅 バス14分 大宮田尻町 停歩3分 |
| その他費用 | - |
| 間取り | 4LDK |
| 建物面積 | 93.96㎡(約28.42坪) |
| 土地面積 | 120.5㎡(約36.45坪) |
| 築年月 | 2004年06月築 |
| 建物構造 | 木造2階建 |
| 現況 | 空家 |
| 駐車場 | 有 |
| 土地権利 | 所有権 |
| 地目 | 宅地 |
| 接道状況 | 南側: 約 8m (公道)、西側: 約 6m (公道) |
| 建ぺい率 | 60% |
| 容積率 | 80% |
| 用途地域 | 第一種低層住居専用地域 |
| 都市計画 | 市街化区域 |
| 備考 | - |
| 引渡時期 | 相談 |
| 取引態様 | 仲介 |
| 更新日 | 2026年04月23日 |
| 次回更新予定 | 2026年05月07日 |
| 物件番号 | FYHATA6E |
この物件のことを
AIに聞いてみませんか?
最新のAI技術を活用した相談サービスです。
お客様一人ひとりのニーズに合わせて最適な情報をご提供します。
リハウスAIチャットの詳しい説明はこちら

周辺情報
GoogleMaps
| スーパー | コープにしがも 約300m(徒歩4分) |
| スーパー | フレスコ御薗橋店 約300m(徒歩4分) |
| 小学校 | 京都市立大宮小学校 約110m(徒歩2分) |
| 中学校 | 京都市立西賀茂中学校 約1700m(徒歩22分) |
| その他利便施設1 | セブンイレブン京都大宮総門口店 約350m(徒歩5分) |
| その他利便施設2 | スギ薬局西賀茂店 約400m(徒歩5分) |
| その他利便施設3 | 京都大宮小野堀郵便局 約650m(徒歩9分) |
取扱店舗
三井のリハウス 京都北センター
- 営業時間
- 10:00~18:00
- 定休日
- 毎週火曜日・水曜日
- 住所
- 京都府京都市左京区下鴨本町11-5 LANDSCAPE下鴨1F・2F
三井不動産リアルティ株式会社
国土交通大臣(15)第777号
三井のリハウス 京都北センター
- 営業時間10:00~18:00
- 定休日毎週火曜日・水曜日
0120-93-3431
あなたへのおすすめ
京都市北区の物件情報
この物件を見学してみませんか?
この物件についてお問い合わせ
物件・住環境の詳しい情報、購入・ローン相談など、ささいなことでもお気軽にお問い合わせください。三井のリハウス 京都北センター
- 営業時間10:00~18:00
- 定休日毎週火曜日・水曜日
0120-93-3431

物件の売却をご検討の方は、 はやめの査定依頼がおすすめです!
買い替えをご検討の方はこちら見学予約
お問い合わせ
0120-93-3431
- 営業時間 10:00~18:00
- 定休日 毎週火曜日・水曜日









