大阪市住之江区御崎5丁目
南海本線 住ノ江駅 徒歩7分
3LDK
建物面積:98.3㎡
土地面積:54.46㎡
2008年11月築
3,180万円



| 物件種別 | 中古戸建 |
| 所在地 | GoogleMaps |
| 交通 | 大阪メトロ四つ橋線 北加賀屋駅 徒歩8分 |
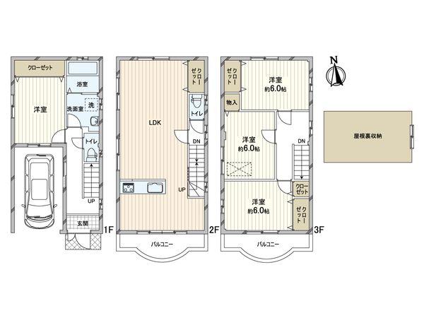
| 間取り | 4LDK |
| 建物面積 | 118.8㎡(約35.93坪) |
| 土地面積 | 53.6㎡(約16.21坪) |
| 築年月 | 1997年05月築 |
返済計画を入力すると毎月のお支払い目安を表示できます
■三井のリハウス■ 1997年5月建築 鉄骨造のリフォーム済物件 南向きのため、陽当たり、通風良好 -物件のおすすめポイント- ▼特徴 ・居室各所にお洒落なアクセントクロスを採用 ・クローゼット、屋根裏収納など収納スペースが豊富 ▼2025年11月室内リフォーム済 【新調】キッチン、UB、洗面化粧台、トイレ 【張替】全室クロス、CF貼替 【その他】建具交換、外壁一部塗装、ベランダ防水工事 ▼周辺環境 ・ライフ加賀屋店 徒歩8分(約620m) ・セブンイレブン大阪中加賀屋3丁目店 徒歩6分(約440m) ■ ご希望の住まい探しをお手伝いします ━━━━━・・・ 物件の詳細・ご相談はお気軽にお問い合わせください
| 所在地 | GoogleMaps |
| 価格 | 3,180万円 |
| 交通 | 大阪メトロ四つ橋線 北加賀屋駅 徒歩8分 |
| その他費用 | - |
| 間取り | 4LDK |
| 建物面積 | 118.8㎡(約35.93坪) |
| 土地面積 | 53.6㎡(約16.21坪) |
| 築年月 | 1997年05月築 |
| 建物構造 | 鉄骨造3階建 |
| 現況 | 空家 |
| 駐車場 | 有 |
| 土地権利 | 所有権 |
| 地目 | 宅地 |
| 接道状況 | 南側: 約 9m (公道) |
| 建ぺい率 | 80% |
| 容積率 | 200% |
| 用途地域 | 第一種住居地域 |
| 都市計画 | 市街化区域 |
| 備考 | - |
| 引渡時期 | 即時 |
| 取引態様 | 仲介 |
| 更新日 | 2026年02月16日 |
| 次回更新予定 | 2026年03月02日 |
| 物件番号 | FYVAGA3B |
最新のAI技術を活用した相談サービスです。
お客様一人ひとりのニーズに合わせて最適な情報をご提供します。
リハウスAIチャットの詳しい説明はこちら
三井不動産リアルティ株式会社
国土交通大臣(15)第777号
0120-14-5531
0120-14-5531
物件の売却をご検討の方は、 はやめの査定依頼がおすすめです!
買い替えをご検討の方はこちら0120-14-5531

