住之江区泉1丁目
9LDK/181.2㎡(約54.81坪)
2,480万円



物件情報
おすすめポイント
周辺情報
取扱店舗
| 物件種別 | 寮 |
| 所在地 | GoogleMaps |
| 交通 | |
| 間取り | 9LDK |
| 建物面積 | 181.2㎡(約54.81坪) |
| 土地面積 | 53.58㎡(約16.2坪) |
| 築年月 | 1994年08月築 |
この物件情報を共有する
毎月のお支払い目安
返済計画を入力すると毎月のお支払い目安を表示できます
- ローン70,007円
- 管理費+修繕積立金0円
- その他費用0円
お支払い目安70,007円
おすすめポイント
特徴
- 前面道路幅員6m以上
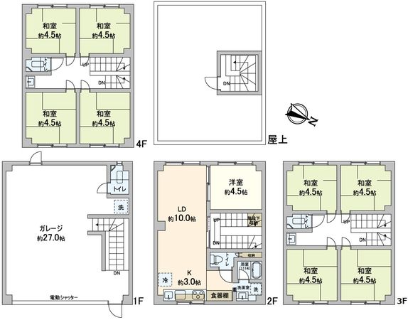
-物件のおすすめポイント- ▼立地 ・大阪メトロ四つ橋線『住之江公園』駅徒歩13分 ・南港ポートタウン線『住之江公園』駅徒歩13分 ・南港ポートタウン線『平林』駅徒歩14分 ・前面道路幅員は東側約6m ▼特徴 ・建物面積約54.8坪(181.2平米)の鉄骨造4階建 ・2階にはキッチン、浴室・洗面室などがございます ・3階、4階は和室が計8室ございます ・1階のビルトインガレージは大きめの工事車両などを駐車することができます ※本物件は規定の建ぺい率・容積率をオーバーしており、再建築にあたり同規模の建築物は建築できません。
物件情報
| 所在地 | GoogleMaps |
| 価格 | 2,480万円 |
| 交通 | |
| その他費用 | - |
| 間取り | 9LDK |
| 建物面積 | 181.2㎡(約54.81坪) |
| 土地面積 | 53.58㎡(約16.2坪) |
| 築年月 | 1994年08月築 |
| 建物構造 | 鉄骨造4階建 |
| 現況 | 空家 |
| 駐車場 | 有 |
| 土地権利 | 所有権 |
| 地目 | 宅地 |
| 接道状況 | 北東側: 約 6m (公道) |
| 建ぺい率 | 60% |
| 容積率 | 200% |
| 用途地域 | 準工業地域 |
| 都市計画 | 市街化区域 |
| 備考 | - |
| 引渡時期 | 相談 |
| 取引態様 | 仲介 |
| 更新日 | 2026年02月06日 |
| 次回更新予定 | 2026年02月20日 |
| 物件番号 | FYVAUA03 |
周辺情報
GoogleMaps
| スーパー | デイリーカナート住之江店 約600m(徒歩8分) |
| その他利便施設1 | ニューヤマザキデイリーストアボートレース住之江店 約800m(徒歩10分) |
| その他利便施設2 | ウエルシア住之江新北島店 約950m(徒歩12分) |
| その他利便施設3 | ロイヤルプロ住之江公園 約1200m(徒歩15分) |
取扱店舗
三井のリハウス 西田辺センター
- 営業時間
- 10:00~18:00
- 定休日
- 毎週火曜日・水曜日
- 住所
- 大阪府大阪市阿倍野区阪南町5-11-3 トーシン西田辺1F・2F
三井不動産リアルティ株式会社
国土交通大臣(15)第777号
三井のリハウス 西田辺センター
- 営業時間10:00~18:00
- 定休日毎週火曜日・水曜日
0120-14-5531
大阪市住之江区の物件情報
この物件を見学してみませんか?
この物件についてお問い合わせ
物件・住環境の詳しい情報、購入・ローン相談など、ささいなことでもお気軽にお問い合わせください。三井のリハウス 西田辺センター
- 営業時間10:00~18:00
- 定休日毎週火曜日・水曜日
0120-14-5531

物件の売却をご検討の方は、 はやめの査定依頼がおすすめです!
買い替えをご検討の方はこちら見学予約
お問い合わせ
0120-14-5531
- 営業時間 10:00~18:00
- 定休日 毎週火曜日・水曜日

