西宮市苦楽園二番町
阪急神戸線 夙川駅 バス13分 柏堂町 停歩8分
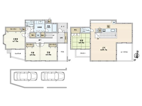
4SLDK
建物面積:245.3㎡
土地面積:203.34㎡
1989年08月築
6,380万円



| 物件種別 | 中古戸建 |
| 所在地 | GoogleMaps |
| 交通 | 阪急神戸線 夙川駅 バス12分 苦楽園 停歩8分 |
| 間取り | 3LDK |
| 建物面積 | 161.32㎡(約48.79坪) |
| 土地面積 | 195.75㎡(約59.21坪) |
| 築年月 | 2008年04月築 |
【2025年4月リフォーム完了済み】 ■全室クロス張替 ■和室畳表替え ■洗面所クッションフロア張替 ■全建具レバーハンドル塗装 ■キッチン水栓、ガスコンロ新調 ■2階、3階トイレ新調 ■ユニットバス:手摺り・排水ボタン・鏡新調 ■リビング:ダウンライト新調 ■ウッドデッキ補修塗装 ■火災警報器新調 ■ハウスクリーニング
| 所在地 | GoogleMaps |
| 価格 | 6,380万円 |
| 交通 | 阪急神戸線 夙川駅 バス12分 苦楽園 停歩8分 |
| その他費用 | - |
| 間取り | 3LDK |
| 建物面積 | 161.32㎡(約48.79坪) |
| 土地面積 | 195.75㎡(約59.21坪) |
| 築年月 | 2008年04月築 |
| 建物構造 | 木造3階建 |
| 現況 | 空家 |
| 駐車場 | 有 |
| 土地権利 | 所有権 |
| 地目 | 宅地 |
| 接道状況 | 東側: 約 5m (公道) |
| 建ぺい率 | 40% |
| 容積率 | 100% |
| 用途地域 | 第一種低層住居専用地域 |
| 都市計画 | 市街化区域 |
| 備考 | ゴミ置場面積:0.09平米・0.29平米持分あり 上記建物面積のうち1F車庫面積34.30㎡含む |
| 引渡時期 | 相談 |
| 取引態様 | 仲介 |
| 更新日 | 2026年04月30日 |
| 次回更新予定 | 2026年05月14日 |
| 物件番号 | FZGBAA04 |
最新のAI技術を活用した相談サービスです。
お客様一人ひとりのニーズに合わせて最適な情報をご提供します。
リハウスAIチャットの詳しい説明はこちら
GoogleMaps
| スーパー | 関西スーパー苦楽園店 約1550m(徒歩20分) |
| スーパー | コープ苦楽園 約1850m(徒歩24分) |
| 小学校 | 西宮市立苦楽園小学校 約570m(徒歩8分) |
| 中学校 | 西宮市立苦楽園中学校 約510m(徒歩7分) |
| その他利便施設1 | 甲陽園駅(阪急 甲陽線) 約2030m(徒歩26分) |
| その他利便施設2 | セブンイレブン西宮樋之池町店 約1370m(徒歩18分) |
| その他利便施設3 | スギ薬局苦楽園店 約1920m(徒歩24分) |
0120-76-3931
0120-76-3931
物件の売却をご検討の方は、 はやめの査定依頼がおすすめです!
買い替えをご検討の方はこちら0120-76-3931

