安城市東町荒井 戸建
2,849万円



| 物件種別 | 中古戸建 |
| 所在地 | GoogleMaps |
| 交通 | 名鉄西尾線 桜井駅 徒歩8分 |
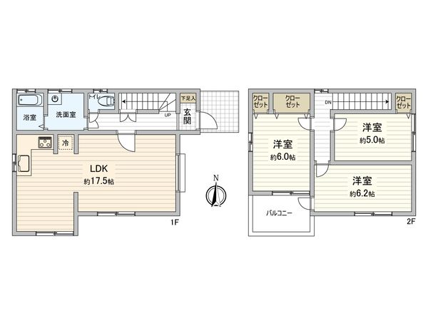
| 間取り | 3LDK |
| 建物面積 | 81.14㎡(約24.54坪) |
| 土地面積 | 130.19㎡(約39.38坪) ※別途私道約131㎡有 (共有持分 1/4) |
| 築年月 | 1991年09月築 |
この物件情報を共有する
予約制内覧会を開催します!
| 開催日 | 1月10日(土)10:00 ~ 17:00 1月11日(日)10:00 ~ 17:00 1月17日(土)10:00 ~ 17:00 1月18日(日)10:00 ~ 17:00 1月24日(土)10:00 ~ 17:00 |
|---|
毎月のお支払い目安
返済計画を入力すると毎月のお支払い目安を表示できます
- ローン80,423円
- 管理費+修繕積立金0円
- その他費用0円
おすすめポイント
-物件のおすすめポイント- ▼立地 ・名鉄西尾線「桜井」駅 徒歩8分 ▼建物の特徴 ・角地につき解放感あり ・駐車スペース2台分有(車種によります) ▼お部屋の特徴 ・ LDKは約17.5帖とゆったりくつろげる空間 ▼設備 ・ スペースを有効活用できるL字型キッチン ・ 南向きバルコニーに面した明るい洋室 ▼リフォーム内容(2025年9月実施) 【内装】水回り設備交換、玄関扉交換、 フローリング上張り、クロス張替え、 クッションフロア張替え、建具交換、 クローゼット交換、シューズボックス交換、 給湯器交換、インターホン設置、 火災警報器設置、照明LED交換 【外装】駐車場拡張、屋根・外壁塗装、庭木伐採 ■ ご希望の住まい探しをお手伝いします ━━━━━・・・ 物件の詳細・ご相談はお気軽にお問い合わせください。
リノベーション&リフォーム情報
台所(キッチン)交換 | バスルーム交換 |
トイレ交換 | 洗面化粧台交換 |
床貼り替え | 給湯器交換 |
扉交換 | 配管交換 |
水回り(キッチン、浴室、トイレ、洗面所、給排水管、給湯器)(2025年9月)
内装(床、壁、建具)(2025年9月)
外装(外壁、屋根)(2025年9月)
物件情報
| 所在地 | GoogleMaps |
| 価格 | 2,849万円 |
| 交通 | 名鉄西尾線 桜井駅 徒歩8分 |
| その他費用 | - |
| 間取り | 3LDK |
| 建物面積 | 81.14㎡(約24.54坪) |
| 土地面積 | 130.19㎡(約39.38坪) ※別途私道約131㎡有 (共有持分 1/4) |
| 築年月 | 1991年09月築 |
| 建物構造 | 軽量鉄骨造2階建 |
| 現況 | 空家 |
| 駐車場 | - |
| 土地権利 | 所有権 |
| 地目 | 宅地 |
| 接道状況 | 南側: 約 5.5m (私道)、東側: 約 4.1m (私道) |
| 建ぺい率 | 60% |
| 容積率 | 200% |
| 用途地域 | 第一種住居地域 |
| 都市計画 | 市街化区域 |
| 備考 | - |
| 引渡時期 | 即時 |
| 取引態様 | 仲介 |
| 更新日 | 2025年12月25日 |
| 次回更新予定 | 2026年01月08日 |
| 物件番号 | FZZAGA25 |
この物件のことを
AIに聞いてみませんか?
最新のAI技術を活用した相談サービスです。
お客様一人ひとりのニーズに合わせて最適な情報をご提供します。
リハウスAIチャットの詳しい説明はこちら

周辺情報
GoogleMaps
| スーパー | アピタ安城南店 約910m(徒歩12分) |
| 公園 | 堀内公園 約1570m(徒歩20分) |
| 小学校 | 安城市立桜林小学校 約990m(徒歩13分) |
| 中学校 | 安城市立桜井中学校 約510m(徒歩7分) |
| その他利便施設1 | ミニストップ安城碧海桜井店 約310m(徒歩4分) |
| その他利便施設2 | スギ薬局桜井店 約360m(徒歩5分) |
| その他利便施設3 | 桜井郵便局 約510m(徒歩7分) |
| その他利便施設4 | 碧海信用金庫桜井支店 約200m(徒歩3分) |
取扱店舗
- 営業時間
- 10:00~18:00
- 定休日
- 毎週火曜日・水曜日
- 住所
- 愛知県安城市末広町8-4 DENCITY CROSS SITE 1F
三井不動産リアルティ株式会社
国土交通大臣(15)第777号
三井のリハウス 安城センター
- 営業時間10:00~18:00
- 定休日毎週火曜日・水曜日
0120-61-5531
あなたへのおすすめ
安城市の物件情報
この物件を見学してみませんか?
この物件についてお問い合わせ
物件・住環境の詳しい情報、購入・ローン相談など、ささいなことでもお気軽にお問い合わせください。三井のリハウス 安城センター
- 営業時間10:00~18:00
- 定休日毎週火曜日・水曜日
0120-61-5531

物件の売却をご検討の方は、 はやめの査定依頼がおすすめです!
買い替えをご検討の方はこちら見学予約
お問い合わせ
0120-61-5531
- 営業時間 10:00~18:00
- 定休日 毎週火曜日・水曜日









