港区白金台3丁目
東京メトロ南北線 白金台駅 徒歩4分
3LDK / 86.17㎡
築1年未満
36,800万円



| 物件種別 | 中古マンション |
| 所在地 | GoogleMaps |
| 交通 | |
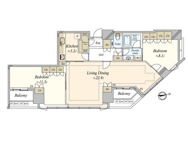
| 間取り | 2LDK |
| 専有面積 | 104.61㎡(約31.64坪) |
| 築年月 | 2014年07月築 |
| 階数 / 階建 | 3階 / 地上34階 地下1階建 |
| 向き | 東 |
返済計画を入力すると毎月のお支払い目安を表示できます
■ アクセス ━━━━━━━━━━・・・・・ ○ 都営浅草線「高輪台」駅 徒歩3分 ○ 都営三田線・東京メトロ南北線「白金台」駅 徒歩9分 ○ JR山手線「品川」駅 徒歩15分 ■ お部屋のポイント ━━━━━━━━━━━━━━━・・・・・ ○東・北角住戸 ○ 104.61平米の2LDK ○ 約28.1帖のゆったりとしたLDK ○ すべての部屋に天井カセット式エアコン ○洋室約11.3帖の間仕切りを開放しLDと一体で使用可 ○ TES式温水床暖房を設置(LD部分) ○ 二方向からアクセス可能なキッチン ○豊富な収納 ・クローゼット(各洋室) ・廊下収納 ・シューズインクローゼット ■ マンションのポイント ━━━━━━━━━━━━━━━・・・・・ ○野村不動産株式会社旧分譲 ○三井住友建設株式会社施工 ○ ホテルライクな内廊下設計 ○安心なトリプルセキュリティ ○24時間有人管理(夜間警備員対応) ○ペット飼育可(細則有) ○ 充実した共用施設とサービス ・ラウンジ ・コンシェルジュサービス ・スカイデッキ ・ゲストルーム ・各階ゴミステーション: 24時間ゴミ出し可
| 所在地 | GoogleMaps |
| 価格 | 36,800万円 |
| 交通 | |
| 管理費等 | 39,200円 |
| 修繕積立金 | 20,620円 |
| その他費用 | 共視聴施設負担金 165円 / 月、受入町会費 300円 / 月 |
| 間取り | 2LDK |
| 専有面積 | 104.61㎡(約31.64坪) |
| 築年月 | 2014年07月築 |
| 階数 / 階建 | 3階 / 地上34階 地下1階建 |
| 向き | 東 |
| バルコニー | 3.22㎡ |
| 現況 | 居住中 |
| 駐車場 | 空き無 |
| 建物構造 | 鉄筋コンクリート造 |
| 総戸数 | 188戸 |
| 管理会社 | 野村不動産パートナーズ株式会社 |
| 管理形態 | 管理会社に全部委託 |
| 管理員の 勤務形態 | 日勤 |
| 土地権利 | 所有権 |
| 分譲会社 | 野村不動産(株) (新築分譲時における売主) |
| 施工会社 | 三井住友建設(株) |
| 設計会社 | 三井住友建設(株) |
| 備考 | - |
| 引渡時期 | 相談 |
| 取引態様 | 仲介 |
| 更新日 | 2025年11月10日 |
| 次回更新予定 | 2025年11月24日 |
| 物件番号 | F07AUA01 |
GoogleMaps
| スーパー | リンコス高輪店 約320m(徒歩4分) |
| スーパー | マルエツプチ白金台店 約830m(徒歩11分) |
| 公園 | 池田山公園 約920m(徒歩12分) |
| 病院 | NTT東日本関東病院 約820m(徒歩11分) |
| 小学校 | 港区立白金小学校 約440m(徒歩6分) |
| 中学校 | 港区立高松中学校 約810m(徒歩11分) |
| その他利便施設1 | ローソン白金台二丁目店 約190m(徒歩3分) |
| その他利便施設2 | ツルハドラッグ高輪台店 約320m(徒歩4分) |
| その他利便施設3 | 高輪台郵便局 約330m(徒歩5分) |
0120-994-231
0120-994-231
物件の売却をご検討の方は、 はやめの査定依頼がおすすめです!
買い替えをご検討の方はこちら0120-994-231
