渋谷区広尾4丁目
東京メトロ日比谷線 広尾駅 徒歩11分
3LDK / 106.26㎡
2013年07月築
33,680万円



| 物件種別 | 中古マンション |
| 所在地 | GoogleMaps |
| 交通 | 東京メトロ日比谷線 広尾駅 徒歩6分 |
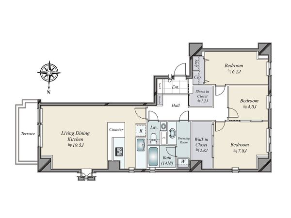
| 間取り | 3LDK |
| 専有面積 | 90.73㎡(約27.44坪) |
| 築年月 | 1985年07月築 |
| 階数 / 階建 | 1階 / 地上14階 地下2階建 |
| 向き | 東 |
返済計画を入力すると毎月のお支払い目安を表示できます
四季本来の潤いが楽しめるよう配置された街並み 豊かな自然が街並みを彩る、全15棟の佇まい ■東京メトロ日比谷線『広尾』駅徒歩6分の好立地 ■三井不動産×住友不動産×三菱地所 他旧分譲 ■清水建設×大林組×大成建設×鹿島建設 他施工 ■広尾に佇むヴィンテージマンション ■東向きにつき 日当たり良好 鮮やかな緑を望めます。 ■使いやすい3LDKの間取り+所有権平置駐車場1台 ■30年以上かけて成長した樹木がマンションと調和 ■大規模な敷地によりかなう、多彩な商業・共用施設 ■敷地中心に配置されたサンクンガーデン・商業施設 ■集中管理センターによる24時間有人管理 ■大切なペットと暮らせるマンション(※飼育細則有) ■ リフォーム内容━━━━━━━━━━━━━・・・・・ ※令和5年8月完了 ○カーペット張替 ○壁・天井クロス張替 ○建具交換 ○キッチン交換 ○ユニットバス交換 ○トイレ交換 ○給排水管交換等
| 所在地 | GoogleMaps |
| 価格 | 33,680万円 |
| 交通 | 東京メトロ日比谷線 広尾駅 徒歩6分 |
| 管理費等 | 29,570円 |
| 修繕積立金 | 16,769円 |
| その他費用 | - |
| 間取り | 3LDK |
| 専有面積 | 90.73㎡(約27.44坪) |
| 築年月 | 1985年07月築 |
| 階数 / 階建 | 1階 / 地上14階 地下2階建 |
| 向き | 東 |
| バルコニー | 6.52㎡ |
| 現況 | 空家 |
| 駐車場 | 敷地内有 (所有権) 空き:1台有り 月額 0円 (確認日:西暦2025年08月02日現在) |
| 建物構造 | 鉄骨鉄筋コンクリート造 |
| 総戸数 | 82戸 |
| 管理会社 | 住友不動産建物サービス株式会社 |
| 管理形態 | 管理会社に全部委託 |
| 管理員の 勤務形態 | 日勤 |
| 土地権利 | 所有権 |
| 分譲会社 | 住友不動産(株)、三井不動産(株)等 (新築分譲時における売主) |
| 施工会社 | 清水建設(株)等 |
| 設計会社 | 三菱地所(株)、圓堂建築設計事務所 |
| 備考 | - |
| 引渡時期 | 相談 |
| 取引態様 | 仲介 |
| 更新日 | 2025年10月25日 |
| 次回更新予定 | 2025年11月08日 |
| 物件番号 | F15AQA05 |
0120-600-332
0120-600-332
物件の売却をご検討の方は、 はやめの査定依頼がおすすめです!
買い替えをご検討の方はこちら0120-600-332
