大阪市西区北堀江3丁目
大阪メトロ千日前線 西長堀駅 徒歩2分 大阪メトロ御堂筋線「心斎橋」徒歩14分
1LDK / 46.03㎡
2018年12月築
6,299万円



| 物件種別 | 中古マンション |
| 所在地 | GoogleMaps |
| 交通 | |
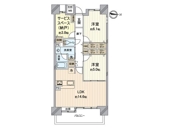
| 間取り | 2SLDK ※S・サービススペースは納戸です |
| 専有面積 | 63.72㎡(約19.27坪) |
| 築年月 | 1997年12月築 |
| 階数 / 階建 | 3階 / 地上15階 地下1階建 |
| 向き | 東 |
予約制内覧会を開催します!
| 開催日 | 5月9日(土)11:00 ~ 17:00 5月10日(日)11:00 ~ 17:00 5月16日(土)11:00 ~ 17:00 5月17日(日)11:00 ~ 17:00 5月23日(土)11:00 ~ 17:00 |
|---|
◇三井リハウス購入エージェント対応物件◇ ◆アクセス 〇大阪メトロ長堀鶴見緑地線『西長堀』駅 徒歩4分 〇大阪メトロ千日前線『桜川』駅 徒歩11分 ◆おすすめポイント 〇専有面積約63.72平米、3階部分2SLDKのお部屋 〇対面式キッチン 〇宅配ボックスあり 〇オートロックあり ◆2026年7月下旬リフォーム完成予定 【交換】 ユニットバス / 洗面化粧台 / トイレ システムキッチン / 玄関収納 洗濯水栓 / 防水パン / 建具 【貼替】 フローリング クロス(天井・壁)
| 所在地 | GoogleMaps |
| 価格 | 6,299万円 |
| 交通 | |
| 管理費等 | 10,000円 |
| 修繕積立金 | 18,800円 |
| その他費用 | - |
| 間取り | 2SLDK ※S・サービススペースは納戸です |
| 専有面積 | 63.72㎡(約19.27坪) |
| 築年月 | 1997年12月築 |
| 階数 / 階建 | 3階 / 地上15階 地下1階建 |
| 向き | 東 |
| バルコニー | 9.01㎡ |
| 現況 | 空家 |
| 駐車場 | - |
| 建物構造 | 鉄骨鉄筋コンクリート造 |
| 総戸数 | 54戸 |
| 管理会社 | 三菱地所コミュニティ(株) |
| 管理形態 | 管理会社に全部委託 |
| 管理員の 勤務形態 | 日勤 |
| 土地権利 | 所有権 |
| 分譲会社 | 丸紅(株) (新築分譲時における売主) |
| 施工会社 | 丸紅建設(株) |
| 設計会社 | (株)昭和設計 |
| 備考 | ◇購入エージェントグループとは◇ 三井のリハウスの購入専門チームになります。 「購入」に特化した買主様目線の提案交渉で安心と納得の購入をサポートします。 ぜひお気軽に私達にご相談して下さい。 |
| 引渡時期 | 2026年07月下旬以降 |
| 取引態様 | 仲介 |
| 更新日 | 2026年04月28日 |
| 次回更新予定 | 2026年05月12日 |
| 物件番号 | F1GBGA88 |
最新のAI技術を活用した相談サービスです。
お客様一人ひとりのニーズに合わせて最適な情報をご提供します。
リハウスAIチャットの詳しい説明はこちら
GoogleMaps
| スーパー | ライフ西大橋店 約370m(徒歩5分) |
| 病院 | 公益財団法人日本生命済生会日本生命病院 約1310m(徒歩17分) |
| その他利便施設1 | 大阪メトロ千日前線「西長堀」駅 約250m(徒歩4分) |
| その他利便施設2 | 桜川駅(Osaka Metro 千日前線) 約820m(徒歩11分) |
| その他利便施設3 | セブンイレブン大阪北堀江3丁目店 約130m(徒歩2分) |
| その他利便施設4 | ドラッグアカカベ阿波座店 約900m(徒歩12分) |
| その他利便施設5 | ホームセンターコーナン西本町店 約1030m(徒歩13分) |
| その他利便施設6 | 大阪問屋橋郵便局 約290m(徒歩4分) |
三井不動産リアルティ株式会社
国土交通大臣(15)第777号
0120-3815-31
0120-3815-31
物件の売却をご検討の方は、 はやめの査定依頼がおすすめです!
買い替えをご検討の方はこちら0120-3815-31

