石神井公園パーク・ホームズ
4,980万円



| 物件種別 | 中古マンション |
| 所在地 | GoogleMaps |
| 交通 | |
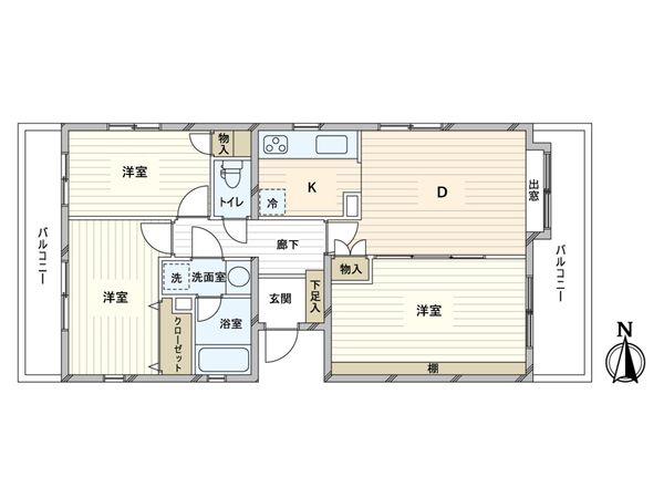
| 間取り | 3DK |
| 専有面積 | 58.64㎡(約17.73坪) |
| 築年月 | 1986年11月築 |
| 階数 / 階建 | 4階 / 地上7階建 |
| 向き | 東 |
この物件情報を共有する
毎月のお支払い目安
返済計画を入力すると毎月のお支払い目安を表示できます
- ローン140,578円
- 管理費+修繕積立金22,860円
- その他費用0円
おすすめポイント
設備
- 浴室乾燥機
特徴
- 全居室フローリング
- 三不/三不レジ旧分譲
~石神井公園パーク・ホームズ~ 4階部分・東・西・北の三方角部屋 ■ アクセス ━━━━━━━━・・・・・ ○ 西武池袋線「練馬高野台」駅徒歩3分 〇 西武池袋線「石神井公園」駅徒歩12分 ■ おすすめポイント ━━━━━━━・・・・・ ○ 三方角部屋のため通風良好です ○「練馬高野台」駅徒歩3分の利便性に優れた立地 ○ 三井不動産(株)旧分譲 ○ 専有面積58.64平米 3DK ○ 東・西向きの両面バルコニーのため風通し良好 ○ 令和4年度大規模修繕工事実施済み ○ 令和5年度インターホン改修工事実施済み ○ 安心の新耐震基準適合マンション ○ オートロックあり 〇 室内一部リフォーム履歴有り 【リフォーム履歴】 ・洗面台交換(令和6年2月) ・キッチン交換(令和6年2月) ・壁紙クロス貼替※リビング・キッチン・洗面所(令和6年2月) ・フローリング張替※リビング・キッチン(令和6年2月) ・浴室交換(令和1年8月) ・トイレ交換(令和1年8月) ・壁紙クロス貼替(令和1年8月) 【担当者より】 東・西・北の三方角部屋のため通風・陽当たり大変良好です。 駅徒歩3分の大変利便性に優れた物件です。 是非、一度お問合せ下さい。
リノベーション&リフォーム情報
全室クロス/壁紙貼り替え | 台所(キッチン)交換 |
洗面化粧台交換 | 床貼り替え |
水回り(キッチン、洗面所)(2024年2月)
内装(全室クロス、床)(2024年2月)
物件情報
| 所在地 | GoogleMaps |
| 価格 | 4,980万円 |
| 交通 | |
| 管理費等 | 11,130円 |
| 修繕積立金 | 11,730円 |
| その他費用 | - |
| 間取り | 3DK |
| 専有面積 | 58.64㎡(約17.73坪) |
| 築年月 | 1986年11月築 |
| 階数 / 階建 | 4階 / 地上7階建 |
| 向き | 東 |
| バルコニー | - |
| 現況 | 居住中 |
| 駐車場 | 空き無 |
| 建物構造 | 鉄筋コンクリート造 |
| 総戸数 | 59戸 |
| 管理会社 | 三井不動産レジデンシャルサービス(株) |
| 管理形態 | 管理会社に全部委託 |
| 管理員の 勤務形態 | 日勤 |
| 土地権利 | 所有権 |
| 分譲会社 | 三井不動産株式会社 (新築分譲時における売主) |
| 施工会社 | 三井建設株式会社 |
| 設計会社 | 三井建設株式会社 |
| 備考 | ※当住戸にバルコニーはありますが、面積については不明です。 |
| 引渡時期 | 相談 |
| 取引態様 | 仲介 |
| 更新日 | 2025年11月09日 |
| 次回更新予定 | 2025年11月23日 |
| 物件番号 | F22AUA03 |
周辺情報
GoogleMaps
| スーパー | ピーコックストア高野台店 約250m(徒歩4分) |
| スーパー | ヨークフーズ練馬高野台店 約280m(徒歩4分) |
| 公園 | 長光寺橋公園 約90m(徒歩2分) |
| 病院 | 順天堂大学医学部附属練馬病院 約150m(徒歩2分) |
| 小学校 | 練馬区立南田中小学校 約900m(徒歩12分) |
| 中学校 | 練馬区立石神井東中学校 約410m(徒歩6分) |
| その他利便施設1 | 練馬高野台駅(西武 池袋線) 約240m(徒歩3分) |
| その他利便施設2 | セブンイレブン練馬高野台駅前店 約280m(徒歩4分) |
| その他利便施設3 | 練馬高野台駅前郵便局 約150m(徒歩2分) |
| その他利便施設4 | トモズ練馬高野台店 約150m(徒歩2分) |
取扱店舗
- 営業時間
- 10:00~18:00
- 定休日
- 毎週火曜日・水曜日
- 住所
- 東京都練馬区石神井町2丁目14-1 石神井公園ピアレスA棟2F
三井不動産リアルティ株式会社
国土交通大臣(15)第777号
三井のリハウス 石神井公園センター
- 営業時間10:00~18:00
- 定休日毎週火曜日・水曜日
0120-19-0031
あなたへのおすすめ
練馬区の物件情報
この物件のリノベーションに関する問い合わせはこちらから。
リノベーション工事の可能範囲については、本物件の管理組合規約等により一定の制限が加わる場合がございます。詳細については、工事内容の確定後に判明する部分もありますので、この点については事前にお含みおきください。
リノベーションに関するお問い合わせこの物件を見学してみませんか?
この物件についてお問い合わせ
物件・住環境の詳しい情報、購入・ローン相談など、ささいなことでもお気軽にお問い合わせください。三井のリハウス 石神井公園センター
- 営業時間10:00~18:00
- 定休日毎週火曜日・水曜日
0120-19-0031

物件の売却をご検討の方は、 はやめの査定依頼がおすすめです!
買い替えをご検討の方はこちら見学予約
お問い合わせ
0120-19-0031
- 営業時間 10:00~18:00
- 定休日 毎週火曜日・水曜日









