石神井公園ピアレス A棟
15,980万円



| 物件種別 | 中古マンション |
| 所在地 | GoogleMaps |
| 交通 | 西武池袋・豊島線 石神井公園駅 徒歩2分 |
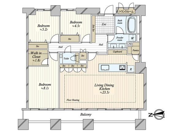
| 間取り | 3LDK |
| 専有面積 | 104.25㎡(約31.53坪) |
| 築年月 | 2002年03月築 |
| 階数 / 階建 | 33階 / 地上33階 地下2階建 |
| 向き | 西 |
この物件情報を共有する
予約制内覧会を開催します!
| 開催日 | 5月30日(土)10:30 ~ 17:00 5月31日(日)10:30 ~ 17:00 6月1日(月)10:30 ~ 17:00 6月2日(火)10:30 ~ 17:00 6月3日(水)10:30 ~ 17:00 |
|---|
おすすめポイント
設備
- 床暖房
- ウォークインクローゼット
- 浴室乾燥機
- オートロック
- 食器洗乾燥機
特徴
- 全居室フローリング
石神井公園ピアレス 最上階33階部分 ★新規内装リノベーション済み(令和8年1月完成)★ ~制振システムを採用した大規模タワーレジデンス~ ■ 所在・交通 ━━━━━━━━━━・・・・・ ○ 練馬区石神井町2-14-1 ○ 西武池袋線「石神井公園」駅徒歩2分 ■ ここがオススメ ━━━━━━━━━━・・・・・ 〇 新規内装リノベーション済み 〇 最上階33階部分 西向き ※富士山眺望(天候による) 〇 3LDK、W.I.C 専有面積104.25平米(壁芯) ※トランクルーム有り(使用料無償) 〇 総戸数294戸 大規模タワーレジデンス 〇 LDK約23.5帖 開放的なLDK ※カウンター付対面オープンキッチン ※リビング部分からバルコニーに出入り可能 ※LD部分床暖房 〇 柱や梁をバルコニー外周に出すアウトフレーム工法 〇 「石神井公園」駅ロータリーに面した ランドマークタワー 〇 鹿島建設(株)旧分譲 商業施設併設のタワーマンション 鹿島建設(株)・西武建設(株)施工 〇 24時間有人管理(夜間警備員) 〇 ペット飼育可(飼育細則有り) 〇 24時間微風換気システム 〇 スプリンクラー 〇 宅配BOX・メールBOX 〇 オートロック・防犯カメラ 〇 エレベーター全5基 ■ リノベーション内容 ━━━━━━━━━━・・・・・ ● 食器洗い乾燥機付システムキッチン交換 ● 浴室換気乾燥暖房機付ユニットバス交換 ● ツインボウル洗面化粧台交換 ● タンクレストイレ交換 ● 全室フローリング張替 ● 全室クロス張替 ● 間取一部変更 ● LD部分床暖房交換 など
バーチャルオープンハウス
室内を内覧しているように物件を見学することができます。
リノベーション&リフォーム情報
全室クロス/壁紙貼り替え | 台所(キッチン)交換 |
バスルーム交換 | トイレ交換 |
洗面化粧台交換 | 床貼り替え |
水回り(キッチン、浴室、トイレ、洗面所)(2026年1月)
内装(全室クロス、床、床暖房(LD部分)、間取一部変更)(2026年1月)
物件情報
| 所在地 | GoogleMaps |
| 価格 | 15,980万円 |
| 交通 | 西武池袋・豊島線 石神井公園駅 徒歩2分 |
| 管理費等 | 24,800円 |
| 修繕積立金 | 34,610円 |
| その他費用 | - |
| 間取り | 3LDK |
| 専有面積 | 104.25㎡(約31.53坪) |
| 築年月 | 2002年03月築 |
| 階数 / 階建 | 33階 / 地上33階 地下2階建 |
| 向き | 西 |
| バルコニー | 13.75㎡ |
| 現況 | 空家 |
| 駐車場 | 敷地内有 (賃貸) 空き:10台有り 月額 23,000円〜35,000円 (確認日:西暦2025年10月16日現在) |
| 建物構造 | 鉄骨鉄筋コンクリート造 |
| 総戸数 | 294戸 |
| 管理会社 | (株)東急コミュニティー |
| 管理形態 | 管理会社に全部委託 |
| 管理員の 勤務形態 | 日勤 |
| 土地権利 | 所有権 |
| 分譲会社 | 鹿島建設(株) (新築分譲時における売主) |
| 施工会社 | 鹿島建設(株)、西武建設(株) |
| 設計会社 | (株)I.N.A新建築研究所 |
| 備考 | ※専有面積にトランクルーム面積1.08平米含む |
| 引渡時期 | 即時 |
| 取引態様 | 仲介 |
| 更新日 | 2026年05月25日 |
| 次回更新予定 | 2026年06月08日 |
| 物件番号 | F22BGA26 |
この物件のことを
AIに聞いてみませんか?
最新のAI技術を活用した相談サービスです。
お客様一人ひとりのニーズに合わせて最適な情報をご提供します。
リハウスAIチャットの詳しい説明はこちら

周辺情報
GoogleMaps
| スーパー | クイーンズ伊勢丹石神井公園店 約70m(徒歩1分) |
| スーパー | ヨークフーズ石神井公園店 約230m(徒歩3分) |
| 公園 | 石神井公園 約480m(徒歩6分) |
| 病院 | 順天堂大学医学部附属練馬病院 約900m(徒歩12分) |
| 小学校 | 練馬区立光和小学校 約330m(徒歩5分) |
| 中学校 | 練馬区立石神井東中学校 約1060m(徒歩14分) |
| その他利便施設1 | ファミリーマート石神井公園店 約40m(徒歩1分) |
| その他利便施設2 | トモズ石神井公園店 約210m(徒歩3分) |
| その他利便施設3 | 石神井公園駅前郵便局 約470m(徒歩6分) |
| その他利便施設4 | 石神井公園駅(西武池袋線) 約160m(徒歩2分) |
取扱店舗
- 営業時間
- 10:00~18:00
- 定休日
- 毎週火曜日・水曜日
- 住所
- 東京都練馬区石神井町2丁目14-1 石神井公園ピアレスA棟2F
三井不動産リアルティ株式会社
国土交通大臣(15)第777号
三井のリハウス 石神井公園センター
- 営業時間10:00~18:00
- 定休日毎週火曜日・水曜日
0120-19-0031
あなたへのおすすめ
同じマンションの売買物件情報
練馬区の物件情報
この物件を見学してみませんか?
この物件についてお問い合わせ
物件・住環境の詳しい情報、購入・ローン相談など、ささいなことでもお気軽にお問い合わせください。三井のリハウス 石神井公園センター
- 営業時間10:00~18:00
- 定休日毎週火曜日・水曜日
0120-19-0031

物件の売却をご検討の方は、 はやめの査定依頼がおすすめです!
買い替えをご検討の方はこちら見学予約
お問い合わせ
0120-19-0031
- 営業時間 10:00~18:00
- 定休日 毎週火曜日・水曜日







