東村山市富士見町1丁目
西武拝島線 小川駅 徒歩16分
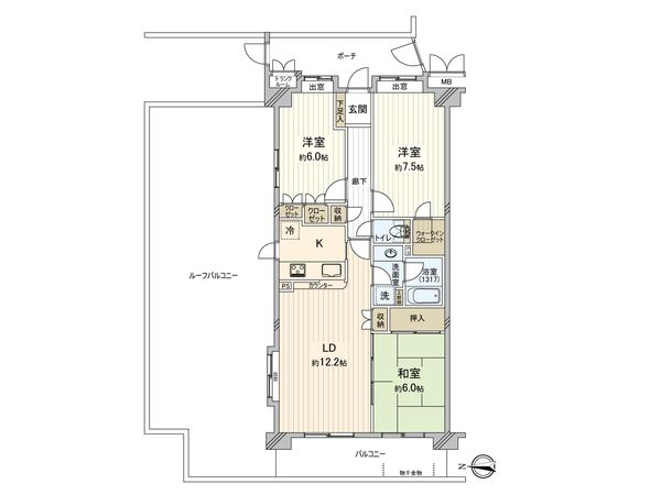
3LDK / 68.6㎡
2017年09月築
2,800万円



| 物件種別 | 中古マンション |
| 所在地 | GoogleMaps |
| 交通 | |
| 間取り | 3LDK |
| 専有面積 | 75.59㎡(約22.86坪) |
| 築年月 | 1999年11月築 |
| 階数 / 階建 | 7階 / 地上11階建 |
| 向き | 西 |
返済計画を入力すると毎月のお支払い目安を表示できます
-物件のおすすめポイント- ▼立地 ・西武国分寺線・西武拝島線「小川」駅 徒歩16分 ・西武多摩湖線「八坂」駅 徒歩19分 ・西武多摩湖線「八坂」駅 バス5分「明法学院前」停歩6分 ・3路線2駅ご利用可能です ▼マンションの特徴 ・総戸数125戸の大規模マンション ・「パーティールーム」「緑風庵」「ハーブガーデン」等、充実の共用施設 ・24時間有人管理 ▼お部屋の特徴 ・75.59平米の3LDK ・52.55平米の開放的なルーフバルコニー有り ・7階角住戸につき眺望・陽当たり・通風良好 ・ 晴天の日はバルコニーから富士山が望めるリビングダイニング ・収納豊富な間取り ‣約7.5帖の洋室にウォークインクローゼット有り ‣全居室に収納有り ‣トランクルーム有り ‣玄関、廊下、リビングに収納有り ・玄関ポーチ有り ▼設備・仕様 ・対面式システムキッチン ・耐震ラッチ付きキッチン吊戸棚 ・浴室換気乾燥機 ・宅配ボックス ・セキュリティ充実 (オートロックシステム、防犯カメラ、非常通報ボタン) ▼周辺環境 ・周辺には豊富な生活利便施設有り ・徒歩圏内に複数の買物施設があり、お買い物にも便利
| 所在地 | GoogleMaps |
| 価格 | 2,800万円 |
| 交通 | |
| 管理費等 | 9,390円 |
| 修繕積立金 | 10,500円 |
| その他費用 | - |
| 間取り | 3LDK |
| 専有面積 | 75.59㎡(約22.86坪) |
| 築年月 | 1999年11月築 |
| 階数 / 階建 | 7階 / 地上11階建 |
| 向き | 西 |
| バルコニー | 15.08㎡ |
| ルーフバルコニー | 52.55㎡ |
| 現況 | 居住中 |
| 駐車場 | 敷地内有 (賃貸) 空き:18台有り 月額 7,500円〜10,000円 (確認日:西暦2025年11月17日現在) |
| 建物構造 | 鉄骨鉄筋コンクリート造 |
| 総戸数 | 125戸 |
| 管理会社 | 株式会社合人社計画研究所 |
| 管理形態 | 管理会社に全部委託 |
| 管理員の 勤務形態 | 常勤 |
| 土地権利 | 所有権 |
| 分譲会社 | 東洋不動産(株)、新日本製鐵(株)、平和不動産(株)他 (新築分譲時における売主) |
| 施工会社 | (株)長谷工コーポレーション |
| 設計会社 | (株)長谷工コーポレーション |
| 備考 | ルーフバルコニー使用料 2600円 / 月 フレンドリークラブ会費 300円 / 月 【専有面積】専有面積75.59平米にはトランクルーム面積0.56平米が含まれます。 |
| 引渡時期 | 相談 |
| 取引態様 | 仲介 |
| 更新日 | 2025年11月17日 |
| 次回更新予定 | 2025年12月01日 |
| 物件番号 | F26AUA12 |
最新のAI技術を活用した相談サービスです。
お客様一人ひとりのニーズに合わせて最適な情報をご提供します。
GoogleMaps
| スーパー | ヤオコー東大和清原店 約740m(徒歩10分) |
| 公園 | 南台公園 約360m(徒歩5分) |
| 病院 | 高野外科胃腸科 約660m(徒歩9分) |
| 小学校 | 東村山市立南台小学校 約370m(徒歩5分) |
| 中学校 | 東村山市立東村山第一中学校 約790m(徒歩10分) |
| その他利便施設1 | ファミリーマート小平中宿通り店 約590m(徒歩8分) |
| その他利便施設2 | ウェルパーク東村山富士見町店 約200m(徒歩3分) |
| その他利便施設3 | サンドラッグ東村山富士見町店 約650m(徒歩9分) |
| その他利便施設4 | 小平小川西郵便局 約680m(徒歩9分) |
| その他利便施設5 | 東大和市清原市民センター 約970m(徒歩13分) |
三井不動産リアルティ株式会社
国土交通大臣(15)第777号
0120-323-661
リノベーション工事の可能範囲については、本物件の管理組合規約等により一定の制限が加わる場合がございます。詳細については、工事内容の確定後に判明する部分もありますので、この点については事前にお含みおきください。
リノベーションに関するお問い合わせ0120-323-661
物件の売却をご検討の方は、 はやめの査定依頼がおすすめです!
買い替えをご検討の方はこちら0120-323-661
