千代田区三番町
東京メトロ半蔵門線 半蔵門駅 徒歩8分
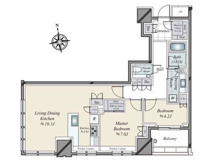
2LDK / 56.7㎡
築1年未満
18,500万円



| 物件種別 | 中古マンション |
| 所在地 | GoogleMaps |
| 交通 | |
| 間取り | 2LDK |
| 専有面積 | 56.7㎡(約17.15坪) |
| 築年月 | 2025年08月築 |
| 階数 / 階建 | 5階 / 地上18階 地下2階建 |
| 向き | 南 |
三井のリハウスHPをご覧いただきありがとうございます。 千代田区三番町にございます「パークコートザ・三番町ハウス」5階住戸のご紹介です。 -物件のおすすめポイント- ▼立地 複数駅・複数路線利用可の立地 ・半蔵門駅徒歩8分 ・市ヶ谷駅徒歩8分(JR中央・総武線は徒歩12分) ・九段下駅徒歩9分 ▼マンションの特徴 ・三井不動産レジデンシャル(株)旧分譲「パークコート」シリーズ ・2025年8月築の築浅物件 ・鉄筋コンクリート造18階建て、193戸の大規模マンション ・三井不動産レジデンシャルサービス管理 ・機械式駐車場(平置1台含む)完備 ・ペット飼育可能(細則有)、コンシェルジュサービスあり ・共用施設充実:ラウンジ、パーティールーム、ゲストルーム、ミーティングルーム、個室フィットネスルーム、ゴルフレンジ、サウンドスタジオ、等多数 ▼お部屋の特徴 ・約12.9帖の南向きリビングダイニングキッチン ・主寝室は約7.0帖、ウォークインクローゼット付 ・洋室約4.0帖はシングルベッド設置可能で収納も確保 ・リビングにピクチャーレール付 ▼設備 ・リビングダイニング、洋室に床暖房 ・浴室換気乾燥機 ・カメラモニター付インターホン、オートロックで防犯面配慮 ・宅配ボックス設置で不在時も荷物受取便利 ▼周辺環境 ・スーパーや飲食店が徒歩圏内に点在し生活利便性良好 ・教育施設や公園も近く、落ち着いた住環境 ・都心の利便性と静かな街並みが両立した立地 ■ ご希望の住まい探しをお手伝いします ━━━━━・・・ 物件の詳細・ご相談はお気軽にお問い合わせください。
| 所在地 | GoogleMaps |
| 価格 | 18,500万円 |
| 交通 | |
| 管理費等 | 32,150円 |
| 修繕積立金 | 12,930円 |
| その他費用 | インターネット等使用料 1,870円 / 月 |
| 間取り | 2LDK |
| 専有面積 | 56.7㎡(約17.15坪) |
| 築年月 | 2025年08月築 |
| 階数 / 階建 | 5階 / 地上18階 地下2階建 |
| 向き | 南 |
| バルコニー | 6.33㎡ |
| 現況 | 居住中 |
| 駐車場 | - |
| 建物構造 | 鉄筋コンクリート造 |
| 総戸数 | 193戸 |
| 管理会社 | 三井不動産レジデンシャルサービス(株) |
| 管理形態 | 管理会社に全部委託 |
| 管理員の 勤務形態 | 日勤 |
| 土地権利 | 定期借地権(地上権) 借地期間・借地料(月額) 2097年05月まで 7,990円 |
| 分譲会社 | 三井不動産レジデンシャル(株) (新築分譲時における売主) |
| 施工会社 | 五洋建設(株) |
| 設計会社 | 五洋建設(株) |
| 備考 | - |
| 引渡時期 | 相談 |
| 取引態様 | 仲介 |
| 更新日 | 2026年04月17日 |
| 次回更新予定 | 2026年05月01日 |
| 物件番号 | F2CBAA02 |
最新のAI技術を活用した相談サービスです。
お客様一人ひとりのニーズに合わせて最適な情報をご提供します。
リハウスAIチャットの詳しい説明はこちら
GoogleMaps
| スーパー | まいばすけっと九段南3丁目店 約230m(徒歩3分) |
| 公園 | 千鳥ヶ淵公園 約600m(徒歩8分) |
| 公園 | 東郷元帥記念公園 約450m(徒歩6分) |
| その他利便施設1 | セブンイレブン九段南大妻通り店 約100m(徒歩2分) |
| その他利便施設2 | ナチュラルローソン千代田三番町店 約450m(徒歩6分) |
| その他利便施設3 | くすりの福太郎九段北店 約450m(徒歩6分) |
| その他利便施設4 | 千代田区立四番町図書館 約350m(徒歩5分) |
| その他利便施設5 | 麹町郵便局 約450m(徒歩6分) |
三井不動産リアルティ株式会社
国土交通大臣(15)第777号
0120-429-309
0120-429-309
物件の売却をご検討の方は、 はやめの査定依頼がおすすめです!
買い替えをご検討の方はこちら0120-429-309

