ダイアパレス向ヶ丘遊園
4,890万円



| 物件種別 | 中古マンション |
| 所在地 | GoogleMaps |
| 交通 | |
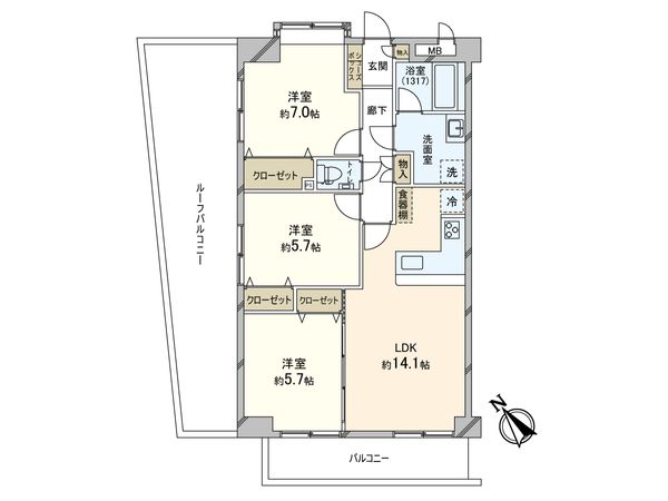
| 間取り | 3LDK |
| 専有面積 | 70.95㎡(約21.46坪) |
| 築年月 | 1986年09月築 |
| 階数 / 階建 | 5階 / 地上6階建 |
| 向き | 南西 |
この物件情報を共有する
予約制内覧会を開催します!
| 開催日 | 4月25日(土)11:00 ~ 16:00 4月26日(日)11:00 ~ 16:00 5月2日(土)11:00 ~ 16:00 5月3日(日)11:00 ~ 16:00 5月9日(土)11:00 ~ 16:00 |
|---|
おすすめポイント
設備
- 浴室乾燥機
- 食器洗乾燥機
特徴
- 全居室フローリング
-物件のおすすめポイント- ▼立地 ・小田急線「向ヶ丘遊園」駅 徒歩7分 ▼特徴 ・2025年8月内装リフォーム完了済 ・南西、北西、北東側の角住戸 ・専有面積70.95平米 ・約20.79平米のルーフバルコニーあり ・6階建5階部分につき日当たり・眺望良好 ・約14.1帖のゆとりのLDK ・L字型キッチン ▼リフォーム内容(2025年8月完了済) ・キッチン交換 ・浴室交換 ・洗面台交換 ・トイレ交換 ・クロス貼替 ・フローリング張替 ・建具交換 ・下駄箱交換 ・ハウスクリーニング実施 ▼リフォーム内容(2025年8月完了済み) ・キッチン交換 ・浴室交換 ・洗面化粧台交換 ・トイレ交換 ・クロス張替 ・全フローリング張替 ・建具交換
リノベーション&リフォーム情報
全室クロス/壁紙貼り替え | 台所(キッチン)交換 |
バスルーム交換 | トイレ交換 |
洗面化粧台交換 | 床貼り替え |
水回り(キッチン、浴室、トイレ、洗面所)(2025年8月)
内装(全室クロス、床)(2025年8月)
物件情報
| 所在地 | GoogleMaps |
| 価格 | 4,890万円 |
| 交通 | |
| 管理費等 | 16,700円 |
| 修繕積立金 | 15,070円 |
| その他費用 | - |
| 間取り | 3LDK |
| 専有面積 | 70.95㎡(約21.46坪) |
| 築年月 | 1986年09月築 |
| 階数 / 階建 | 5階 / 地上6階建 |
| 向き | 南西 |
| バルコニー | 7.09㎡ |
| ルーフバルコニー | 20.79㎡ |
| 現況 | 空家 |
| 駐車場 | 空き無 |
| 建物構造 | 鉄筋コンクリート造 |
| 総戸数 | 39戸 |
| 管理会社 | コミュニティワン(株) |
| 管理形態 | 管理会社に全部委託 |
| 管理員の 勤務形態 | 日勤 |
| 土地権利 | 所有権 |
| 分譲会社 | ダイア建設(株) (新築分譲時における売主) |
| 施工会社 | (株)三平興業 |
| 設計会社 | (株)三平興業 |
| 備考 | - |
| 引渡時期 | 即時 |
| 取引態様 | 仲介 |
| 更新日 | 2026年04月10日 |
| 次回更新予定 | 2026年04月24日 |
| 物件番号 | F39BGA04 |
この物件のことを
AIに聞いてみませんか?
最新のAI技術を活用した相談サービスです。
お客様一人ひとりのニーズに合わせて最適な情報をご提供します。
リハウスAIチャットの詳しい説明はこちら

周辺情報
GoogleMaps
| スーパー | イオンフードスタイル向ヶ丘店(クロス向ヶ丘内) 約410m(徒歩6分) |
| 病院 | ゆきぼしクリニック 約260m(徒歩4分) |
| 小学校 | 川崎市立東生田小学校 約1500m(徒歩19分) |
| 中学校 | 川崎市立生田中学校 約2200m(徒歩28分) |
| その他利便施設1 | ファミリーマート向ケ丘遊園南口店 約380m(徒歩5分) |
取扱店舗
- 営業時間
- 10:00~18:00
- 定休日
- 毎週火曜日・水曜日
- 住所
- 神奈川県川崎市多摩区登戸2423-1 maruei7 2F
三井不動産リアルティ株式会社
国土交通大臣(15)第777号
三井のリハウス 登戸センター
- 営業時間10:00~18:00
- 定休日毎週火曜日・水曜日
0120-310-641
あなたへのおすすめ
川崎市多摩区の物件情報
この物件を見学してみませんか?
この物件についてお問い合わせ
物件・住環境の詳しい情報、購入・ローン相談など、ささいなことでもお気軽にお問い合わせください。三井のリハウス 登戸センター
- 営業時間10:00~18:00
- 定休日毎週火曜日・水曜日
0120-310-641

物件の売却をご検討の方は、 はやめの査定依頼がおすすめです!
買い替えをご検討の方はこちら見学予約
お問い合わせ
0120-310-641
- 営業時間 10:00~18:00
- 定休日 毎週火曜日・水曜日









