港区三田1丁目
東京メトロ南北線 麻布十番駅 徒歩5分
2LDK / 102.21㎡
2024年12月築
119,800万円



| 物件種別 | 中古マンション |
| 所在地 | GoogleMaps |
| 交通 | |
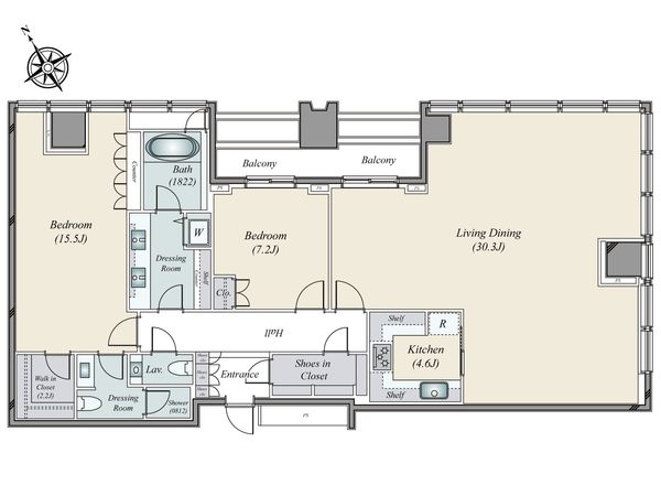
| 間取り | 2LDK |
| 専有面積 | 133.19㎡(約40.28坪) |
| 築年月 | 2009年06月築 |
| 階数 / 階建 | 32階 / 地上38階 地下2階建 |
| 向き | 北東 |
返済計画を入力すると毎月のお支払い目安を表示できます
■お部屋について ○32階 北東南東角住戸 〇東京タワーを望む眺望、日当たり・眺望良好 〇専有面積133.19平米 2LDK+WIC+SIC 〇約30.3帖のゆとりあるLD 〇1822サイズのバスルームから東京タワーの望む 〇マスターベッドルームにはシャワールーム設置 ■リフォーム内容(2025年8月末完了) 〇全室クロス貼替 〇エアコン交換 〇給湯器交換 〇食洗機、ディスポーザー交換 〇トイレ交換 〇浴室・洗面室水栓交換、浴室暖房乾燥機交換 〇カーペット貼替 ■マンションについて ○住友不動産株式会社旧分譲×清水・奥村建設共同企業体施工 ○直接基礎×制震構造タワーマンション ○3層吹き抜けのグランドエントランス、ラウンジ ○24時間有人管理(※夜間警備員) 〇ペット飼育可能(使用細則あり) ■ 共用施設(一部有償) 〇B1階:コーチエントランス、キッズルーム、コミュニティホール 〇1階:グランドラウンジ、コンシェルジュサービス、車寄 〇3階:ゲストルーム 〇24階・25階:スカイラウンジ
| 所在地 | GoogleMaps |
| 価格 | 119,800万円 |
| 交通 | |
| 管理費等 | 35,453円 |
| 修繕積立金 | 33,370円 |
| その他費用 | - |
| 間取り | 2LDK |
| 専有面積 | 133.19㎡(約40.28坪) |
| 築年月 | 2009年06月築 |
| 階数 / 階建 | 32階 / 地上38階 地下2階建 |
| 向き | 北東 |
| バルコニー | 11.04㎡ |
| 現況 | 空家 |
| 駐車場 | 敷地内有 (賃貸) 空き:40台有り 月額 39,000円〜68,000円 (確認日:西暦2025年12月04日現在) |
| 建物構造 | 鉄筋コンクリート造 |
| 総戸数 | 501戸 |
| 管理会社 | 住友不動産建物サービス(株) |
| 管理形態 | 管理会社に全部委託 |
| 管理員の 勤務形態 | 常勤 |
| 土地権利 | 所有権 |
| 分譲会社 | 住友不動産(株) (新築分譲時における売主) |
| 施工会社 | 清水建設(株)、(株)奥村組 |
| 設計会社 | (株)INA新建築研究所、(株)日建設計 |
| 備考 | - |
| 引渡時期 | 相談 |
| 取引態様 | 仲介 |
| 更新日 | 2026年01月17日 |
| 次回更新予定 | 2026年01月31日 |
| 物件番号 | F40AGA4C |
最新のAI技術を活用した相談サービスです。
お客様一人ひとりのニーズに合わせて最適な情報をご提供します。
リハウスAIチャットの詳しい説明はこちら
GoogleMaps
| スーパー | 日進ワールドデリカテッセン 約260m(徒歩4分) |
| 公園 | 飯倉公園 約410m(徒歩6分) |
| 公園 | 狸穴公園 約550m(徒歩7分) |
| 病院 | 国際医療福祉大学三田病院 約210m(徒歩3分) |
| 小学校 | 港区立赤羽小学校 約600m(徒歩8分) |
| 中学校 | 港区立三田中学校 約1480m(徒歩19分) |
三井不動産リアルティ株式会社
国土交通大臣(15)第777号
0120-92-1231
0120-92-1231
物件の売却をご検討の方は、 はやめの査定依頼がおすすめです!
買い替えをご検討の方はこちら0120-92-1231

