柏市東中新宿2丁目
東武野田線 新柏駅 徒歩12分
3LDK / 74.98㎡
1995年08月築
2,290万円



| 物件種別 | 中古マンション |
| 所在地 | GoogleMaps |
| 交通 | 東武野田線 新柏駅 徒歩14分 |
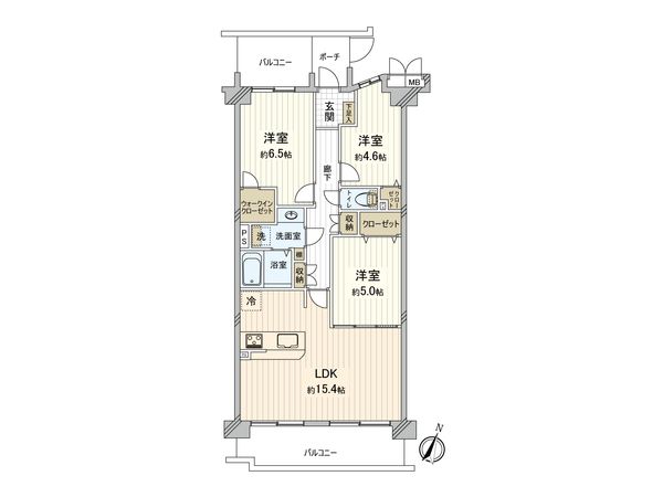
| 間取り | 3LDK |
| 専有面積 | 70.53㎡(約21.33坪) |
| 築年月 | 1995年03月築 |
| 階数 / 階建 | 3階 / 地上3階 地下1階建 |
| 向き | 南東 |
■ おすすめポイント ━━━━━━━━━━━━━━・・・・・ ○ 専有面積約70.53平米の3LDK ○ 南東向きにつき、陽当たり良好 ○ 両面バルコニーにつき、風通し良好 ○ ウォークインクローゼット有 ○ 小中学校まで徒歩10分圏内 ■ リフォーム内容(令和7年10月完了済)━━━━━━━━━━━━━━・・・・・ ○ システムキッチン交換 ○ ユニットバス交換 ○ 洗面化粧台交換 ○ トイレ交換 ○ 建具交換 ○ 配管更新 ○ 全室クロス貼替 ○ 床材貼替 ○ ハウスクリーニング
室内を内覧しているように物件を見学することができます。
| 所在地 | GoogleMaps |
| 価格 | 2,290万円 |
| 交通 | 東武野田線 新柏駅 徒歩14分 |
| 管理費等 | 13,200円 |
| 修繕積立金 | 13,790円 |
| その他費用 | - |
| 間取り | 3LDK |
| 専有面積 | 70.53㎡(約21.33坪) |
| 築年月 | 1995年03月築 |
| 階数 / 階建 | 3階 / 地上3階 地下1階建 |
| 向き | 南東 |
| バルコニー | 14.58㎡ |
| 現況 | 空家 |
| 駐車場 | 敷地内有 (賃貸) 空き:2台有り 月額 8,000円〜10,000円 (確認日:西暦2025年11月17日現在) |
| 建物構造 | 鉄筋コンクリート造 |
| 総戸数 | 82戸 |
| 管理会社 | (株)長谷工コミュニティ |
| 管理形態 | 管理会社に全部委託 |
| 管理員の 勤務形態 | 日勤 |
| 土地権利 | 所有権 |
| 分譲会社 | (株)長谷工不動産 (新築分譲時における売主) |
| 施工会社 | (株)長谷工コーポレーション |
| 設計会社 | (株)長谷工コーポレーション |
| 備考 | ※ポーチ面積:2.65平米 ※小学校・中学校の距離は通学路を利用した距離と異なる場合があります。 |
| 引渡時期 | 即時 |
| 取引態様 | 仲介 |
| 更新日 | 2026年04月20日 |
| 次回更新予定 | 2026年05月04日 |
| 物件番号 | F62AGA3E |
最新のAI技術を活用した相談サービスです。
お客様一人ひとりのニーズに合わせて最適な情報をご提供します。
リハウスAIチャットの詳しい説明はこちら
GoogleMaps
| スーパー | ヨークフーズ新柏店 約650m(徒歩9分) |
| 病院 | 名戸ヶ谷病院 約880m(徒歩11分) |
| 小学校 | 柏第八小学校 約280m(徒歩4分) |
| 中学校 | 柏第四中学校 約470m(徒歩6分) |
| その他利便施設1 | セブンイレブン新柏4丁目店 約450m(徒歩6分) |
| その他利便施設2 | ウエルシア柏名戸ヶ谷店 約820m(徒歩11分) |
| その他利便施設3 | 新柏駅前郵便局 約980m(徒歩13分) |
| その他利便施設4 | 名戸ヶ谷第四公園 約310m(徒歩4分) |
0120-983-331
0120-983-331
物件の売却をご検討の方は、 はやめの査定依頼がおすすめです!
買い替えをご検討の方はこちら0120-983-331

