レクセルプラッツァ柏
5,699万円



| 物件種別 | 中古マンション |
| 所在地 | GoogleMaps |
| 交通 | 千代田・常磐緩行線 南柏駅 徒歩12分 |
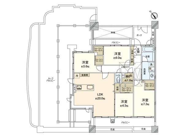
| 間取り | 4SLDK ※S・サービススペースは納戸です |
| 専有面積 | 103.21㎡(約31.22坪) |
| 築年月 | 2001年01月築 |
| 階数 / 階建 | 11階 / 地上11階 地下1階建 |
| 向き | 南西 |
この物件情報を共有する
おすすめポイント
設備
- ウォークインクローゼット
- 納戸
- オートロック
- 食器洗乾燥機
▼立地 ・JR千代田・常磐緩行線「南柏」駅 徒歩12分 ▼マンションの特徴 ・不在時にも荷物を受け取れる宅配ボックス ・快適な暮らしを守るオートロック ▼お部屋の特徴 ・専有面積:103.21平米の4SLDK ・ポーチ面積:6.09平米 ロフト面積:10.07平米 ・最上階11階部分、角部屋につき陽当り・通風良好 ・38.85平米の開放感あふれるルーフバルコニー ・ゆとりある約20.0帖のLDK ・ご家族との会話が弾む対面式キッチン ・WIC・ロフト収納等、収納充実 ▼設備 ・同時調理に便利な3口コンロのシステムキッチン ・家事の負担を軽減できる食洗機付 ▼リフォーム内容(令和8年3月完了) ・システムキッチン交換 ・ユニットバス交換 ・洗面化粧台交換 ・トイレ交換 ・洗濯水栓交換 ・防水パン交換 ・全室クロス張替 ・フロアタイル張替 ・フローリング張替 ・建具交換 ・ハウスクリーニング等 ▼周辺環境 ・イオンモール柏……約270m ・セブンイレブン柏吉野沢店……約190m
リノベーション&リフォーム情報
全室クロス/壁紙貼り替え | 台所(キッチン)交換 |
バスルーム交換 | トイレ交換 |
洗面化粧台交換 | 床貼り替え |
給湯器交換 | 扉交換 |
水回り(キッチン、浴室、トイレ、洗面所、給湯器)(2026年3月)
内装(全室クロス、床、建具)(2026年3月)
物件情報
| 所在地 | GoogleMaps |
| 価格 | 5,699万円 |
| 交通 | 千代田・常磐緩行線 南柏駅 徒歩12分 |
| 管理費等 | 15,120円 |
| 修繕積立金 | 10,630円 |
| その他費用 | ルーフバルコニー使用料 820円 / 月 |
| 間取り | 4SLDK ※S・サービススペースは納戸です |
| 専有面積 | 103.21㎡(約31.22坪) |
| 築年月 | 2001年01月築 |
| 階数 / 階建 | 11階 / 地上11階 地下1階建 |
| 向き | 南西 |
| バルコニー | 19.29㎡ |
| ルーフバルコニー | 38.85㎡ |
| 現況 | 空家 |
| 駐車場 | 敷地内有 (賃貸) 空き:7台有り 月額 8,400円〜9,450円 (確認日:西暦2025年12月22日現在) |
| 建物構造 | 鉄骨鉄筋コンクリート造 |
| 総戸数 | 114戸 |
| 管理会社 | 株式会社大京アステージ |
| 管理形態 | 管理会社に全部委託 |
| 管理員の 勤務形態 | 日勤 |
| 土地権利 | 所有権 |
| 分譲会社 | 扶桑レクセル(株) (新築分譲時における売主) |
| 施工会社 | 清水建設(株) |
| 設計会社 | (株)六器建築設計事務所 |
| 備考 | ※管理費に町内会費が含まれております。 ※管理組合運営協力金は外部区分所有者、役員就任を拒否した方、役員の職務を遂行していないと理事会が認めた方のみ徴収されます。 |
| 引渡時期 | 相談 |
| 取引態様 | 仲介 |
| 更新日 | 2026年05月14日 |
| 次回更新予定 | 2026年05月28日 |
| 物件番号 | F62AGA49 |
この物件のことを
AIに聞いてみませんか?
最新のAI技術を活用した相談サービスです。
お客様一人ひとりのニーズに合わせて最適な情報をご提供します。
リハウスAIチャットの詳しい説明はこちら

周辺情報
GoogleMaps
| 公園 | 吉野沢公園 約230m(徒歩3分) |
| 病院 | 松村医院 約330m(徒歩5分) |
| 小学校 | 柏市立豊小学校 約1150m(徒歩15分) |
| 中学校 | 柏市立中原中学校 約2520m(徒歩32分) |
| その他利便施設1 | イオンモール柏 約270m(徒歩4分) |
| その他利便施設2 | セブンイレブン柏吉野沢店 約190m(徒歩3分) |
| その他利便施設3 | マツモトキヨシ柏富里店 約660m(徒歩9分) |
| その他利便施設4 | MEGAドン・キホーテ柏店 約390m(徒歩5分) |
取扱店舗
三井のリハウス 柏センター
- 営業時間10:00~18:00
- 定休日毎週火曜日・水曜日
0120-983-331
あなたへのおすすめ
柏市の物件情報
この物件のリノベーションに関する問い合わせはこちらから。
リノベーション工事の可能範囲については、本物件の管理組合規約等により一定の制限が加わる場合がございます。詳細については、工事内容の確定後に判明する部分もありますので、この点については事前にお含みおきください。
リノベーションに関するお問い合わせこの物件を見学してみませんか?
この物件についてお問い合わせ
物件・住環境の詳しい情報、購入・ローン相談など、ささいなことでもお気軽にお問い合わせください。三井のリハウス 柏センター
- 営業時間10:00~18:00
- 定休日毎週火曜日・水曜日
0120-983-331

物件の売却をご検討の方は、 はやめの査定依頼がおすすめです!
買い替えをご検討の方はこちら見学予約
お問い合わせ
0120-983-331
- 営業時間 10:00~18:00
- 定休日 毎週火曜日・水曜日








