柏市柏6丁目
常磐線 柏駅 徒歩7分
2SLDK / 56.56㎡
1981年06月築
1,880万円



| 物件種別 | 中古マンション |
| 所在地 | GoogleMaps |
| 交通 | 東武野田線 新柏駅 徒歩12分 |
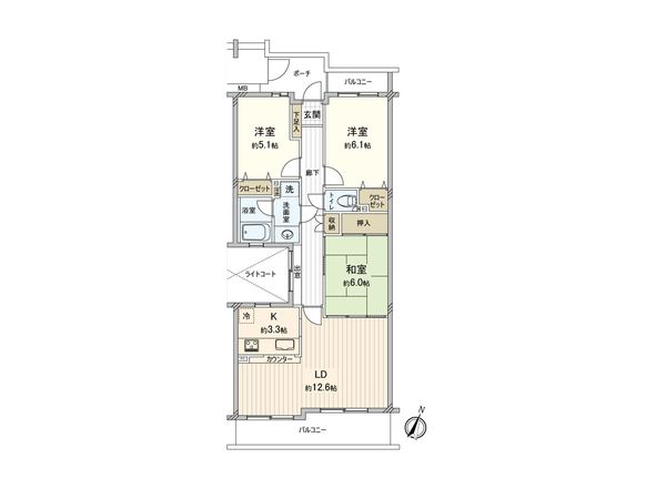
| 間取り | 3LDK |
| 専有面積 | 74.98㎡(約22.68坪) |
| 築年月 | 1995年08月築 |
| 階数 / 階建 | 3階 / 地上3階建 |
| 向き | 南東 |
-物件のおすすめポイント- ▼立地 ・東武野田線「新柏」駅 徒歩12分 ▼お部屋の特徴 ・専有面積74.98平米の3LDK ・南東向きの窓で明るいLDK ・ライトコート採光で室内に心地よい明るさを確保 ・和室6帖はリビングと隣接し使いやすい配置 ・玄関から廊下を通り各部屋にアクセス可能 ・両面バルコニーで通風良好 ▼設備 ・各居室に収納スペースを確保 ・和室は押入収納付きで客間や多用途に活用可能 ■ ご希望の住まい探しをお手伝いします ━━━━━・・・ 物件の詳細・ご相談はお気軽にお問い合わせください。
| 所在地 | GoogleMaps |
| 価格 | 1,880万円 |
| 交通 | 東武野田線 新柏駅 徒歩12分 |
| 管理費等 | 12,450円 |
| 修繕積立金 | 11,350円 |
| その他費用 | 自治会預り金 300円 / 月 |
| 間取り | 3LDK |
| 専有面積 | 74.98㎡(約22.68坪) |
| 築年月 | 1995年08月築 |
| 階数 / 階建 | 3階 / 地上3階建 |
| 向き | 南東 |
| バルコニー | 11.1㎡ |
| 現況 | 居住中 |
| 駐車場 | 敷地内有 (賃貸) 空き:12台有り 月額 4,000円〜8,000円 (確認日:西暦2026年03月05日現在) |
| 建物構造 | 鉄筋コンクリート造 |
| 総戸数 | 21戸 |
| 管理会社 | 三井不動産レジデンシャルサービス(株) |
| 管理形態 | 管理会社に全部委託 |
| 管理員の 勤務形態 | 日勤 |
| 土地権利 | 所有権 |
| 分譲会社 | (株)トーメンハウジング (新築分譲時における売主) |
| 施工会社 | 三井建設(株) |
| 設計会社 | 三井建設(株) |
| 備考 | ※ポーチ面積:4.24平米 ※マンション全体(西の街・東の街)の総戸数は173戸になります。 ※駐車場確認日:2026年3月5日 駐車場使用料:4000円~8000円(月額 ※小学校・中学校の距離は通学路を利用した距離と異なる場合があります。 |
| 引渡時期 | 相談 |
| 取引態様 | 仲介 |
| 更新日 | 2026年04月16日 |
| 次回更新予定 | 2026年04月30日 |
| 物件番号 | F62BBA15 |
最新のAI技術を活用した相談サービスです。
お客様一人ひとりのニーズに合わせて最適な情報をご提供します。
リハウスAIチャットの詳しい説明はこちら
GoogleMaps
| スーパー | ベルクス柏つくしが丘店 約880m(徒歩11分) |
| 公園 | 中新宿第五公園 約340m(徒歩5分) |
| 病院 | 平野医院 約990m(徒歩13分) |
| 小学校 | 立中原小学校 約1460m(徒歩19分) |
| 中学校 | 市立光ケ丘中学校 約610m(徒歩8分) |
| その他利便施設1 | セブンイレブン麗澤大学前店 約770m(徒歩10分) |
| その他利便施設2 | ウエルシア柏光ケ丘麗澤大学前店 約870m(徒歩11分) |
| その他利便施設3 | 柏つくしが丘郵便局 約420m(徒歩6分) |
0120-983-331
0120-983-331
物件の売却をご検討の方は、 はやめの査定依頼がおすすめです!
買い替えをご検討の方はこちら0120-983-331

