墨田区墨田3丁目
東武伊勢崎・大師線 鐘ヶ淵駅 徒歩7分
4LDK / 106.42㎡
2009年01月築
6,180万円



| 物件種別 | 中古マンション |
| 所在地 | GoogleMaps |
| 交通 | |
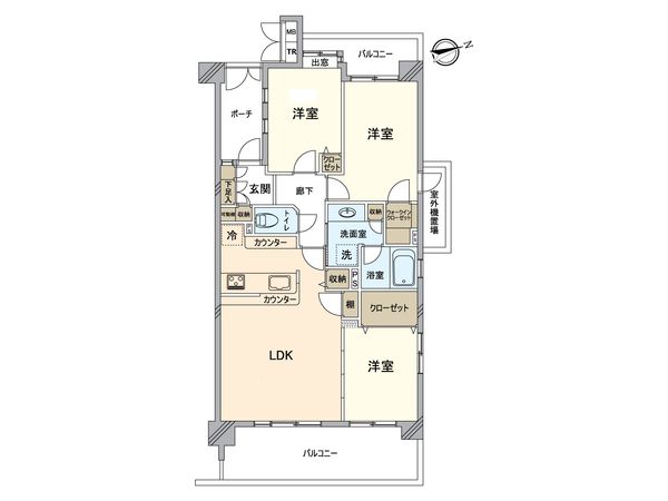
| 間取り | 3LDK |
| 専有面積 | 70.89㎡(約21.44坪) |
| 築年月 | 2001年05月築 |
| 階数 / 階建 | 4階 / 地上5階建 |
| 向き | 東 |
返済計画を入力すると毎月のお支払い目安を表示できます
■ アクセス ━━━━━━━━━━━━━━━・・・・・ ○ 東武亀戸線「小村井」駅 徒歩6分 ○ 京成電鉄押上線「京成曳舟」駅 徒歩13分 ○ 東武伊勢崎・大師線「曳舟」駅 徒歩15分 ■ おすすめポイント ━━━━━━━━━━━━━━━・・・・・ ○ 専有面積70.89平米の3LDK ○ 南東向き角住戸につき陽当たり良好 ○ 3面採光の明るいリビング ○ ペット飼育可(細則あり) ○ 家族との会話がはずむ対面式キッチン ○ オートロック ○ 宅配ボックスあり ○ ウォークインクローゼットあり ○ ロングポーチが戸建感覚と独立性を確保 ○ 3駅3沿線利用可能 ■ リノベーション内容(令和7年11月中旬完了) ━━━━━━━━━━━━━━━・・・・・ ○ キッチン水栓交換 ○ キッチンガスコンロ交換 ○ ユニットバス交換 ○ 温水洗浄機能付トイレ交換 ○ 洗濯機防水パン交換 ○ フローリング上貼 ○ クロス張替 ○ カーテンレール交換 ○ ハウスクリーニング 他
| 所在地 | GoogleMaps |
| 価格 | 6,180万円 |
| 交通 | |
| 管理費等 | 12,400円 |
| 修繕積立金 | 24,950円 |
| その他費用 | - |
| 間取り | 3LDK |
| 専有面積 | 70.89㎡(約21.44坪) |
| 築年月 | 2001年05月築 |
| 階数 / 階建 | 4階 / 地上5階建 |
| 向き | 東 |
| バルコニー | 17.81㎡ |
| 現況 | 空家 |
| 駐車場 | - |
| 建物構造 | 鉄筋コンクリート造 |
| 総戸数 | 50戸 |
| 管理会社 | (株)東急コミュニティー |
| 管理形態 | 管理会社に全部委託 |
| 管理員の 勤務形態 | 日勤 |
| 土地権利 | 所有権 |
| 分譲会社 | (株)フォーユー (新築分譲時における売主) |
| 施工会社 | 前田建設工業(株)東関東支店 |
| 設計会社 | (有)シー・エス・ディ設計室 |
| 備考 | ポーチ:4.80平米、室外機置場:2.24平米 |
| 引渡時期 | 相談 |
| 取引態様 | 仲介 |
| 更新日 | 2025年12月26日 |
| 次回更新予定 | 2026年01月09日 |
| 物件番号 | F71AGA68 |
最新のAI技術を活用した相談サービスです。
お客様一人ひとりのニーズに合わせて最適な情報をご提供します。
リハウスAIチャットの詳しい説明はこちら
GoogleMaps
| スーパー | まいばすけっと墨田八広2丁目店 約450m(徒歩6分) |
| 公園 | 京島南公園 約400m(徒歩5分) |
| 病院 | 墨田中央病院 約100m(徒歩2分) |
| 小学校 | 墨田区立第四吾嬬小学校 約110m(徒歩2分) |
| 中学校 | 墨田区立文花中学校 約550m(徒歩7分) |
| その他利便施設1 | セブンイレブン墨田京島2丁目店 約270m(徒歩4分) |
| その他利便施設2 | ローソン文花三丁目店 約250m(徒歩4分) |
| その他利便施設3 | 墨田京島郵便局 約500m(徒歩7分) |
三井不動産リアルティ株式会社
国土交通大臣(15)第777号
0120-431-631
0120-431-631
物件の売却をご検討の方は、 はやめの査定依頼がおすすめです!
買い替えをご検討の方はこちら0120-431-631

