ロータリーパレス藤沢
3,480万円



| 物件種別 | 中古マンション |
| 所在地 | GoogleMaps |
| 交通 | 小田急電鉄江ノ島線 善行駅 徒歩12分 |
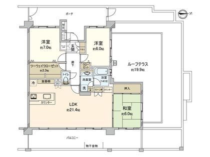
| 間取り | 3SLDK ※S・サービススペースは納戸です |
| 専有面積 | 92.5㎡(約27.98坪) |
| 築年月 | 2006年01月築 |
| 階数 / 階建 | 4階 / 地上14階 地下1階建 |
| 向き | 南 |
この物件情報を共有する
おすすめポイント
設備
- 浴室乾燥機
- ゲストルーム
- オートロック
- 食器洗乾燥機
特徴
- 全居室フローリング
- 玄関ポーチ付
■ おすすめポイント ━━━━━━━━━━━━━━━・・・・・ ○ 小田急江ノ島線「善行」駅 徒歩12分(約950m) ○ 南向きバルコニーから暖かい陽光が差し込むLDK約16.0帖 ○ LDKと隣接する洋室約6.0帖のスライドドアを開放して一体利用も可能 ○ 家族との会話が弾む対面式カウンターのシステムキッチン ○ 全居室収納がありますので、荷物が多くても困りません ○ 便利なトランクルーム付きの専用ポーチ ○ 出入り可能なバルコニーが2面あるので、用途によって使い分けができます ○ マンション内は、温水プール・大浴場・キッズルーム・シアタールームなど、 充実した共用施設あり(規約あり、一部利用料がかかる場合があります) ○ 大切なペットと暮らせるマンションです(規約制限あり) ○ スーパー、公園や病院等が徒歩10分圏内に点在し生活利便性良好 ■ リフォーム内容(2025年8月) ━━━━━━━━━・・・・・ 【新規交換】キッチン、洗面室、浴室、トイレ、建具 【張替】床 ■ 担当者より ━━━━━━━━━━━━・・・・・ ぜひ現地にて周辺環境と合わせてご覧いただければと思います。 ご内覧希望、物件の詳細・ご質問はメールフォームまたはフリーコールにて 三井のリハウス藤沢センターまでお気軽にご連絡ください。 また、ご購入に際しての諸費用、住宅ローン(月々の返済例)等、 資金計画のご相談も承っております。 そのほか連携金融機関のご紹介から、ご成約後のサポート・特典など、 三井のリハウスならではのサービスもご用意しておりますので、 お気軽にお問い合わせください。
リノベーション&リフォーム情報
台所(キッチン)交換 | バスルーム交換 |
トイレ交換 | 洗面化粧台交換 |
床貼り替え | 扉交換 |
水回り(キッチン、浴室、トイレ、洗面所)(2025年8月)
内装(床、建具)(2025年8月)
物件情報
| 所在地 | GoogleMaps |
| 価格 | 3,480万円 |
| 交通 | 小田急電鉄江ノ島線 善行駅 徒歩12分 |
| 管理費等 | 18,500円 |
| 修繕積立金 | 11,750円 |
| その他費用 | - |
| 間取り | 3SLDK ※S・サービススペースは納戸です |
| 専有面積 | 92.5㎡(約27.98坪) |
| 築年月 | 2006年01月築 |
| 階数 / 階建 | 4階 / 地上14階 地下1階建 |
| 向き | 南 |
| バルコニー | 20.56㎡ |
| 現況 | 空家 |
| 駐車場 | - |
| 建物構造 | 鉄筋コンクリート造 |
| 総戸数 | 229戸 |
| 管理会社 | (株)日本総合コミュニティー |
| 管理形態 | 管理会社に全部委託 |
| 管理員の 勤務形態 | 日勤 |
| 土地権利 | 所有権 |
| 分譲会社 | (株)総和地所 (新築分譲時における売主) |
| 施工会社 | (株)志多組東京支店 |
| 設計会社 | (株)アークピア |
| 備考 | ※サービスバルコニー面積:2.88平米 ※ポーチ面積:8.00平米 ※トランクルーム面積:0.50平米 |
| 引渡時期 | 即時 |
| 取引態様 | 仲介 |
| 更新日 | 2026年04月13日 |
| 次回更新予定 | 2026年04月27日 |
| 物件番号 | F90AGADC |
この物件のことを
AIに聞いてみませんか?
最新のAI技術を活用した相談サービスです。
お客様一人ひとりのニーズに合わせて最適な情報をご提供します。
リハウスAIチャットの詳しい説明はこちら

周辺情報
GoogleMaps
| スーパー | FUJI 善行店 約490m(徒歩7分) |
| 公園 | 善行第二公園 約100m(徒歩2分) |
| 公園 | 梅里公園 約180m(徒歩3分) |
| 病院 | えりクリニック 約680m(徒歩9分) |
| 小学校 | 藤沢市立大越小学校 約1090m(徒歩14分) |
| 中学校 | 藤沢市立第一中学校 約1870m(徒歩24分) |
| その他利便施設1 | ローソン 藤沢善行坂店 約710m(徒歩9分) |
| その他利便施設2 | ウエルシア本藤沢店 約530m(徒歩7分) |
| その他利便施設3 | 善行市民センター・市民図書館 約940m(徒歩12分) |
| その他利便施設4 | 藤沢善行郵便局 約1090m(徒歩14分) |
取扱店舗
三井のリハウス 藤沢センター
- 営業時間10:00~18:00
- 定休日毎週水曜日
0120-399-031
あなたへのおすすめ
同じマンションの売買物件情報
藤沢市の物件情報
この物件を見学してみませんか?
この物件についてお問い合わせ
物件・住環境の詳しい情報、購入・ローン相談など、ささいなことでもお気軽にお問い合わせください。三井のリハウス 藤沢センター
- 営業時間10:00~18:00
- 定休日毎週水曜日
0120-399-031

物件の売却をご検討の方は、 はやめの査定依頼がおすすめです!
買い替えをご検討の方はこちら見学予約
お問い合わせ
0120-399-031
- 営業時間 10:00~18:00
- 定休日 毎週水曜日










