藤沢市片瀬4丁目
江ノ島電鉄 江ノ島駅 徒歩4分
3LDK / 66.76㎡
2020年09月築
7,650万円



| 物件種別 | 中古マンション |
| 所在地 | GoogleMaps |
| 交通 | |
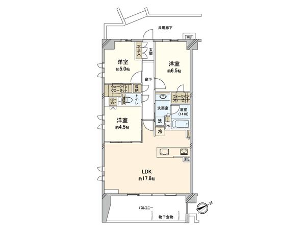
| 間取り | 3LDK |
| 専有面積 | 73.35㎡(約22.18坪) |
| 築年月 | 2024年01月築 |
| 階数 / 階建 | 2階 / 地上3階建 |
| 向き | 南東 |
-物件のおすすめポイント- ▼立地 ・江ノ島電鉄「湘南海岸公園」駅 徒歩3分 湘南モノレール「湘南江の島」駅 徒歩9分 小田急電鉄江ノ島線「片瀬江ノ島」駅 徒歩15分 ・3路線が利用でき、通勤通学に便利です ▼マンションの特徴 ・令和6年築の築浅マンション ・シックな色味の外観とラグジュアリーの空間を愉しむ ホテルライクな共用空間 ・サーファーにも便利な屋外シャワー設備 散歩後に便利なペット足洗い場も完備 ・ペット飼育可(飼育細則あり) ▼お部屋の特徴 ・角部屋 ・陽光が射し込む南東向きバルコニー ・約17.8帖の広々としたLDK ・LDKと洋室との間仕切りは可動式のため一体利用が可能 ・家族との会話が弾む対面システムキッチン ・WICを2ヶ所に設置した収納豊富な間取り ▼設備 ・食後の片付けをサポートしてくれる食器洗浄乾燥機 ・来客時や防犯対策に便利なTVモニター付きインターホン ・浴室乾燥機で雨の日でも楽々お洗濯 ・暮らしの安全を守るオートロック ▼周辺環境 ・上西原公園まで徒歩3分(約230m) 片瀬小学校まで徒歩7分(約500m) 子育てファミリーにも優しい住環境です ・片瀬クリニックプラザまで徒歩4分(約300m) 内科・皮膚科・小児科・整形外科・歯科が入居しています ・片瀬西浜・鵠沼海水浴場まで徒歩13分(約980m) マリンスポーツが趣味の方にもおすすめです ■ ご希望の住まい探しをお手伝いします ━━━━・・・ 物件の詳細・ご相談はお気軽にお問い合わせください。
| 所在地 | GoogleMaps |
| 価格 | 7,650万円 |
| 交通 | |
| 管理費等 | 20,610円 |
| 修繕積立金 | 6,310円 |
| その他費用 | インターネット 1,925円 / 月 |
| 間取り | 3LDK |
| 専有面積 | 73.35㎡(約22.18坪) |
| 築年月 | 2024年01月築 |
| 階数 / 階建 | 2階 / 地上3階建 |
| 向き | 南東 |
| バルコニー | 11.77㎡ |
| 現況 | 居住中 |
| 駐車場 | 空き無 |
| バイク置き場 | 空き有 月額1,500円 |
| 駐輪場 | 空き有 月額500円 |
| 建物構造 | 鉄筋コンクリート造 |
| 総戸数 | 35戸 |
| 管理会社 | (株)レーベンコミュニティ |
| 管理形態 | 管理会社に全部委託 |
| 管理員の 勤務形態 | 日勤 |
| 土地権利 | 所有権 |
| 分譲会社 | (株)タカラレーベン (新築分譲時における売主) |
| 施工会社 | りんかい日産建設(株) |
| 備考 | - |
| 引渡時期 | 相談 |
| 取引態様 | 仲介 |
| 更新日 | 2026年03月26日 |
| 次回更新予定 | 2026年04月09日 |
| 物件番号 | F90BCA12 |
最新のAI技術を活用した相談サービスです。
お客様一人ひとりのニーズに合わせて最適な情報をご提供します。
リハウスAIチャットの詳しい説明はこちら
GoogleMaps
| スーパー | 全日食チェーン YAOFUKU 約380m(徒歩5分) |
| スーパー | FUJI 鵠沼藤が谷店 約950m(徒歩12分) |
| 公園 | 上西原公園 約230m(徒歩3分) |
| 病院 | 片瀬クリニック 約80m(徒歩1分) |
| 病院 | 片瀬クリニックプラザ 約300m(徒歩4分) |
| 小学校 | 藤沢市立片瀬小学校 約500m(徒歩7分) |
| 中学校 | 藤沢市立片瀬中学校 約1390m(徒歩18分) |
| その他利便施設1 | セブン-イレブン 藤沢片瀬5丁目店 約250m(徒歩4分) |
| その他利便施設2 | 片瀬西浜・鵠沼海水浴場 約980m(徒歩13分) |
| その他利便施設3 | 新江ノ島水族館 約1170m(徒歩15分) |
0120-399-031
0120-399-031
物件の売却をご検討の方は、 はやめの査定依頼がおすすめです!
買い替えをご検討の方はこちら0120-399-031

