ラムーナ横浜戸塚 パークリッジ
2,980万円



| 物件種別 | 中古マンション |
| 所在地 | GoogleMaps |
| 交通 | |
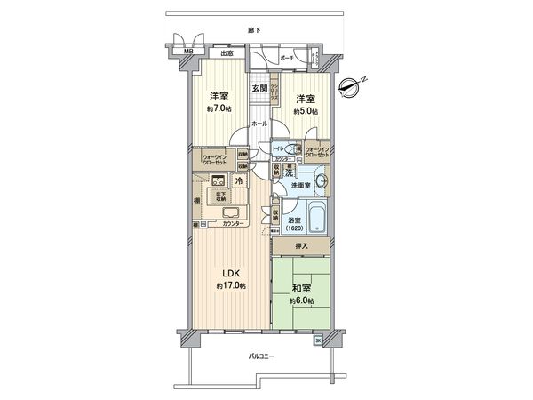
| 間取り | 3LDK |
| 専有面積 | 80.46㎡(約24.33坪) |
| 築年月 | 2002年08月築 |
| 階数 / 階建 | 3階 / 地上11階建 |
| 向き | 南東 |
この物件情報を共有する
毎月のお支払い目安
返済計画を入力すると毎月のお支払い目安を表示できます
- ローン84,121円
- 管理費+修繕積立金30,129円
- その他費用0円
おすすめポイント
設備
- ウォークインクローゼット
特徴
- 玄関ポーチ付
■ おすすめポイント━━━━━━━━━━━━━・・・・・ ○ JR各線・横浜市営地下鉄ブルーライン「戸塚」駅 徒歩23分 ○ 専有面積80.46平米、3LDK ○ ペット飼育可(飼育細則あり) ○ 採光良好 ○ 南東向きのため陽当たり良好 ○ ウォークインクローゼット2か所 ■ リフォーム内容(令和7年10月完了)━━━━・・・・・ ・ システムキッチン交換 ・ クロス張替 ・ 畳表替、障子張替、襖張替 ・ ハウスクリーニング 等 ■ 物件見学のご要望はお気軽に━━━━━━━━・・・・・ 物件見学のご要望、その他ご質問は、フリーコール またはメールフォームにて戸塚センターまでお気軽にお問合せくださいませ。 お客様に快適なお打ち合わせ等のご提供ができますよう、プライバシーに配慮した個室の接客スペースをご用意しておりますので、小さなお子様も一緒にご来店いただけます。 お車でお越しの際は駐車場サービス券をお渡し致しますので、トツカーナモールの駐車場をご利用ください。 お客様のご来店をスタッフ一同お待ちしております。
リノベーション&リフォーム情報
全室クロス/壁紙貼り替え | 扉交換 |
水回り(水廻りクッションフロア張替)(2025年10月)
内装(全室クロス、壁、建具、畳表替え、襖・障子貼替、ハウスクリーニン)(2025年10月)
物件情報
| 所在地 | GoogleMaps |
| 価格 | 2,980万円 |
| 交通 | |
| 管理費等 | 11,401円 |
| 修繕積立金 | 18,728円 |
| その他費用 | - |
| 間取り | 3LDK |
| 専有面積 | 80.46㎡(約24.33坪) |
| 築年月 | 2002年08月築 |
| 階数 / 階建 | 3階 / 地上11階建 |
| 向き | 南東 |
| バルコニー | 14.3㎡ |
| 現況 | 空家 |
| 駐車場 | 敷地内有 (賃貸) 空き:1台有り 月額 1,500円〜10,000円 (確認日:西暦2025年09月23日現在) |
| 建物構造 | 鉄骨鉄筋コンクリート造 |
| 総戸数 | 105戸 |
| 管理会社 | 日本ハウズイング株式会社 |
| 管理形態 | 管理会社に全部委託 |
| 管理員の 勤務形態 | 日勤 |
| 土地権利 | 所有権 |
| 分譲会社 | 洋伸不動産(株)、有楽土地(株)、ニチモ(株)等 (新築分譲時における売主) |
| 施工会社 | (株)長谷工コーポレーション |
| 設計会社 | (株)長谷工コーポレーション |
| 備考 | 修繕積立金内訳:団地修繕積立金月額1,392円、棟別修繕積立金月額17,336円 専有面積にトランクルー0.6平平米を含む。 |
| 引渡時期 | 2025年11月上旬以降 |
| 取引態様 | 仲介 |
| 更新日 | 2025年11月29日 |
| 次回更新予定 | 2025年12月13日 |
| 物件番号 | F91AGA9D |
この物件のことを
AIに聞いてみませんか?
最新のAI技術を活用した相談サービスです。
お客様一人ひとりのニーズに合わせて最適な情報をご提供します。
リハウスAIチャットの詳しい説明はこちら

周辺情報
GoogleMaps
| スーパー | まいばすけっと 上矢部町店 約700m(徒歩9分) |
| スーパー | 業務スーパー山手台店 約1350m(徒歩17分) |
| 公園 | 上矢部坂本第二公園 約110m(徒歩2分) |
| 病院 | ふじばし内科 約950m(徒歩12分) |
| 小学校 | 鳥が丘小学校 約1450m(徒歩19分) |
| 中学校 | 領家中学校 約1740m(徒歩22分) |
| その他利便施設1 | 戸塚駅 約1770m(徒歩23分) |
| その他利便施設2 | ローソン戸塚上矢部町店 約900m(徒歩12分) |
| その他利便施設3 | Fit Care DEPOT上矢部店 約910m(徒歩12分) |
| その他利便施設4 | 横浜上矢部郵便局 約940m(徒歩12分) |
取扱店舗
- 営業時間
- 10:00~18:00
- 定休日
- 毎週火曜日・水曜日
- 住所
- 神奈川県横浜市戸塚区戸塚町16-1 トツカーナモール4F
三井不動産リアルティ株式会社
国土交通大臣(15)第777号
三井のリハウス 戸塚センター
- 営業時間10:00~18:00
- 定休日毎週火曜日・水曜日
0120-679-031
あなたへのおすすめ
同じマンションの売買物件情報
横浜市戸塚区の物件情報
この物件のリノベーションに関する問い合わせはこちらから。
リノベーション工事の可能範囲については、本物件の管理組合規約等により一定の制限が加わる場合がございます。詳細については、工事内容の確定後に判明する部分もありますので、この点については事前にお含みおきください。
リノベーションに関するお問い合わせこの物件を見学してみませんか?
この物件についてお問い合わせ
物件・住環境の詳しい情報、購入・ローン相談など、ささいなことでもお気軽にお問い合わせください。三井のリハウス 戸塚センター
- 営業時間10:00~18:00
- 定休日毎週火曜日・水曜日
0120-679-031

物件の売却をご検討の方は、 はやめの査定依頼がおすすめです!
買い替えをご検討の方はこちら見学予約
お問い合わせ
0120-679-031
- 営業時間 10:00~18:00
- 定休日 毎週火曜日・水曜日










