ピアパレス戸塚
2,590万円



| 物件種別 | 中古マンション |
| 所在地 | GoogleMaps |
| 交通 | |
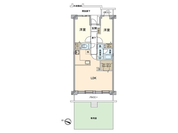
| 間取り | 2LDK |
| 専有面積 | 61.44㎡(約18.58坪) |
| 築年月 | 1985年02月築 |
| 階数 / 階建 | 1階 / 地上6階建 |
| 向き | 南西 |
この物件情報を共有する
おすすめポイント
設備
- ウォークインクローゼット
- 専用庭
■ おすすめポイント ━━━━━━━━━━━━━━━・・・・・ ○ JR各線「戸塚」駅バス11分、「富士橋」徒歩3分 ○ 全居室収納スペースあり ○ 約22平米の専用庭付住戸 ○ 143戸のビッグコミュニティ 〇 1階のため、下階を気にせずお過ごしいただけます 〇 徒歩7分圏内にスーパーやコンビニがございます 〇 内装リフォーム後のお引渡しとなります ■ リフォーム内容(2026年6月中旬完了)━━━━━━━━━━━━━━━・・・・・ ○ フロアタイル張替(玄関・トイレ・洗面室) ○ フローリング張替え(全室) ○ 下足入れ交換 ○ キッチン交換 ○ ユニットバス交換 ○ 洗面化粧台交換(三面鏡タイプ) ○ 建具交換 ○ 室内物干し設置(LDK) ■ 物件見学のご要望はお気軽に━━━━━━━━━━━━━━━・・・・・ 物件見学のご要望、その他ご質問は、フリーコール またはメールフォームにて戸塚センターまでお気軽にご連絡ください。 より多くのお客様に快適なお打ち合わせ等のご提供ができますよう、プライバシーに配慮した個室の接客スペースもご用意しておりますので、小さなお子様も一緒にご来店いただけます。 お車でお越しの際はトツカーナモールの駐車場をご利用ください。 駐車場サービス券をお渡ししております。 皆様のお問い合わせ・ご来店を心よりお待ちしております。
リノベーション&リフォーム情報(予定含む)
台所(キッチン)交換 | バスルーム交換 |
洗面化粧台交換 | 床貼り替え |
扉交換 |
水回り(キッチン、浴室、洗面所)(2026年6月)
内装(床、壁、建具、ハウスクリーニング)(2026年6月)
物件情報
| 所在地 | GoogleMaps |
| 価格 | 2,590万円 |
| 交通 | |
| 管理費等 | 8,190円 |
| 修繕積立金 | 10,647円 |
| その他費用 | 専用庭使用料 300円 / 月、専用庭使用料 300円 / 月 |
| 間取り | 2LDK |
| 専有面積 | 61.44㎡(約18.58坪) |
| 築年月 | 1985年02月築 |
| 階数 / 階建 | 1階 / 地上6階建 |
| 向き | 南西 |
| バルコニー | 6.72㎡ |
| 専用庭 | 22.4㎡ |
| 現況 | 空家 |
| 駐車場 | 空き無 |
| 建物構造 | 鉄筋コンクリート造 |
| 総戸数 | 143戸 |
| 管理会社 | (株)長谷工コミュニティ |
| 管理形態 | 管理会社に全部委託 |
| 管理員の 勤務形態 | 日勤 |
| 土地権利 | 所有権 |
| 分譲会社 | (株)ファミリー (新築分譲時における売主) |
| 施工会社 | (株)長谷川工務店 |
| 備考 | - |
| 引渡時期 | 2026年06月下旬以降 |
| 取引態様 | 仲介 |
| 更新日 | 2026年05月24日 |
| 次回更新予定 | 2026年06月07日 |
| 物件番号 | F91BCA0B |
この物件のことを
AIに聞いてみませんか?
最新のAI技術を活用した相談サービスです。
お客様一人ひとりのニーズに合わせて最適な情報をご提供します。
リハウスAIチャットの詳しい説明はこちら

周辺情報
GoogleMaps
| スーパー | まいばすけっと 上矢部町店 約450m(徒歩6分) |
| スーパー | イオンスタイル戸塚 約1300m(徒歩17分) |
| 公園 | 名瀬町南第二公園 約550m(徒歩7分) |
| 病院 | ふじばし内科 約290m(徒歩4分) |
| 小学校 | 秋葉小学校 約850m(徒歩11分) |
| 中学校 | 秋葉中学校 約850m(徒歩11分) |
| その他利便施設1 | クリエイトエス・ディー戸塚秋葉町店 約230m(徒歩3分) |
| その他利便施設2 | セブンイレブン横浜戸塚秋葉町店 約80m(徒歩1分) |
| その他利便施設3 | ローソン・スリーエフ戸塚名瀬店 約230m(徒歩3分) |
| その他利便施設4 | 横浜上矢部郵便局 約650m(徒歩9分) |
取扱店舗
- 営業時間
- 10:00~18:00
- 定休日
- 毎週火曜日・水曜日
- 住所
- 神奈川県横浜市戸塚区戸塚町16-1 トツカーナモール4F
三井不動産リアルティ株式会社
国土交通大臣(15)第777号
三井のリハウス 戸塚センター
- 営業時間10:00~18:00
- 定休日毎週火曜日・水曜日
0120-679-031
あなたへのおすすめ
横浜市戸塚区の物件情報
この物件を見学してみませんか?
この物件についてお問い合わせ
物件・住環境の詳しい情報、購入・ローン相談など、ささいなことでもお気軽にお問い合わせください。三井のリハウス 戸塚センター
- 営業時間10:00~18:00
- 定休日毎週火曜日・水曜日
0120-679-031

物件の売却をご検討の方は、 はやめの査定依頼がおすすめです!
買い替えをご検討の方はこちら見学予約
お問い合わせ
0120-679-031
- 営業時間 10:00~18:00
- 定休日 毎週火曜日・水曜日









