大和市下鶴間2丁目
小田急電鉄江ノ島線 鶴間駅 徒歩18分
3LDK / 65.83㎡
2008年02月築
2,980万円



| 物件種別 | 中古マンション |
| 所在地 | GoogleMaps |
| 交通 | 小田急電鉄江ノ島線 鶴間駅 徒歩13分 |
| 間取り | 3LDK |
| 専有面積 | 82.49㎡(約24.95坪) |
| 築年月 | 2005年12月築 |
| 階数 / 階建 | 13階 / 地上15階建 |
| 向き | 南 |
返済計画を入力すると毎月のお支払い目安を表示できます
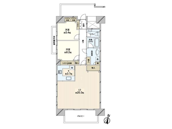
-物件のおすすめポイント- ▼立地 ・南向きの高層マンションで日当たり良好 ・広いバルコニーが開放感を演出 ▼マンションの特徴 ・明るい色調の外壁で清潔感ある外観 ・管理体制が整い安心して暮らせる環境 ▼お部屋の特徴 ・約20.3帖の南向きリビングダイニングで明るい ・約6.2帖と約5.4帖の洋室が隣接し使いやすい ▼設備 ・システム収納を備えたキッチンで収納充実 ・洗面室に棚があり小物の整理に便利 ▼周辺環境 ・周辺は落ち着いた住宅街で静かな住環境 ・徒歩圏内にスーパーやクリニックが揃う利便性 ■ ご希望の住まい探しをお手伝いします ━━━━━・・・ 物件の詳細・ご相談はお気軽にお問い合わせください。
| 所在地 | GoogleMaps |
| 価格 | 2,980万円 |
| 交通 | 小田急電鉄江ノ島線 鶴間駅 徒歩13分 |
| 管理費等 | 10,590円 |
| 修繕積立金 | 35,471円 |
| その他費用 | - |
| 間取り | 3LDK |
| 専有面積 | 82.49㎡(約24.95坪) |
| 築年月 | 2005年12月築 |
| 階数 / 階建 | 13階 / 地上15階建 |
| 向き | 南 |
| バルコニー | 10㎡ |
| 現況 | 居住中 |
| 駐車場 | 無 |
| 建物構造 | 鉄筋コンクリート造 |
| 総戸数 | 60戸 |
| 管理会社 | (株)東急コミュニティー |
| 管理形態 | 管理会社に全部委託 |
| 管理員の 勤務形態 | 日勤 |
| 土地権利 | 所有権 |
| 分譲会社 | ダイア建設(株) (新築分譲時における売主) |
| 施工会社 | 三平建設(株) |
| 設計会社 | (株)嘉環境建築設計 |
| 備考 | - |
| 引渡時期 | 相談 |
| 取引態様 | 仲介 |
| 更新日 | 2025年11月28日 |
| 次回更新予定 | 2025年12月12日 |
| 物件番号 | F94AUA06 |
最新のAI技術を活用した相談サービスです。
お客様一人ひとりのニーズに合わせて最適な情報をご提供します。
リハウスAIチャットの詳しい説明はこちら
GoogleMaps
| 公園 | 大和原2号公園 約220m(徒歩3分) |
| 病院 | 大和市立病院 約220m(徒歩3分) |
| 小学校 | 大和市立大和小学校 約290m(徒歩4分) |
| 中学校 | 大和市立大和中学校 約600m(徒歩8分) |
| その他利便施設1 | 鶴間駅東口(小田急 江ノ島線) 約1015m(徒歩13分) |
| その他利便施設2 | イオンモール大和 約85m(徒歩2分) |
| その他利便施設3 | セブンイレブン大和鶴間1丁目店 約430m(徒歩6分) |
| その他利便施設4 | ドン・キホーテ大和店 約580m(徒歩8分) |
| その他利便施設5 | 大和市役所 約160m(徒歩2分) |
| その他利便施設6 | 大和下鶴間郵便局 約830m(徒歩11分) |
三井不動産リアルティ株式会社
国土交通大臣(15)第777号
0120-313-143
0120-313-143
物件の売却をご検討の方は、 はやめの査定依頼がおすすめです!
買い替えをご検討の方はこちら0120-313-143

