ライオンズ四谷タワーゲート
12,480万円



| 物件種別 | 中古マンション |
| 所在地 | GoogleMaps |
| 交通 | |
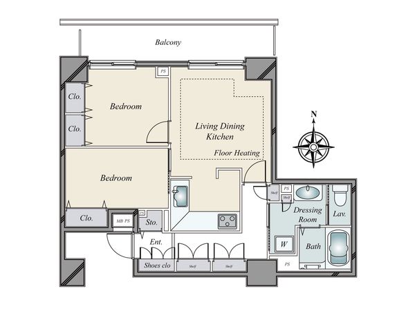
| 間取り | 2LDK |
| 専有面積 | 57.99㎡(約17.54坪) |
| 築年月 | 2007年05月築 |
| 階数 / 階建 | 4階 / 地上29階 地下1階建 |
| 向き | 北 |
この物件情報を共有する
毎月のお支払い目安
返済計画を入力すると毎月のお支払い目安を表示できます
- ローン352,293円
- 管理費+修繕積立金31,260円
- その他費用0円
おすすめポイント
設備
- 床暖房
- 食器洗乾燥機
■ 3路線4駅利用可能なアクセス ━━━━━━━━━━━━━━━・・・・・ ○ 東京メトロ丸ノ内線「四谷三丁目」駅 徒歩4分 ○ 東京メトロ丸ノ内線「新宿御苑前」駅 徒歩7分 ○ 都営新宿線「曙橋」駅 徒歩11分 ○ JR中央総武線「国立競技場」駅 徒歩13分 ■ お部屋の特徴(室内リフォーム2025年6月完了)━━━━━━━━━━━━━━━・・・・・ ○ 地上29階建て・地下1階付/4階部分 ○ 北の開口部につき採光・風通し良好 ○ 専有面積57.99平米/2LDK ○ 1418サイズのゆったりとしたユニットバス ○ 各洋室にクローゼット有 ○ 温水式床暖房有(リビングダイニング部分) ○ バルコニーの奥行約1400mm ○ 充実したキッチンの設備 ・食器洗浄乾燥機 ・ディスポーザー ・3口コンロ ■ 室内リフォーム完了済(2025年6月完了)━━━━━━━━━━━━━━━・・・・・ ・システムキッチン ・ユニットバス ・洗面化粧台 ・トイレ ・建具 ・クロス 貼替 ・フローリング 貼替 ・クリーニング 他 ■ マンションの特徴 ━━━━━━━━━━━━━━━・・・・・ ○ 総戸数299戸の大規模タワーレジデンス ○ 2007年5月築 ○ 現地管理人週7日勤務 ○ コンシェルジュサービス有 ○ スカイゲートラウンジ、ゲストルーム、キッズルーム、コミュニティルームなど 充実した共用設備 ○ 宅配ボックス有 ○ 24時間ゴミ出し可能 ○ ホテルライクな内廊下設計 ○ ペット飼育可(細則有) ○ 充実したセキュリティシステム ・24時間有人管理体制(管理事務室・防災センター) ・24時間セキュリティシステム(ALSOK) ・TVモニター付きインターフォン ・ダブルオートロック(エントランス、EVホール) ・防犯カメラ(エントランスホール、エレベーター内等) ・玄関・窓防犯センサー※一部住戸を除く
リノベーション&リフォーム情報
台所(キッチン)交換 | バスルーム交換 |
トイレ交換 | 洗面化粧台交換 |
床貼り替え | 扉交換 |
水回り(キッチン、浴室、トイレ、洗面所)(2025年6月)
内装(床、建具)(2025年6月)
物件情報
| 所在地 | GoogleMaps |
| 価格 | 12,480万円 |
| 交通 | |
| 管理費等 | 19,370円 |
| 修繕積立金 | 11,890円 |
| その他費用 | - |
| 間取り | 2LDK |
| 専有面積 | 57.99㎡(約17.54坪) |
| 築年月 | 2007年05月築 |
| 階数 / 階建 | 4階 / 地上29階 地下1階建 |
| 向き | 北 |
| バルコニー | 9.24㎡ |
| 現況 | 空家 |
| 駐車場 | 空き無 |
| 建物構造 | 鉄筋コンクリート造 |
| 総戸数 | 299戸 |
| 管理会社 | (株)合人社計画研究所 |
| 管理形態 | 管理会社に全部委託 |
| 管理員の 勤務形態 | 日勤 |
| 土地権利 | 所有権 |
| 分譲会社 | (株)大京・双日(株) (新築分譲時における売主) |
| 施工会社 | 安藤・東亜建設工事共同企業体 |
| 設計会社 | 安藤・設計工房設計企業体 |
| 備考 | - |
| 引渡時期 | 相談 |
| 取引態様 | 仲介 |
| 更新日 | 2025年11月10日 |
| 次回更新予定 | 2025年11月24日 |
| 物件番号 | F9AAGA36 |
この物件のことを
AIに聞いてみませんか?
最新のAI技術を活用した相談サービスです。
お客様一人ひとりのニーズに合わせて最適な情報をご提供します。
周辺情報
GoogleMaps
| スーパー | まいばすけっと新宿大京町店 約430m(徒歩6分) |
| その他利便施設1 | 四谷三丁目駅4番出口 約590m(徒歩8分) |
| その他利便施設2 | 東京メトロ丸の内線新宿御苑駅 約330m(徒歩5分) |
| その他利便施設3 | ファミリーマート四谷四丁目店 約160m(徒歩2分) |
| その他利便施設4 | セブンイレブン新宿1丁目新宿通り店 約410m(徒歩6分) |
取扱店舗
三井のリハウス 四谷センター
- 営業時間10:00~18:00
- 定休日毎週火曜日・水曜日
0120-659-434
あなたへのおすすめ
新宿区の物件情報
この物件を見学してみませんか?
この物件についてお問い合わせ
物件・住環境の詳しい情報、購入・ローン相談など、ささいなことでもお気軽にお問い合わせください。三井のリハウス 四谷センター
- 営業時間10:00~18:00
- 定休日毎週火曜日・水曜日
0120-659-434

物件の売却をご検討の方は、 はやめの査定依頼がおすすめです!
買い替えをご検討の方はこちら見学予約
お問い合わせ
0120-659-434
- 営業時間 10:00~18:00
- 定休日 毎週火曜日・水曜日









