札幌市中央区北五条東2丁目
札幌市営東豊線 さっぽろ駅 徒歩5分
3LDK / 91.76㎡
2007年01月築
6,280万円



| 物件種別 | 中古マンション |
| 所在地 | GoogleMaps |
| 交通 | |
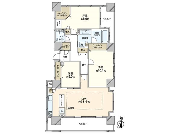
| 間取り | 3LDK |
| 専有面積 | 100.31㎡(約30.34坪) |
| 築年月 | 2009年10月築 |
| 階数 / 階建 | 7階 / 地上15階 地下1階建 |
| 向き | 南 |
返済計画を入力すると毎月のお支払い目安を表示できます
■ライオンズ札幌クロスタウンの特徴 ━━・・・・・ ○ 地下鉄東豊線「さっぽろ」駅 徒歩8分 ○JR函館本線「札幌」駅 徒歩10分 ○ 日当たり・眺望・通風に優れた南東角住戸の3LDK ○ 室内を広々とご活用いただける専有面積:100.31平米(約30.34坪) 〇 ランニングコストを抑えられる都市ガスセントラルシステムFact採用 〇 生ごみを捨てる手間が省けるディスポーザー 〇 ビルトイン食器洗浄乾燥機 〇 美容と健康に効果的なミストサウナ付浴室暖房乾燥機 ○セキュリティに優れたクワッドロックシステム 〇 テレビモニター付インターホン 〇 ゴミ置き場は24時間ゴミ出し可能 〇 宅配ボックス 〇 インターネット利用可能 〇 地下にトランクルームあり 〇 ペット飼育可(細則有)
| 所在地 | GoogleMaps |
| 価格 | 6,280万円 |
| 交通 | |
| 管理費等 | 9,670円 |
| 修繕積立金 | 19,560円 |
| その他費用 | - |
| 間取り | 3LDK |
| 専有面積 | 100.31㎡(約30.34坪) |
| 築年月 | 2009年10月築 |
| 階数 / 階建 | 7階 / 地上15階 地下1階建 |
| 向き | 南 |
| バルコニー | 21.56㎡ |
| 現況 | 空家 |
| 駐車場 | 敷地内有 (賃貸) 空き:4台有り 月額 11,500円〜17,000円 (確認日:西暦2025年08月29日現在) |
| 建物構造 | 鉄筋コンクリート造 |
| 総戸数 | 121戸 |
| 管理会社 | (株)大京アステージ |
| 管理形態 | 管理会社に全部委託 |
| 管理員の 勤務形態 | 日勤 |
| 土地権利 | 所有権 |
| 分譲会社 | (株)大京 (新築分譲時における売主) |
| 施工会社 | 東海興業(株) |
| 設計会社 | (株)企画設計事務所オルト |
| 備考 | - |
| 引渡時期 | 即時 |
| 取引態様 | 仲介 |
| 更新日 | 2025年12月29日 |
| 次回更新予定 | 2026年01月12日 |
| 物件番号 | F9BAUA04 |
最新のAI技術を活用した相談サービスです。
お客様一人ひとりのニーズに合わせて最適な情報をご提供します。
リハウスAIチャットの詳しい説明はこちら
GoogleMaps
| スーパー | まいばすけっと北6条東5丁目店 約340m(徒歩5分) |
| 公園 | 永山記念公園 約580m(徒歩8分) |
| 病院 | JR札幌病院 約550m(徒歩7分) |
| 小学校 | 中央小学校 約1110m(徒歩14分) |
| 中学校 | 中央中学校 約240m(徒歩3分) |
| その他利便施設1 | 地下鉄東豊線「さっぽろ」駅 約600m(徒歩8分) |
| その他利便施設2 | JR札幌東コンコース南口 約730m(徒歩10分) |
| その他利便施設3 | サツドラ北8条店 約530m(徒歩7分) |
| その他利便施設4 | セブンイレブン札幌北5条東2丁目店 約280m(徒歩4分) |
| その他利便施設5 | 札幌中央郵便局 約470m(徒歩6分) |
三井不動産リアルティ札幌株式会社
北海道知事石狩(8)第5813号
0120-321-551
0120-321-551
物件の売却をご検討の方は、 はやめの査定依頼がおすすめです!
買い替えをご検討の方はこちら0120-321-551

