名古屋市中区松原2丁目
名古屋市鶴舞線 大須観音駅 徒歩9分
3LDK / 74.89㎡
1997年03月築
2,880万円



| 物件種別 | 中古マンション |
| 所在地 | GoogleMaps |
| 交通 | |
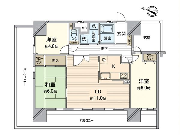
| 間取り | 3LDK |
| 専有面積 | 68.91㎡(約20.84坪) |
| 築年月 | 1998年07月築 |
| 階数 / 階建 | 8階 / 地上14階建 |
| 向き | 西 |
-物件のおすすめポイント- ▼立地 ・名鉄名古屋本線「山王駅」徒歩10分 ・地下鉄鶴舞線「大須観音駅」徒歩13分 ・地下鉄名城線「東別院駅」徒歩15分 ▼お部屋の特徴 ・8階部分角住戸につき眺望良好 ・L型バルコニーでワイドスパン間取り ・対面式キッチン ・浴室に窓あり ▼マンションの特徴 ・ペット飼育可能(細則あり) ・屋根付平面駐車場1台承継可能(月額12000円) ▼周辺環境 ・スーパー、コンビニ、ドラッグストアまで徒歩5分圏内 ■ ご希望の住まい探しをお手伝いします ━━━━━・・・ 物件の詳細・ご相談はお気軽にお問い合わせください。
| 所在地 | GoogleMaps |
| 価格 | 2,880万円 |
| 交通 | |
| 管理費等 | 6,156円 |
| 修繕積立金 | 16,244円 |
| その他費用 | - |
| 間取り | 3LDK |
| 専有面積 | 68.91㎡(約20.84坪) |
| 築年月 | 1998年07月築 |
| 階数 / 階建 | 8階 / 地上14階建 |
| 向き | 西 |
| バルコニー | 28.05㎡ |
| 現況 | 空家 |
| 駐車場 | 敷地内有 (所有権) 空き:1台有り 月額 12,000円 (確認日:西暦2026年03月13日現在) |
| 建物構造 | 鉄骨鉄筋コンクリート造 |
| 総戸数 | 64戸 |
| 管理会社 | 宝コミュニティサービス株式会社 |
| 管理形態 | 管理会社に全部委託 |
| 管理員の 勤務形態 | 巡回 |
| 土地権利 | 所有権 |
| 分譲会社 | 神宮産業株式会社 (新築分譲時における売主) |
| 施工会社 | 大井建設株式会社 |
| 設計会社 | 中日設計株式会社 |
| 備考 | ※2028年12月分より修繕積立金が19,005円に改定予定。 ※専有部分面積にメーターボックス0.78平米含む。 |
| 引渡時期 | 相談 |
| 取引態様 | 仲介 |
| 更新日 | 2026年04月19日 |
| 次回更新予定 | 2026年05月03日 |
| 物件番号 | FA3BDA0C |
最新のAI技術を活用した相談サービスです。
お客様一人ひとりのニーズに合わせて最適な情報をご提供します。
リハウスAIチャットの詳しい説明はこちら
GoogleMaps
| スーパー | ヤマナカ松原店 約320m(徒歩4分) |
| 公園 | 松原公園 約420m(徒歩6分) |
| 小学校 | 松原小学校 約400m(徒歩5分) |
| 中学校 | 伊勢山中学校 約900m(徒歩12分) |
| その他利便施設1 | セブンイレブン名古屋松原3丁目店 約80m(徒歩1分) |
| その他利便施設2 | スギヤマ松原店 約300m(徒歩4分) |
| その他利便施設3 | 名古屋米浜郵便局 約150m(徒歩2分) |
三井不動産リアルティ株式会社
国土交通大臣(15)第777号
0120-35-0031
0120-35-0031
物件の売却をご検討の方は、 はやめの査定依頼がおすすめです!
買い替えをご検討の方はこちら0120-35-0031

