ユニロイヤル徳川園
8,880万円



| 物件種別 | 中古マンション |
| 所在地 | GoogleMaps |
| 交通 | |
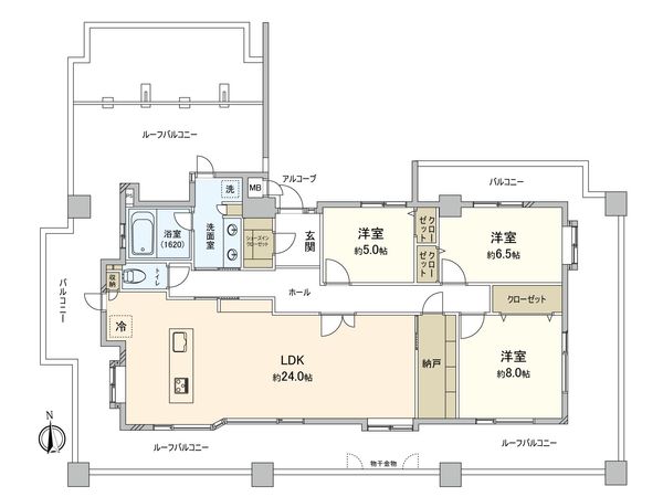
| 間取り | 3LDK |
| 専有面積 | 104.03㎡(約31.46坪) |
| 築年月 | 2000年12月築 |
| 階数 / 階建 | 7階 / 地上7階建 |
| 向き | 南 |
この物件情報を共有する
予約制内覧会を開催します!
| 開催日 | 5月23日(土)11:00 ~ 17:00 5月24日(日)11:00 ~ 17:00 6月6日(土)11:00 ~ 17:00 6月7日(日)11:00 ~ 17:00 6月13日(土)11:00 ~ 17:00 |
|---|
おすすめポイント
設備
- シューズインクローク
- 納戸
- 食器洗乾燥機
■ マンションの特徴 ━━━━━━━━━━━・・・・・ ○ 名鉄瀬戸線「森下」駅 徒歩9分 ○ 徳川園が近い閑静な住宅街 ○ マンションの北側には桜の木があり、春の訪れを感じられます ○ TVモニター付オートロック ○ 宅配ボックスがあるので留守中でも荷物の受け取りが可能です ■ お部屋の特徴 ━━━━━━━━━━━・・・・・ ○ 南向き最上階につき眺望・陽当たり良好です ○ 最上階1フロア1邸のためプライバシーや静粛性が高いです ○ 約24帖の広々としたLDKでゆったりとおくつろぎいただけます ○ 対面式キッチンのためご家族との会話が弾みます ○ シューズインクローゼットや納戸、クローゼット等収納スペース豊富です ○ 洗面台は2台あり、3面鏡裏収納には化粧品や洗面用品類をすっきり整理できます ○ 洗面所のリネン庫はタオルや肌着類などの収納に便利です ○ 浴室は1620サイズでゆったりとした時間をお過ごしいただけます ○ バルコニーからは気持ちのいい風が通り抜けます ○ 平面駐車場利用可能です ■ リフォーム内容(令和7年8月実施) ━━━━━━━━━━━・・・・・ ○ キッチン交換 ○ 洗面化粧台交換 ○ 浴室交換 ○ トイレ交換 ○ クロス貼替 ○ フローリング張替 ○ ハウスクリーニング 等
リノベーション&リフォーム情報
全室クロス/壁紙貼り替え | 台所(キッチン)交換 |
バスルーム交換 | トイレ交換 |
洗面化粧台交換 | 床貼り替え |
水回り(キッチン、浴室、トイレ、洗面所)(2025年8月)
内装(全室クロス、床)(2025年8月)
物件情報
| 所在地 | GoogleMaps |
| 価格 | 8,880万円 |
| 交通 | |
| 管理費等 | 15,600円 |
| 修繕積立金 | 31,420円 |
| その他費用 | 自治会費 3,600円 / 年、ルーフバルコニー使用料 1,000円 / 月 |
| 間取り | 3LDK |
| 専有面積 | 104.03㎡(約31.46坪) |
| 築年月 | 2000年12月築 |
| 階数 / 階建 | 7階 / 地上7階建 |
| 向き | 南 |
| バルコニー | 9.89㎡ |
| ルーフバルコニー | 79.75㎡ |
| 現況 | 空家 |
| 駐車場 | 敷地内有 (賃貸) 空き:1台有り 月額 15,000円〜20,000円 (確認日:西暦2025年08月07日現在) |
| 建物構造 | 鉄筋コンクリート造 |
| 総戸数 | 11戸 |
| 管理会社 | (株)ライフポート西洋 |
| 管理形態 | 管理会社に全部委託 |
| 管理員の 勤務形態 | 巡回 |
| 土地権利 | 所有権 |
| 分譲会社 | (株)ユニホー (新築分譲時における売主) |
| 施工会社 | (株)麦島建設 |
| 設計会社 | (株)日興設計 |
| 備考 | ○駐車場1台承継可能 ○修繕積立金11月分より41,610円に変更予定 |
| 引渡時期 | 相談 |
| 取引態様 | 仲介 |
| 更新日 | 2026年05月15日 |
| 次回更新予定 | 2026年05月29日 |
| 物件番号 | FA7BDA06 |
この物件のことを
AIに聞いてみませんか?
最新のAI技術を活用した相談サービスです。
お客様一人ひとりのニーズに合わせて最適な情報をご提供します。
リハウスAIチャットの詳しい説明はこちら

周辺情報
GoogleMaps
| スーパー | マックスバリュ徳川明倫店 約740m(徒歩10分) |
| 公園 | 徳川街園 約160m(徒歩2分) |
| 病院 | 小児科内科丹羽医院 約210m(徒歩3分) |
| 小学校 | 名古屋市立旭丘小学校 約130m(徒歩2分) |
| 中学校 | 名古屋市立桜丘中学校 約560m(徒歩7分) |
| その他利便施設1 | ファミリーマート徳川町店 約210m(徒歩3分) |
| その他利便施設2 | ドラッグスギヤマ新出来店 約490m(徒歩7分) |
取扱店舗
三井のリハウス 名古屋栄センター
- 営業時間10:00~18:00
- 定休日毎週水曜日
0120-56-1531
あなたへのおすすめ
名古屋市東区の物件情報
この物件を見学してみませんか?
この物件についてお問い合わせ
物件・住環境の詳しい情報、購入・ローン相談など、ささいなことでもお気軽にお問い合わせください。三井のリハウス 名古屋栄センター
- 営業時間10:00~18:00
- 定休日毎週水曜日
0120-56-1531

物件の売却をご検討の方は、 はやめの査定依頼がおすすめです!
買い替えをご検討の方はこちら見学予約
お問い合わせ
0120-56-1531
- 営業時間 10:00~18:00
- 定休日 毎週水曜日



