杉並区高井戸東4丁目
京王電鉄井の頭線 高井戸駅 徒歩11分
3LDK / 88.2㎡
1996年06月築
7,990万円



| 物件種別 | 中古マンション |
| 所在地 | GoogleMaps |
| 交通 | 京王電鉄井の頭線 高井戸駅 徒歩13分 |
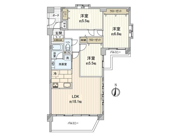
| 間取り | 3LDK |
| 専有面積 | 85.07㎡(約25.73坪) |
| 築年月 | 2000年03月築 |
| 階数 / 階建 | 2階 / 地上3階 地下1階建 |
| 向き | 南 |
返済計画を入力すると毎月のお支払い目安を表示できます
-物件のおすすめポイント- ▼立地 ・京王線「高井戸」駅 徒歩13分 ▼マンションの特徴 ・安心の24時間セキュリティシステム ・快適な暮らしを守るオートロック、宅配ボックス付 ・三菱地所コミュニティ(株)による全部委託管理 ・大切なペットと一緒に暮らせます(細則あり) ▼お部屋の特徴 ・2階部分、南東向き角住戸につき風通しのよい3LDK ・南面バルコニーに面するLDKは広々約18.1帖 ・フローリング仕様で、落ち着いた雰囲気の内装 ・気持ちのよい風が通り抜ける2面バルコニー ▼設備 ・プライベート感のある玄関ポーチ ・料理をしながら会話が楽しめる対面式キッチン ・家事の負担を軽減できる食器洗浄機付 ・雨の日の洗濯にも便利な浴室換気乾燥機 ・トイレには快適な温水洗浄便座 ・すべての居室に収納あり ▼周辺環境 ・第一種低層住居専用地域に位置するマンションです ・コンビニ「セブンイレブン高井戸東五日市街道店」 徒歩1分 ・業務用スーパー「A−プライス 高井戸店」 徒歩2分 ・スーパー「サミットストア高井戸東店」 徒歩6分 ・ドラッグストア「スギ薬局高井戸店」 徒歩5分 ■ ご希望の住まい探しをお手伝いします ━━━━━・・・ 物件の詳細・ご相談はお気軽にお問い合わせください。
| 所在地 | GoogleMaps |
| 価格 | 7,990万円 |
| 交通 | 京王電鉄井の頭線 高井戸駅 徒歩13分 |
| 管理費等 | 12,200円 |
| 修繕積立金 | 31,300円 |
| その他費用 | - |
| 間取り | 3LDK |
| 専有面積 | 85.07㎡(約25.73坪) |
| 築年月 | 2000年03月築 |
| 階数 / 階建 | 2階 / 地上3階 地下1階建 |
| 向き | 南 |
| バルコニー | 13.97㎡ |
| 現況 | 空家 |
| 駐車場 | - |
| 建物構造 | 鉄筋コンクリート造 |
| 総戸数 | 34戸 |
| 管理会社 | 三菱地所コミュニティ(株) |
| 管理形態 | 管理会社に全部委託 |
| 管理員の 勤務形態 | 日勤 |
| 土地権利 | 所有権 |
| 分譲会社 | (株)ライフアップ建設 (新築分譲時における売主) |
| 施工会社 | (株)森組東京本店 |
| 設計会社 | サン・デザイン |
| 備考 | - |
| 引渡時期 | 相談 |
| 取引態様 | 仲介 |
| 更新日 | 2025年12月22日 |
| 次回更新予定 | 2026年01月05日 |
| 物件番号 | FAIAGA37 |
最新のAI技術を活用した相談サービスです。
お客様一人ひとりのニーズに合わせて最適な情報をご提供します。
リハウスAIチャットの詳しい説明はこちら
GoogleMaps
| スーパー | Aプライス高井戸店 約160m(徒歩2分) |
| スーパー | サミットストア高井戸東店 約430m(徒歩6分) |
| スーパー | ローソン杉並成田西三丁目店 約240m(徒歩3分) |
| 公園 | 善福寺川緑地公園 約680m(徒歩9分) |
| 小学校 | 杉並区立高井戸小学校 約890m(徒歩12分) |
| 中学校 | 杉並区立松渓中学校 約900m(徒歩12分) |
| その他利便施設1 | セブンイレブン高井戸東五日市街道店 約80m(徒歩1分) |
| その他利便施設2 | スギ薬局高井戸店 約390m(徒歩5分) |
| その他利便施設3 | 京王リトナード高井戸 約990m(徒歩13分) |
| その他利便施設4 | 杉並高井戸東郵便局 約200m(徒歩3分) |
0120-171-173
0120-171-173
物件の売却をご検討の方は、 はやめの査定依頼がおすすめです!
買い替えをご検討の方はこちら0120-171-173

