レック北梅田
5,298万円



| 物件種別 | 中古マンション |
| 所在地 | GoogleMaps |
| 交通 | |
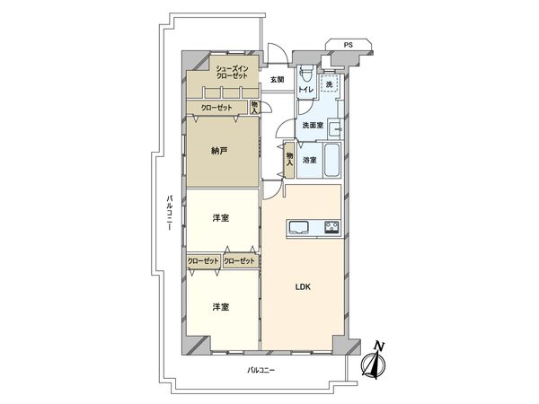
| 間取り | 2SLDK ※S・サービススペースは納戸です |
| 専有面積 | 70.8㎡(約21.41坪) |
| 築年月 | 1982年02月築 |
| 階数 / 階建 | 8階 / 地上14階建 |
| 向き | 南東 |
この物件情報を共有する
予約制内覧会を開催します!
| 開催日 | 12月20日(土)11:00 ~ 17:00 12月21日(日)11:00 ~ 17:00 |
|---|
毎月のお支払い目安
返済計画を入力すると毎月のお支払い目安を表示できます
- ローン149,555円
- 管理費+修繕積立金22,650円
- その他費用0円
おすすめポイント
設備
- シューズインクローク
- 浴室乾燥機
- 食器洗乾燥機
特徴
- 全居室フローリング
■ おすすめポイント ━━━━━━━━━━━━━━━・・・・・ ○ 複数沿線利用可能 ・大阪メトロ谷町線「中崎町」駅 徒歩5分 ・大阪メトロ谷町線・阪急千里線「天神橋筋六丁目」駅 徒歩9分 ○ 2026年1月末リフォーム完成予定 ○ 専有面積70.8平米、2SLDKの間取り ○ 3方角部屋につき陽当たり・通風良好 ○ 全居室に収納がございます ○ 対面式システムキッチン(食洗機・浄水器付) ○ 浴室乾燥機付ユニットバス ○ シャワー付洗面化粧台 ○ 温水洗浄便座付トイレ ○ シューズインクローゼットがございます ○ 全室エアコン設置可能 ○ TVモニターインターホン ■ 2026年1月リフォーム内容 ━━━━━━━━━━・・・・・ ○ システムキッチン新調 ○ ユニットバス新調 ○ 洗面化粧台新調 ○ トイレ新調 ○ 全室フローリング張替(LDK・洋室・廊下) ○ 全室クロス張替(壁・天井) ○ 建具新調 ○ 間取り変更 ○ ハウスクリーニング ■「三井のリハウス 梅田センター」が売主様から直接売却依頼を頂いている物件です。 物件の詳細は担当:羽間(ハザマ)までお問合せくださいませ。
リノベーション&リフォーム情報(予定含む)
全室クロス/壁紙貼り替え | 台所(キッチン)交換 |
バスルーム交換 | トイレ交換 |
洗面化粧台交換 | 床貼り替え |
給湯器交換 | 扉交換 |
水回り(キッチン、浴室、トイレ、洗面所、給湯器)(2026年1月)
内装(全室クロス、床、建具、間取り変更、ハウスクリーニング)(2026年1月)
物件情報
| 所在地 | GoogleMaps |
| 価格 | 5,298万円 |
| 交通 | |
| 管理費等 | 14,160円 |
| 修繕積立金 | 8,490円 |
| その他費用 | - |
| 間取り | 2SLDK ※S・サービススペースは納戸です |
| 専有面積 | 70.8㎡(約21.41坪) |
| 築年月 | 1982年02月築 |
| 階数 / 階建 | 8階 / 地上14階建 |
| 向き | 南東 |
| バルコニー | 28.75㎡ |
| 現況 | 空家 |
| 駐車場 | 空き無 |
| 建物構造 | 鉄骨鉄筋コンクリート造 |
| 総戸数 | 123戸 |
| 管理会社 | (株)長谷工コミュニティ |
| 管理形態 | 管理会社に全部委託 |
| 管理員の 勤務形態 | 日勤 |
| 土地権利 | 所有権 |
| 分譲会社 | (株)藤倉レック (新築分譲時における売主) |
| 施工会社 | (株)長谷川工務店 |
| 設計会社 | (株)長谷川工務店 |
| 備考 | ※完成前のご内覧も可能です。詳細は担当者までお問い合わせください。 |
| 引渡時期 | 2026年02月上旬以降 |
| 取引態様 | 仲介 |
| 更新日 | 2025年12月11日 |
| 次回更新予定 | 2025年12月25日 |
| 物件番号 | FBGAGAF3 |
この物件のことを
AIに聞いてみませんか?
最新のAI技術を活用した相談サービスです。
お客様一人ひとりのニーズに合わせて最適な情報をご提供します。
リハウスAIチャットの詳しい説明はこちら

周辺情報
GoogleMaps
| スーパー | イオンフードスタイル中崎町店 約300m(徒歩4分) |
| 公園 | 豊崎西公園 約710m(徒歩9分) |
| 小学校 | 大阪市立扇町小学校 約740m(徒歩10分) |
| 中学校 | 大阪市立天満中学校 約980m(徒歩13分) |
| その他利便施設1 | セブンイレブン大阪本庄西1丁目店 約170m(徒歩3分) |
| その他利便施設2 | 大阪中崎郵便局 約150m(徒歩2分) |
取扱店舗
三井のリハウス 梅田センター
- 営業時間10:00~18:00
- 定休日毎週水曜日
0120-3815-31
あなたへのおすすめ
同じマンションの売買物件情報
大阪市北区の物件情報
この物件を見学してみませんか?
この物件についてお問い合わせ
物件・住環境の詳しい情報、購入・ローン相談など、ささいなことでもお気軽にお問い合わせください。三井のリハウス 梅田センター
- 営業時間10:00~18:00
- 定休日毎週水曜日
0120-3815-31

物件の売却をご検討の方は、 はやめの査定依頼がおすすめです!
買い替えをご検討の方はこちら見学予約
お問い合わせ
0120-3815-31
- 営業時間 10:00~18:00
- 定休日 毎週水曜日










