ギャラリーコート塚本
4,598万円



| 物件種別 | 中古マンション |
| 所在地 | GoogleMaps |
| 交通 | 東海道本線(米原~神戸) 塚本駅 徒歩6分 |
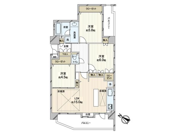
| 間取り | 3LDK |
| 専有面積 | 74.32㎡(約22.48坪) |
| 築年月 | 2002年03月築 |
| 階数 / 階建 | 5階 / 地上7階建 |
| 向き | 南西 |
この物件情報を共有する
予約制内覧会を開催します!
| 開催日 | 1月31日(土)11:00 ~ 17:00 2月1日(日)11:00 ~ 17:00 2月7日(土)11:00 ~ 17:00 2月8日(日)11:00 ~ 17:00 2月14日(土)11:00 ~ 17:00 |
|---|
毎月のお支払い目安
返済計画を入力すると毎月のお支払い目安を表示できます
- ローン129,795円
- 管理費+修繕積立金21,960円
- その他費用300円
おすすめポイント
設備
- 床暖房
- オートロック
特徴
- 全居室フローリング
■ おすすめポイント ━━━━━━━━━━━━━━━・・・・・ ○ JR東海道本線「塚本」駅 徒歩6分 ○ 2025年12月中旬リフォーム完成予定 ○ 専有面積74.32平米、3LDKの間取り ○ 5階部分につき眺望良好 ○ 南西向きバルコニーにつき陽当たり良好 ○ 広々とした約15.0帖のLDK ○ 全居室に収納がございます ○ 食洗機付システムキッチン ○ 浴室乾燥機付ユニットバス ○ シャワー付洗面化粧台 ○ 温水洗浄便座付トイレ ○ オートロック・宅配ボックス有 ■ 令和7年12月リフォーム内容 ━━━━━━━━━━・・・・・ ○ キッチン・浴室水栓交換 ○ 全室フローリング張替(LDK・洋室・廊下) ○ 全室クロス張替(壁・天井) ○ 建具一部交換 ○ 洗濯防水パン・洗濯用水栓交換 ○ 巾木交換 ○ スイッチコンセント交換 ○ ハウスクリーニング
リノベーション&リフォーム情報
全室クロス/壁紙貼り替え | 床貼り替え |
内装(全室クロス、床、キッチン・浴室水栓交換、建具一部交換)(2025年12月)
物件情報
| 所在地 | GoogleMaps |
| 価格 | 4,598万円 |
| 交通 | 東海道本線(米原~神戸) 塚本駅 徒歩6分 |
| 管理費等 | 7,100円 |
| 修繕積立金 | 14,860円 |
| その他費用 | 自治会費 300円 / 月 |
| 間取り | 3LDK |
| 専有面積 | 74.32㎡(約22.48坪) |
| 築年月 | 2002年03月築 |
| 階数 / 階建 | 5階 / 地上7階建 |
| 向き | 南西 |
| バルコニー | 14.91㎡ |
| 現況 | 空家 |
| 駐車場 | 空き無 |
| 建物構造 | 鉄筋コンクリート造 |
| 総戸数 | 54戸 |
| 管理会社 | 日本住宅管理(株) |
| 管理形態 | 管理会社に全部委託 |
| 管理員の 勤務形態 | 日勤 |
| 土地権利 | 所有権 |
| 分譲会社 | 日立造船不動産(株) (新築分譲時における売主) |
| 施工会社 | (株)大林組 |
| 設計会社 | (株)アスペック建築設計事務所 |
| 備考 | - |
| 引渡時期 | 相談 |
| 取引態様 | 仲介 |
| 更新日 | 2026年01月27日 |
| 次回更新予定 | 2026年02月10日 |
| 物件番号 | FBGATAAC |
この物件のことを
AIに聞いてみませんか?
最新のAI技術を活用した相談サービスです。
お客様一人ひとりのニーズに合わせて最適な情報をご提供します。
リハウスAIチャットの詳しい説明はこちら

周辺情報
GoogleMaps
| スーパー | 阪急オアシス塚本店 約400m(徒歩5分) |
| 公園 | 塚本公園 約150m(徒歩2分) |
| その他利便施設1 | セブンイレブン大阪塚本六丁目店 約170m(徒歩3分) |
取扱店舗
三井のリハウス 梅田センター
- 営業時間10:00~18:00
- 定休日毎週水曜日
0120-3815-31
あなたへのおすすめ
大阪市淀川区の物件情報
この物件を見学してみませんか?
この物件についてお問い合わせ
物件・住環境の詳しい情報、購入・ローン相談など、ささいなことでもお気軽にお問い合わせください。三井のリハウス 梅田センター
- 営業時間10:00~18:00
- 定休日毎週水曜日
0120-3815-31

物件の売却をご検討の方は、 はやめの査定依頼がおすすめです!
買い替えをご検討の方はこちら見学予約
お問い合わせ
0120-3815-31
- 営業時間 10:00~18:00
- 定休日 毎週水曜日









