中央区新川2丁目
京葉線 八丁堀駅 徒歩1分
1LDK / 41.46㎡
2017年09月築
13,800万円



| 物件種別 | 中古マンション |
| 所在地 | GoogleMaps |
| 交通 | |
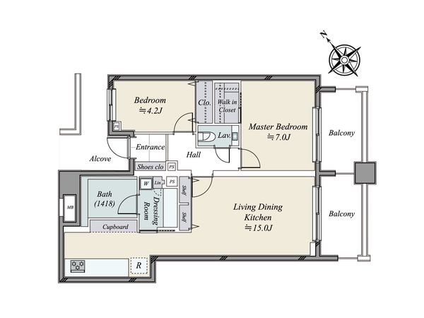
| 間取り | 2LDK |
| 専有面積 | 63.25㎡(約19.13坪) |
| 築年月 | 2004年02月築 |
| 階数 / 階建 | 12階 / 地上15階 地下1階建 |
| 向き | 南東 |
-物件のおすすめポイント- ▼立地 ・JR京葉線「八丁堀」駅徒歩3分 ・東京メトロ日比谷線「八丁堀」6分 ・東京メトロ日比谷線・東西線「茅場町」駅徒歩9分 ▼マンションの特徴 ・2駅3路線利用可能な好立地 ・宅配ボックスあり ▼お部屋の特徴 ・専有面積63.25平米 2LDKの間取 ・南東向き住戸につき陽当り良好 ・約15帖の広々としたLDK ・ウォークインクローゼット等収納充実 ・1418サイズの浴室 ・床暖房あり(LD) ▼リフォーム内容(2026年3月完了) ・システムキッチン交換 ・ユニットバス交換 ・洗面化粧台交換 ・トイレ交換 ・フローリング・クロス張替 等 ■ ご希望の住まい探しをお手伝いします ━━━━━・・・ 物件の詳細・ご相談はお気軽にお問い合わせください。
| 所在地 | GoogleMaps |
| 価格 | 13,800万円 |
| 交通 | |
| 管理費等 | 14,500円 |
| 修繕積立金 | 13,410円 |
| その他費用 | - |
| 間取り | 2LDK |
| 専有面積 | 63.25㎡(約19.13坪) |
| 築年月 | 2004年02月築 |
| 階数 / 階建 | 12階 / 地上15階 地下1階建 |
| 向き | 南東 |
| バルコニー | 12.54㎡ |
| 現況 | 空家 |
| 駐車場 | - |
| 建物構造 | 鉄骨鉄筋コンクリート造 |
| 総戸数 | 79戸 |
| 管理会社 | 株式会社モリモトクオリティ |
| 管理形態 | 管理会社に全部委託 |
| 管理員の 勤務形態 | 日勤 |
| 土地権利 | 所有権 |
| 分譲会社 | (株)モリモト (新築分譲時における売主) |
| 施工会社 | 多田建設(株)東京支店 |
| 設計会社 | (株)アルトン設計 |
| 備考 | - |
| 引渡時期 | 相談 |
| 取引態様 | 仲介 |
| 更新日 | 2026年04月24日 |
| 次回更新予定 | 2026年05月08日 |
| 物件番号 | FBHBGA1B |
最新のAI技術を活用した相談サービスです。
お客様一人ひとりのニーズに合わせて最適な情報をご提供します。
リハウスAIチャットの詳しい説明はこちら
GoogleMaps
| スーパー | まいばすけっと新川リバー通り店 約250m(徒歩4分) |
| 公園 | 越前堀児童公園 約210m(徒歩3分) |
| 病院 | 八丁堀かず内科外科クリニック 約260m(徒歩4分) |
| 小学校 | 中央区立明正小学校 約240m(徒歩3分) |
| 中学校 | 中央区立銀座中学校 約1150m(徒歩15分) |
| その他利便施設1 | ローソン新川2丁目店 約40m(徒歩1分) |
| その他利便施設2 | スギ薬局八丁堀店 約450m(徒歩6分) |
| その他利便施設3 | 中央新川二郵便局 約200m(徒歩3分) |
三井不動産リアルティ株式会社
国土交通大臣(15)第777号
0120-377-431
0120-377-431
物件の売却をご検討の方は、 はやめの査定依頼がおすすめです!
買い替えをご検討の方はこちら0120-377-431

