カサグランデミワ
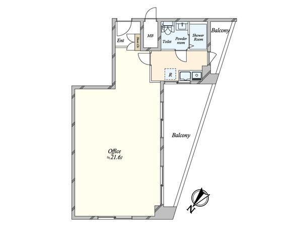
ワンルーム/43.85㎡(約13.26坪)
6,720万円



物件情報
おすすめポイント
取扱店舗
| 物件種別 | 中古マンション |
| 所在地 | GoogleMaps |
| 交通 | 東京メトロ千代田線 乃木坂駅 徒歩5分 |
| 間取り | ワンルーム |
| 専有面積 | 43.85㎡(約13.26坪) |
| 築年月 | 1975年12月築 |
| 階数 / 階建 | 6階 / 地上9階 地下1階建 |
| 向き | 南東 |
| 想定賃料 (年間) | 3,564,000円(満室時想定) |
| 想定利回り | 5.3% |
| 賃貸状況 | - |
| 備考 | ※利回りは、販売価格に対する年間の賃料収入(共益費等を含む)の割合で、公租公課その他当該物件を維持するために必要な費用の控除前のものです。なお、想定賃料・想定利回りは、賃料相場をもとに空室部分の賃料を加え満室時を想定して算出したものです。 ※賃料収入は、将来にわたって確実に得られることを保証するものではありません。 (調査日: 2025年11月13日現在) |
この物件情報を共有する
毎月のお支払い目安
返済計画を入力すると毎月のお支払い目安を表示できます
- ローン189,696円
- 管理費+修繕積立金43,254円
- その他費用4,839円
お支払い目安237,789円
おすすめポイント
-物件のおすすめポイント- ▼立地 ・都営大江戸線・日比谷線「六本木」駅 徒歩4分 ・東京メトロ千代田線「乃木坂」駅 徒歩5分 ▼マンションの特徴 ・六本木アドレス ・南東角部屋につき、日照・通風良好 ・事務所利用可 ・2023年大規模修繕工事実施済み ▼リフォーム内容(2024年5月実施済み) ・ミニキッチン ・シャワーユニット ・トイレ <その他> ・床(OAフロア) ・クロス ・建具 ・バルコニータイル設置 ・エアコン設置(2基) ■ ご希望の住まい探しをお手伝いします ━━━━━・・・ 物件の詳細・ご相談はお気軽にお問い合わせください。
リノベーション&リフォーム情報
台所(キッチン)交換 | バスルーム交換 |
トイレ交換 | 床貼り替え |
扉交換 |
水回り(キッチン、浴室、トイレ)(2024年5月)
内装(床、壁、建具)(2024年5月)
物件情報
| 所在地 | GoogleMaps |
| 価格 | 6,720万円 |
| 交通 | 東京メトロ千代田線 乃木坂駅 徒歩5分 |
| 管理費等 | 23,960円 |
| 修繕積立金 | 19,294円 |
| その他費用 | 排水管更新工事追加費用 1,359円 / 月、水道使用料(基本料金) 1,480円 / 月、給湯使用料(基本料金) 2,000円 / 月 |
| 間取り | ワンルーム |
| 専有面積 | 43.85㎡(約13.26坪) |
| 築年月 | 1975年12月築 |
| 階数 / 階建 | 6階 / 地上9階 地下1階建 |
| 向き | 南東 |
| バルコニー | 8.92㎡ |
| 現況 | 賃貸中 |
| 駐車場 | - |
| 建物構造 | 鉄骨鉄筋コンクリート造 |
| 総戸数 | 72戸 |
| 管理会社 | ホームライフ管理(株) |
| 管理形態 | 管理会社に全部委託 |
| 管理員の 勤務形態 | 日勤 |
| 土地権利 | 所有権 |
| 分譲会社 | 小田急建設(株) (新築分譲時における売主) |
| 施工会社 | 小田急建設(株) |
| 設計会社 | 小田急建設(株) |
| 備考 | ・事務所利用可 ・ペット飼育不可 ・管理会社変更可(変更手数料は賃料の10%税別) ・登記時の司法書士は売主指定です |
| 引渡時期 | 即時 |
| 取引態様 | 仲介 |
| 更新日 | 2025年11月14日 |
| 次回更新予定 | 2025年11月28日 |
| 物件番号 | FBIAGAF4 |
この物件のことを
AIに聞いてみませんか?
最新のAI技術を活用した相談サービスです。
お客様一人ひとりのニーズに合わせて最適な情報をご提供します。
取扱店舗
三井のリハウス 渋谷センター
- 営業時間
- 10:00~18:00
- 定休日
- 毎週水曜日
- 住所
- 東京都渋谷区桜丘町3-4 渋谷サクラステージ SAKURAサイド 4F
三井不動産リアルティ株式会社
国土交通大臣(15)第777号
三井のリハウス 渋谷センター
- 営業時間10:00~18:00
- 定休日毎週水曜日
0120-923-731
あなたへのおすすめ
港区の物件情報
この物件を見学してみませんか?
この物件についてお問い合わせ
物件・住環境の詳しい情報、購入・ローン相談など、ささいなことでもお気軽にお問い合わせください。三井のリハウス 渋谷センター
- 営業時間10:00~18:00
- 定休日毎週水曜日
0120-923-731

物件の売却をご検討の方は、 はやめの査定依頼がおすすめです!
買い替えをご検討の方はこちら見学予約
お問い合わせ
0120-923-731
- 営業時間 10:00~18:00
- 定休日 毎週水曜日









