世田谷区弦巻3丁目
東急田園都市線 桜新町駅 徒歩10分
2SLDK / 97.76㎡
2006年01月築
12,800万円



| 物件種別 | 中古マンション |
| 所在地 | GoogleMaps |
| 交通 | 東急田園都市線 桜新町駅 徒歩9分 |
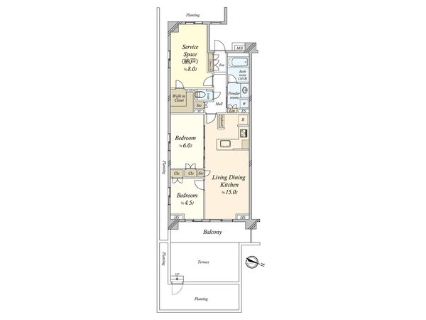
| 間取り | 2SLDK ※S・サービススペースは納戸です |
| 専有面積 | 73.4㎡(約22.2坪) |
| 築年月 | 2019年09月築 |
| 階数 / 階建 | 1階 / 地上6階建 |
| 向き | 東 |
返済計画を入力すると毎月のお支払い目安を表示できます
-物件のおすすめポイント- ▼立地 ・東急田園都市線「桜新町」駅 徒歩9分 ▼マンションの特徴 ・メンテナンスや遮音性に配慮した二重床・二重天井 ・オートロック・防犯カメラなどの豊富なセキュリティシステム ・ペット飼育可(飼育細則あり) ▼お部屋の特徴 ・東・南・西の3方角部屋につき、通風良好 ・開放感あふれる13.32平米のテラス付き ・広々としたLDK約15.0帖 ・ウォークインクローゼット・サービススペース等収納充実 ・来客時に便利なTVモニター付きインターホン ・雨の日の洗濯にも便利な浴室換気乾燥機付 ・寒い日でも足元を温めてくれる床暖房設置(LD部分) ■ ご希望の住まい探しをお手伝いします ━━━━━・・・ 物件の詳細・ご相談はお気軽にお問い合わせください。
| 所在地 | GoogleMaps |
| 価格 | 12,800万円 |
| 交通 | 東急田園都市線 桜新町駅 徒歩9分 |
| 管理費等 | 21,200円 |
| 修繕積立金 | 8,100円 |
| その他費用 | テラス使用料 500円 / 月、インターネット使用料 1,320円 / 月、町内会費 100円 / 月 |
| 間取り | 2SLDK ※S・サービススペースは納戸です |
| 専有面積 | 73.4㎡(約22.2坪) |
| 築年月 | 2019年09月築 |
| 階数 / 階建 | 1階 / 地上6階建 |
| 向き | 東 |
| バルコニー | 8.47㎡ |
| 現況 | 居住中 |
| 駐車場 | - |
| 建物構造 | 鉄筋コンクリート造 |
| 総戸数 | 24戸 |
| 管理会社 | (株)東急コミュニティー |
| 管理形態 | 管理会社に全部委託 |
| 管理員の 勤務形態 | 管理員なし |
| 土地権利 | 所有権 |
| 分譲会社 | (株)オープンハウス・ディベロップメント (新築分譲時における売主) |
| 施工会社 | (株)オープンハウス・アーキテクト |
| 設計会社 | (株)カイ設計 |
| 備考 | テラス面積:約13.32平米 |
| 引渡時期 | 2027年04月上旬以降 |
| 取引態様 | 仲介 |
| 更新日 | 2026年01月09日 |
| 次回更新予定 | 2026年01月23日 |
| 物件番号 | FBIATA9A |
最新のAI技術を活用した相談サービスです。
お客様一人ひとりのニーズに合わせて最適な情報をご提供します。
リハウスAIチャットの詳しい説明はこちら
三井不動産リアルティ株式会社
国土交通大臣(15)第777号
0120-923-731
0120-923-731
物件の売却をご検討の方は、 はやめの査定依頼がおすすめです!
買い替えをご検討の方はこちら0120-923-731

