渋谷区代々木4丁目
小田急電鉄小田原線 参宮橋駅 徒歩1分
1LDK / 46.45㎡
1996年09月築
12,500万円



| 物件種別 | 中古マンション |
| 所在地 | GoogleMaps |
| 交通 | |
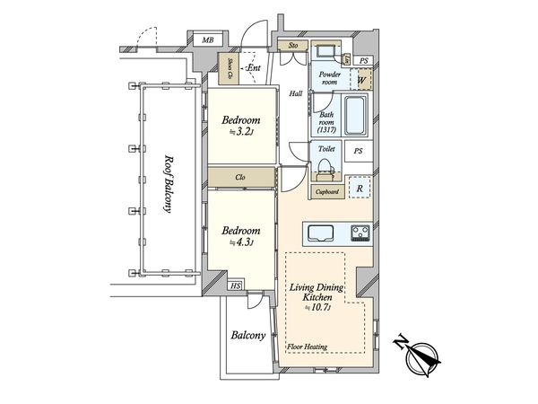
| 間取り | 2LDK |
| 専有面積 | 46.31㎡(約14坪) |
| 築年月 | 2023年08月築 |
| 階数 / 階建 | 5階 / 地上5階 地下1階建 |
| 向き | 南西 |
■ アクセス ━━━━━━━━━━━━━━━・・・・・ ○ 小田急電鉄小田原線「参宮橋」駅 徒歩6分 ○ 京王電鉄京王線 「初台」駅 徒歩7分 ■ オープンレジデンシア代々木参宮橋 ━━━━━━━━━━━━━━━・・・・・ ○ 2023年8月築 ○ 代々木4丁目アドレス、閑静な住宅街 ○ 2駅2路線利用可能 ○ 安心のトリプルセキュリティを採用 ○ 宅配ボックス有 ○ 防犯カメラ ○ ペット飼育可(細則有) ■ おすすめポイント ━━━━━━━━━━━━━━━・・・・・ ○ 最上階のため、日当たり・眺望良好 ○ 南東・南西・北西角住戸 ○ リビング(南東側)からは代々木公園・明治神宮の緑を望む開放的な眺望 ○ 廊下・洗面所・トイレの床は高級感のあるタイル張り ○ 約9.66平米のルーフバルコニー ○ 最上階は隣接住戸のない1フロア2邸設計 静かにお過ごしいただけます ○ 床暖房あり(リビング・ダイニング部分) ○ キッチンには食器洗い乾燥機、浄水器一体型水栓 ○ 浴室には浴室換気乾燥暖房機・ミストサウナ機能有
| 所在地 | GoogleMaps |
| 価格 | 12,500万円 |
| 交通 | |
| 管理費等 | 15,700円 |
| 修繕積立金 | 4,200円 |
| その他費用 | インターネット使用料 1,320円 / 月、町内会費 150円 / 月、ルーフバルコニー使用料 500円 / 月 |
| 間取り | 2LDK |
| 専有面積 | 46.31㎡(約14坪) |
| 築年月 | 2023年08月築 |
| 階数 / 階建 | 5階 / 地上5階 地下1階建 |
| 向き | 南西 |
| バルコニー | 3.88㎡ |
| ルーフバルコニー | 9.66㎡ |
| 現況 | 居住中 |
| 駐車場 | - |
| 建物構造 | 鉄筋コンクリート造 |
| 総戸数 | 20戸 |
| 管理会社 | (株)オープンハウス合人社コミュニティ |
| 管理形態 | 管理会社に全部委託 |
| 管理員の 勤務形態 | 巡回 |
| 土地権利 | 所有権 |
| 分譲会社 | (株)オープンハウス・ディベロップメント (新築分譲時における売主) |
| 施工会社 | (株)大勝 |
| 設計会社 | (株)アートプランニング |
| 備考 | - |
| 引渡時期 | 2026年08月下旬以降 |
| 取引態様 | 仲介 |
| 更新日 | 2026年04月05日 |
| 次回更新予定 | 2026年04月19日 |
| 物件番号 | FBIBCA01 |
最新のAI技術を活用した相談サービスです。
お客様一人ひとりのニーズに合わせて最適な情報をご提供します。
リハウスAIチャットの詳しい説明はこちら
GoogleMaps
| スーパー | まいばすけっと代々木4丁目店 約260m(徒歩4分) |
| スーパー | 成城石井オペラシティ店 約410m(徒歩6分) |
| 公園 | 参宮橋公園 約350m(徒歩5分) |
| 病院 | 初台あらいクリニック 約180m(徒歩3分) |
| 小学校 | 渋谷区立幡代小学校 約840m(徒歩11分) |
| 中学校 | 渋谷区立代々木中学校 約1280m(徒歩16分) |
| その他利便施設1 | ファミリーマート初台交差点前店 約180m(徒歩3分) |
| その他利便施設2 | ローソン初台一丁目店 約290m(徒歩4分) |
| その他利便施設3 | ウエルシア代々木三丁目店 約340m(徒歩5分) |
| その他利便施設4 | 東京オペラシティ郵便局 約440m(徒歩6分) |
三井不動産リアルティ株式会社
国土交通大臣(15)第777号
0120-923-731
0120-923-731
物件の売却をご検討の方は、 はやめの査定依頼がおすすめです!
買い替えをご検討の方はこちら0120-923-731

