フィーノ渋谷
7,980万円



| 物件種別 | 中古マンション |
| 所在地 | GoogleMaps |
| 交通 | 山手線 渋谷駅 徒歩7分 |
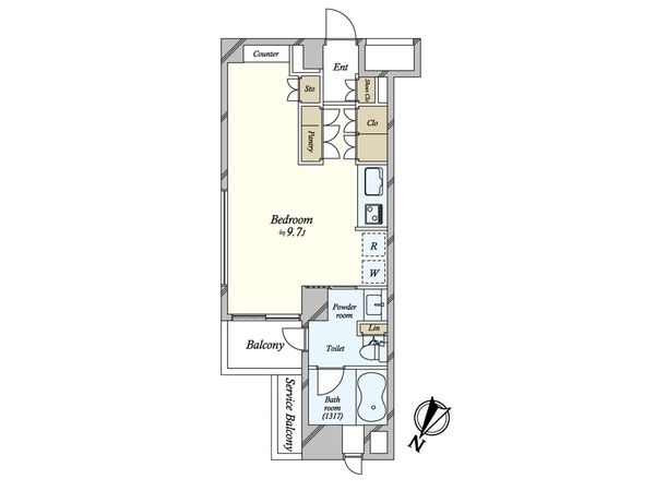
| 間取り | ワンルーム |
| 専有面積 | 30.68㎡(約9.28坪) |
| 築年月 | 2010年05月築 |
| 階数 / 階建 | 2階 / 地上4階 地下1階建 |
| 向き | 北西 |
この物件情報を共有する
おすすめポイント
設備
- 浴室乾燥機
- オートロック
特徴
- 低層住居専用地域
-物件のおすすめポイント- ▼立地 ・JR山手線、埼京線、湘南新宿ライン「渋谷」駅 徒歩7分 ・東急東横線、東京メトロ銀座線「渋谷」駅 徒歩8分 ・京王井の頭線、東京メトロ半蔵門線、副都心線「渋谷」駅 徒歩9分 ・東急田園都市線「渋谷」駅 徒歩10分 ・東急東横線「代官山」駅 徒歩12分 ▼マンションの特徴 ・オートロック付きマンションでセキュリティも安心 ・ペット飼育可(飼育細則あり) ・24時間ゴミ出し可能なマンション ▼お部屋の特徴 ・約9.7帖の洋室は嬉しい二面採光 ・雨の日の洗濯にも便利な浴室換気乾燥機付 ・来客時に便利なTVモニター付きインターホン ▼リフォーム内容(2026年5月完成予定) <水廻り> ・トイレ交換 ・浴室乾燥機交換 ・給湯器交換、その他 <その他> ・フローリング貼替 ・クロス(壁・天井)貼替 ・エアコン交換 ・収納棚一部交換 ・ハウスクリーニング、その他 ■ ご希望の住まい探しをお手伝いします ━━━━━・・・ 物件の詳細・ご相談はお気軽にお問い合わせください。
リノベーション&リフォーム情報(予定含む)
台所(キッチン)交換 | バスルーム交換 |
トイレ交換 | 洗面化粧台交換 |
床貼り替え | 給湯器交換 |
扉交換 |
水回り(キッチン、浴室、トイレ、洗面所、給湯器、浴室乾燥機等)(2026年5月)
内装(床、壁、建具、エアコン、収納棚等)(2026年5月)
物件情報
| 所在地 | GoogleMaps |
| 価格 | 7,980万円 |
| 交通 | 山手線 渋谷駅 徒歩7分 |
| 管理費等 | 9,930円 |
| 修繕積立金 | 8,620円 |
| その他費用 | - |
| 間取り | ワンルーム |
| 専有面積 | 30.68㎡(約9.28坪) |
| 築年月 | 2010年05月築 |
| 階数 / 階建 | 2階 / 地上4階 地下1階建 |
| 向き | 北西 |
| バルコニー | 2.48㎡ |
| 現況 | 空家 |
| 駐車場 | 空き無 |
| 建物構造 | 鉄筋コンクリート造 |
| 総戸数 | 44戸 |
| 管理会社 | 大和ライフリンク(株) |
| 管理形態 | 管理会社に全部委託 |
| 管理員の 勤務形態 | 日勤 |
| 土地権利 | 所有権 |
| 分譲会社 | (株)マリモ (新築分譲時における売主) |
| 施工会社 | 醍醐建設(株) |
| 設計会社 | (株)空間システム研究所 |
| 備考 | - |
| 引渡時期 | 相談 |
| 取引態様 | 仲介 |
| 更新日 | 2026年04月18日 |
| 次回更新予定 | 2026年05月02日 |
| 物件番号 | FBIBTA3D |
この物件のことを
AIに聞いてみませんか?
最新のAI技術を活用した相談サービスです。
お客様一人ひとりのニーズに合わせて最適な情報をご提供します。
リハウスAIチャットの詳しい説明はこちら

取扱店舗
- 営業時間
- 10:00~18:00
- 定休日
- 毎週水曜日
- 住所
- 東京都渋谷区桜丘町3-4 渋谷サクラステージ SAKURAサイド 4F
三井不動産リアルティ株式会社
国土交通大臣(15)第777号
三井のリハウス 渋谷センター
- 営業時間10:00~18:00
- 定休日毎週水曜日
0120-923-731
あなたへのおすすめ
渋谷区の物件情報
この物件を見学してみませんか?
この物件についてお問い合わせ
物件・住環境の詳しい情報、購入・ローン相談など、ささいなことでもお気軽にお問い合わせください。三井のリハウス 渋谷センター
- 営業時間10:00~18:00
- 定休日毎週水曜日
0120-923-731

物件の売却をご検討の方は、 はやめの査定依頼がおすすめです!
買い替えをご検討の方はこちら見学予約
お問い合わせ
0120-923-731
- 営業時間 10:00~18:00
- 定休日 毎週水曜日









