江東区豊洲3丁目
東京メトロ有楽町線 豊洲駅 徒歩6分
2LDK / 62.55㎡
2008年10月築
12,980万円



| 物件種別 | 中古マンション |
| 所在地 | GoogleMaps |
| 交通 | |
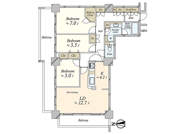
| 間取り | 3LDK |
| 専有面積 | 86.17㎡(約26.06坪) |
| 築年月 | 2000年11月築 |
| 階数 / 階建 | 7階 / 地上36階 地下1階建 |
| 向き | 北西 |
返済計画を入力すると毎月のお支払い目安を表示できます
-物件のおすすめポイント- ▼立地 ・東京メトロ有楽町線「豊洲駅」徒歩13分 ・JR京葉線「越中島駅」徒歩16分 ▼マンションの特徴 ・東急不動産(株)旧分譲マンション ・ホテルライクな内廊下設計 ・24時間有人管理体制 ・ペット飼育可能(細則有) ・24時間ゴミ出し可能 ▼お部屋の特徴 ・専有面積86.17平米、3LDK+WICの間取 ・7階部分、北・西角住戸につき眺望・日照良好 ・1418サイズのユニットバス ・約4.2帖のキッチン(ディスポーザー) ・豊富な収納 -各洋室収納 -玄関収納 -約7.0帖の洋室にウォークインクローゼット -廊下収納 ▼リフォーム内容(2025年8月完了) ・システムキッチン/ガスコンロ/レンジフード/食器洗浄機交換 ・給湯器交換 ・トイレ/ウォシュレット交換 ・ユニットバス/洗面台/防水パン交換 ・建具交換 ・床暖房交換 ・壁/天井クロス/フローリング/洗面室床/トイレ床張替 ・ダウンライト交換新設
| 所在地 | GoogleMaps |
| 価格 | 12,980万円 |
| 交通 | |
| 管理費等 | 15,400円 |
| 修繕積立金 | 19,130円 |
| その他費用 | - |
| 間取り | 3LDK |
| 専有面積 | 86.17㎡(約26.06坪) |
| 築年月 | 2000年11月築 |
| 階数 / 階建 | 7階 / 地上36階 地下1階建 |
| 向き | 北西 |
| バルコニー | 25.27㎡ |
| 現況 | 空家 |
| 駐車場 | - |
| 建物構造 | 鉄筋コンクリート造 |
| 総戸数 | 249戸 |
| 管理会社 | (株)東急コミュニティー |
| 管理形態 | 管理会社に全部委託 |
| 管理員の 勤務形態 | 日勤 |
| 土地権利 | 所有権 |
| 分譲会社 | 東急不動産(株)、新日本製鐵(株) (新築分譲時における売主) |
| 施工会社 | 戸田建設(株) |
| 設計会社 | 戸田建設(株) |
| 備考 | - |
| 引渡時期 | 即時 |
| 取引態様 | 仲介 |
| 更新日 | 2026年01月23日 |
| 次回更新予定 | 2026年02月06日 |
| 物件番号 | FBPAGA55 |
最新のAI技術を活用した相談サービスです。
お客様一人ひとりのニーズに合わせて最適な情報をご提供します。
リハウスAIチャットの詳しい説明はこちら
GoogleMaps
| スーパー | まいばすけっと豊洲1丁目店 約520m(徒歩7分) |
| 公園 | 豊洲一丁目公園 約230m(徒歩3分) |
| 小学校 | 江東区立豊洲北小学校 約930m(徒歩12分) |
| その他利便施設1 | 豊洲駅(東京メトロ有楽町線) 約1020m(徒歩13分) |
| その他利便施設2 | 越中島駅(JR京葉線) 約1280m(徒歩16分) |
| その他利便施設3 | 芝浦工業大学 豊洲キャンパス 約370m(徒歩5分) |
| その他利便施設4 | アーバンドックららぽーと豊洲 約1030m(徒歩13分) |
三井不動産リアルティ株式会社
国土交通大臣(15)第777号
0120-924-631
0120-924-631
物件の売却をご検討の方は、 はやめの査定依頼がおすすめです!
買い替えをご検討の方はこちら0120-924-631

