江東区有明1丁目
ゆりかもめ 有明テニスの森駅 徒歩5分
3LDK / 80.48㎡
2008年12月築
18,800万円



| 物件種別 | 中古マンション |
| 所在地 | GoogleMaps |
| 交通 | |
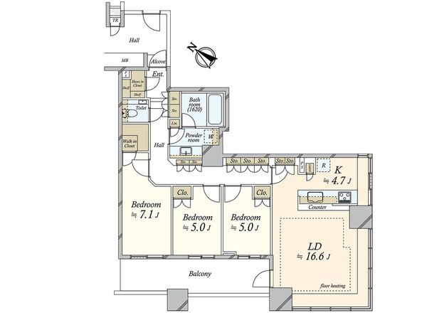
| 間取り | 3LDK |
| 専有面積 | 92.76㎡(約28.05坪) |
| 築年月 | 2008年12月築 |
| 階数 / 階建 | 7階 / 地上33階 地下1階建 |
| 向き | 南東 |
返済計画を入力すると毎月のお支払い目安を表示できます
-物件のおすすめポイント- ▼立地 ・ゆりかもめ 有明テニスの森駅 徒歩5分 ・東京臨海高速鉄道 国際展示場駅 徒歩8分 ▼マンションの特徴 ・平成20年築、総戸数1085戸の大規模マンション ・耐震構造採用の33階建タワーマンション ・不在時に荷物を受け取ることができる宅配ボックス ・24時間有人管理体制 ・ホテルライクなコンシェルジュサービス ・24時間ゴミ出し可能(各階ゴミ置き場有) ・ ペット飼育可能(細則有) ▼共用施設(一部施設・サービス有料) ・THE BAR(33階) ・THE POOL(33階) ・THE SPA(33階) ・THE GYM(33階) ・THE THERAPY(33階) ・THE TERRACE(33階) ・OWNERS SUITE(33階) ▼お部屋の特徴 ・7階部分、南東・南西向き、角住戸 ・専有面積92.76平米、3LDK+WIC+SICの間取 ・トランクルーム面積0.31平米(専有面積に含みます) ▼設備 ・約16.6帖の広々としたリビングダイニング(床暖房) ・1620サイズのユニットバス ・豊富な収納 -シューズインクローゼット -各洋室収納 -洋室約7.1帖にはウォークインクローゼット -廊下収納 -洗面室のリネン庫 -リビング収納 -キッチンのパントリー ■ご希望の住まい探しをお手伝いします ━━━━━ ・・・ 物件の詳細・ご相談はお気軽にお問い合わせください。
| 所在地 | GoogleMaps |
| 価格 | 18,800万円 |
| 交通 | |
| 管理費等 | 29,000円 |
| 修繕積立金 | 28,190円 |
| その他費用 | インターネット 1,100円 / 月 |
| 間取り | 3LDK |
| 専有面積 | 92.76㎡(約28.05坪) |
| 築年月 | 2008年12月築 |
| 階数 / 階建 | 7階 / 地上33階 地下1階建 |
| 向き | 南東 |
| バルコニー | 12.96㎡ |
| 現況 | 空家 |
| 駐車場 | - |
| 建物構造 | 鉄筋コンクリート造 |
| 総戸数 | 1085戸 |
| 管理会社 | (株)東京建物アメニティサポート |
| 管理形態 | 管理会社に全部委託 |
| 管理員の 勤務形態 | 日勤 |
| 土地権利 | 所有権 |
| 分譲会社 | 東京建物(株)、伊藤忠都市開発(株) (新築分譲時における売主) |
| 施工会社 | 三井住友建設(株) |
| 設計会社 | 三井住友建設(株) |
| 備考 | - |
| 引渡時期 | 相談 |
| 取引態様 | 仲介 |
| 更新日 | 2026年02月05日 |
| 次回更新予定 | 2026年02月19日 |
| 物件番号 | FBPAUA07 |
最新のAI技術を活用した相談サービスです。
お客様一人ひとりのニーズに合わせて最適な情報をご提供します。
リハウスAIチャットの詳しい説明はこちら
GoogleMaps
| スーパー | スーパー文化堂有明店 約220m(徒歩3分) |
| 公園 | 有明テニスの森公園 約200m(徒歩3分) |
| 病院 | がん研有明病院 約980m(徒歩13分) |
| 小学校 | 江東区立有明西学園 約200m(徒歩3分) |
| その他利便施設1 | 有明テニスの森駅(ゆりかもめ臨海線) 約350m(徒歩5分) |
| その他利便施設2 | 国際展示場駅(東京臨海高速鉄道 りんかい線) 約630m(徒歩8分) |
| その他利便施設3 | 有明駅(ゆりかもめ臨海線) 約690m(徒歩9分) |
| その他利便施設4 | 有明スポーツセンター 約610m(徒歩8分) |
三井不動産リアルティ株式会社
国土交通大臣(15)第777号
0120-924-631
0120-924-631
物件の売却をご検討の方は、 はやめの査定依頼がおすすめです!
買い替えをご検討の方はこちら0120-924-631

