横浜市泉区新橋町
相模鉄道いずみ野線 緑園都市駅 徒歩13分
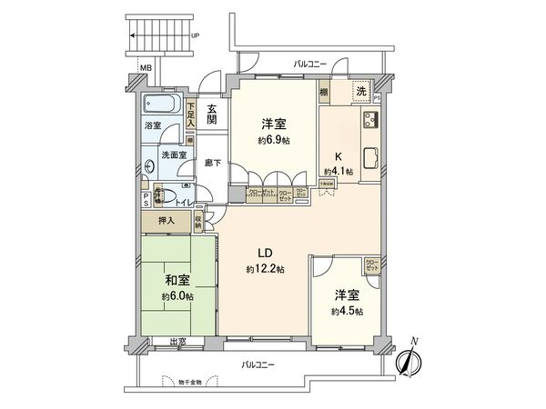
3LDK / 82.25㎡
1992年08月築
1,790万円



| 物件種別 | 中古マンション |
| 所在地 | GoogleMaps |
| 交通 | 相模鉄道いずみ野線 緑園都市駅 徒歩12分 |
| 間取り | 3LDK |
| 専有面積 | 74.86㎡(約22.64坪) |
| 築年月 | 1992年08月築 |
| 階数 / 階建 | 2階 / 地上5階建 |
| 向き | 南 |
-物件のおすすめポイント- ▼立地 ・相鉄いずみ野線「緑園都市」駅徒歩12分 ・第一種低層住居専用地域の静かな環境 ・東側約50mのところに新橋神明台第二公園あり ▼建物の特徴 ・南、北の両面にバルコニーあり ・全室収納付きで整理整頓しやすい ・落ち着いた住宅街に位置し安心感あり ▼お部屋の特徴 ・約12.2帖LDは南向きで陽当たり良好 ・和室約6.0帖はLDと一体でお使いいただけます ・洋室約6.9帖はクローゼット2つ完備 ▼設備 ・キッチンは便利な3口コンロ ・浴室に収納棚あり機能的な水回り ・廊下から各部屋へスムーズに移動可能 ▼周辺環境 ・新橋神明台第二公園徒歩1分で緑豊か ・スーパーや小学校も徒歩圏内に揃う ・子育て世代に適した落ち着いた街並み ■ ご希望の住まい探しをお手伝いします ━━━━━・・・ 物件の詳細・ご相談はお気軽にお問い合わせください。
| 所在地 | GoogleMaps |
| 価格 | 1,790万円 |
| 交通 | 相模鉄道いずみ野線 緑園都市駅 徒歩12分 |
| 管理費等 | 8,970円 |
| 修繕積立金 | 26,300円 |
| その他費用 | - |
| 間取り | 3LDK |
| 専有面積 | 74.86㎡(約22.64坪) |
| 築年月 | 1992年08月築 |
| 階数 / 階建 | 2階 / 地上5階建 |
| 向き | 南 |
| バルコニー | 17.66㎡ |
| 現況 | 空家 |
| 駐車場 | 空き無 |
| 建物構造 | 鉄筋コンクリート造 |
| 総戸数 | 28戸 |
| 管理会社 | 日本ハウズイング株式会社 |
| 管理形態 | 管理会社に全部委託 |
| 管理員の 勤務形態 | 日勤 |
| 土地権利 | 所有権 |
| 分譲会社 | 東京建物(株) (新築分譲時における売主) |
| 施工会社 | (株)熊谷組 |
| 設計会社 | (株)東急設計コンサルタント |
| 備考 | - |
| 引渡時期 | 即時 |
| 取引態様 | 仲介 |
| 更新日 | 2026年04月17日 |
| 次回更新予定 | 2026年05月01日 |
| 物件番号 | FBXASA06 |
最新のAI技術を活用した相談サービスです。
お客様一人ひとりのニーズに合わせて最適な情報をご提供します。
リハウスAIチャットの詳しい説明はこちら
GoogleMaps
| スーパー | 相鉄ローゼン 緑園都市店 約1040m(徒歩13分) |
| 公園 | 新橋神明谷第二公園 約50m(徒歩1分) |
| その他利便施設1 | 緑園都市駅(相鉄 いずみ野線) 約950m(徒歩12分) |
| その他利便施設2 | ローソン泉新橋町店 約130m(徒歩2分) |
| その他利便施設3 | スギ薬局新橋町店 約910m(徒歩12分) |
| その他利便施設4 | 横浜新橋郵便局 約570m(徒歩8分) |
0120-926-431
0120-926-431
物件の売却をご検討の方は、 はやめの査定依頼がおすすめです!
買い替えをご検討の方はこちら0120-926-431

