札幌市中央区北二条西14丁目
札幌市営軌道線 西15丁目駅 徒歩8分
4LDK / 109.61㎡
1996年09月築
4,180万円



| 物件種別 | 中古マンション |
| 所在地 | GoogleMaps |
| 交通 | 札幌市営東西線 西18丁目駅 徒歩6分 |
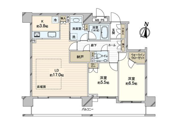
| 間取り | 2LDK |
| 専有面積 | 76.24㎡(約23.06坪) |
| 築年月 | 2005年02月築 |
| 階数 / 階建 | 3階 / 地上13階建 |
| 向き | 南 |
-物件のおすすめポイント- ▼立地 ○ 地下鉄東西線「西18丁目」駅 徒歩6分 ▼マンションの特徴 ○ 三井不動産(株)旧分譲 ○ 平成17年2月築 ○ ペット飼育可能(飼育細則有り) ▼お部屋の特徴 ○ 専有面積 76.24平米 ○ バルコニー面積 17.28平米 ○ 13階建て3階部分 ○ 南向きの2LDKで陽当たり良好 ○ リビングと全居室が面する開放的なワイドバルコニー ○ 約17帖の広々としたリビングダイニング ▼設備 ○ 食器洗い乾燥機付きの対面式システムキッチン ○ リビングに一部床暖房 ○ 廊下には収納力に優れた大型収納 ○ 省エネ型ガス床暖房・給湯システム「Fact」採用 ○ フルオートバス ○ 浴室暖房乾燥機付き ○ トイレに手洗いカウンター有り ○ 断熱性の高い複層ガラスを採用 ○ クリーンな空気環境を保つ熱交換式24時間換気システム ○ テレビモニター付きインターホン ○ 宅配ボックス有り ■ ご希望の住まい探しをお手伝いします ━━━━━ 物件の詳細・ご相談はお気軽にお問い合わせください。
| 所在地 | GoogleMaps |
| 価格 | 4,180万円 |
| 交通 | 札幌市営東西線 西18丁目駅 徒歩6分 |
| 管理費等 | 7,620円 |
| 修繕積立金 | 21,730円 |
| その他費用 | - |
| 間取り | 2LDK |
| 専有面積 | 76.24㎡(約23.06坪) |
| 築年月 | 2005年02月築 |
| 階数 / 階建 | 3階 / 地上13階建 |
| 向き | 南 |
| バルコニー | 17.28㎡ |
| 現況 | 居住中 |
| 駐車場 | 敷地内有 (賃貸) 空き:4台有り 月額 10,000円〜15,000円 (確認日:西暦2026年04月30日現在) |
| 建物構造 | 鉄筋コンクリート造 |
| 総戸数 | 34戸 |
| 管理会社 | 三井不動産レジデンシャルサービス北海道 |
| 管理形態 | 管理会社に全部委託 |
| 管理員の 勤務形態 | 日勤 |
| 土地権利 | 所有権 |
| 分譲会社 | 三井不動産(株) (新築分譲時における売主) |
| 施工会社 | 三井住友建設(株) |
| 設計会社 | (株)企画設計事務所オルト |
| 備考 | - |
| 引渡時期 | 相談 |
| 取引態様 | 仲介 |
| 更新日 | 2026年05月14日 |
| 次回更新予定 | 2026年05月28日 |
| 物件番号 | FC1BDA04 |
最新のAI技術を活用した相談サービスです。
お客様一人ひとりのニーズに合わせて最適な情報をご提供します。
リハウスAIチャットの詳しい説明はこちら
GoogleMaps
| スーパー | まいばすけっと北3条西17丁目店 約240m(徒歩3分) |
| スーパー | まいばすけっと北2条西14丁目店 約610m(徒歩8分) |
| スーパー | 東光ストア円山店 約1010m(徒歩13分) |
| 公園 | 二中公園 約160m(徒歩2分) |
| 病院 | 平成会病院 約280m(徒歩4分) |
| 小学校 | 桑園小学校 約690m(徒歩9分) |
| 中学校 | 向陵中学校 約1340m(徒歩17分) |
| その他利便施設1 | ツルハドラッグ北4条店 約410m(徒歩6分) |
| その他利便施設2 | セイコーマートテルウェル店 約350m(徒歩5分) |
| その他利便施設3 | 札幌北四条西郵便局 約470m(徒歩6分) |
三井不動産リアルティ札幌株式会社
北海道知事石狩(8)第5813号
0120-312-440
リノベーション工事の可能範囲については、本物件の管理組合規約等により一定の制限が加わる場合がございます。詳細については、工事内容の確定後に判明する部分もありますので、この点については事前にお含みおきください。
リノベーションに関するお問い合わせ0120-312-440
物件の売却をご検討の方は、 はやめの査定依頼がおすすめです!
買い替えをご検討の方はこちら0120-312-440

